
Omschrijving
Sfeervolle en verzorgde 4-kamer eengezinswoning met fraai aangelegde achtertuin met berging en achterom, gelegen in een autovrije straat.
De woning is zeer centraal gelegen in de gewilde buurt Prinsenland, een rustige en kindvriendelijke omgeving binnen het stadsdeel Prins Alexander. In de directe omgeving zijn diverse voorzieningen te vinden zoals metrostation Schenkel (400m), bushalte, winkels, scholen en het Prinsenpark. Daarnaast zijn de snelwegen A16 en A20 eenvoudig te bereiken.
Indeling:
Begane grond:
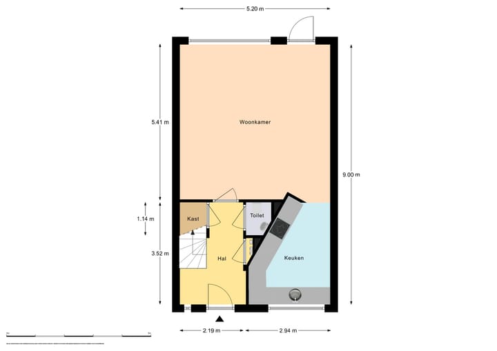
Je komt via de fraai aangelegde voortuin de woning binnen in de entreehal met garderobe, meterkast, trapkast, toiletruimte met toilet en fontein en trapopgang naar de eerste etage. Via een moderne deur met glasinzet kom je in de woonkamer.
De woonkamer is ca. 28m2 en heeft een mooie lichtinval door het grote raam aan de tuinkant. De woonkamer, hal en keuken zijn voorzien van een fraaie laminaatvloer.
De achtertuin van ca. 50m2 ligt op het oosten. De tuin is fraai aangelegd met borders met planten, een ruim terras en houten schuttingen. De tuin heeft zonwering, een berging van 6m2 en een achterom.
De stijlvol gerenoveerde keuken ligt aan de voorzijde van de woning en heeft een ruime opstelling met diverse inbouwapparatuur zoals een inductie kookplaat (2025), een afzuigschouw (2025), een oven, een magnetron een koel-/vriescombinatie (2025) en een vaatwasser.
De aansluiting voor de wasmachine bevindt zich in de kast onder de trap.
1e etage:
Op de eerste etage bevinden zich 3 ruime slaapkamers en de badkamer.
De hoofdslaapkamer aan de achterzijde van de woning is ca. 11m2 en heeft een grote vaste kast en airconditioning. De naastgelegen slaapkamer is 9m2 en heeft eveneens een grote vaste kast. De derde slaapkamer aan de voorzijde van de woning is 9m2.
De nette badkamer is uitgevoerd in een lichte kleurstelling en heeft een ligbad met douchescherm, een wastafelmeubel met lades en een spiegelkast en een tweede toilet. Er is mechanische ventilatie, een designradiator en er is daglichtinval door middel van een solar tube.
De overloop is een fijne ruimte met daglicht door een daklicht en een raam in de gevel. Je hebt hier voldoende ruimte voor het inrichten van bijvoorbeeld een werkplek. Tevens bevinden zich hier een ruime vaste kast en een kast met de CV-ketel.
Bijzonderheden:
De woning is gelegen op een perceel erfpachtgrond waarvan de canon is afgekocht tot 22-02-2039. Binnen 1 maand na de levering kan een nieuwe eigenaar de erfpacht aanvullend afkopen tot de einddatum in 2088. Indicatie gemeente: ca. € 8.000,-;
Bouwjaar CV-ketel 2006;
De woning is voorzien van houten kozijnen met dubbel glas welke in 2022 professioneel zijn geschilderd;
Oplevering in overleg.
Kenmerken
Overdracht
- Laatste vraagprijs
- € 420.000 kosten koper
- Vraagprijs per m²
- € 4.468
- Status
- Verkocht
Bouw
- Soort woonhuis
- Eengezinswoning, tussenwoning
- Soort bouw
- Bestaande bouw
- Bouwjaar
- 1989
- Soort dak
- Plat dak bedekt met bitumineuze dakbedekking
Oppervlakten en inhoud
- Gebruiksoppervlakten
- Wonen
- 94 m²
- Externe bergruimte
- 6 m²
- Perceel
- 125 m²
- Inhoud
- 301 m³
Indeling
- Aantal kamers
- 4 kamers (3 slaapkamers)
- Aantal badkamers
- 1 badkamer en 1 apart toilet
- Badkamervoorzieningen
- Ligbad, toilet, wastafel, en wastafelmeubel
- Aantal woonlagen
- 2 woonlagen
- Voorzieningen
- Airconditioning, buitenzonwering, dakraam, mechanische ventilatie, natuurlijke ventilatie, en TV kabel
Energie
- Energielabel
- B
- Isolatie
- Dubbel glas
- Verwarming
- Cv-ketel
- Warm water
- Cv-ketel
- Cv-ketel
- AWB Thermomaster 3 hr (gas gestookt combiketel uit 2006, eigendom)
Kadastrale gegevens
- KRALINGEN C 3964
- Kadastrale kaart
- Oppervlakte
- 125 m²
- Eigendomssituatie
- Gemeentelijk eigendom belast met erfpacht
- Lasten
- Afgekocht tot 22-02-2039
Buitenruimte
- Ligging
- Beschutte ligging en in woonwijk
- Tuin
- Achtertuin
- Achtertuin
- 53 m² (9,93 meter diep en 5,32 meter breed)
- Ligging tuin
- Gelegen op het noordoosten bereikbaar via achterom
Bergruimte
- Schuur/berging
- Vrijstaande houten berging
Parkeergelegenheid
- Soort parkeergelegenheid
- Openbaar parkeren
Foto's 28
© 2001-2025 funda



























