
Omschrijving
Hier is wat je zoekt: een ruime, goed onderhouden hoekwoning met 3 slaapkamers, carport en ruime tuin. Dicht bij de Boulevard, met winkels en voorzieningen op loopafstand. Een fijne gezinswoning!
Indeling
Begane grond
Via de voordeur komen we in de hal. Hier de trap naar boven, de meterkast en het toilet. De woonkamer heeft veel natuurlijk licht door de ramen voor en achter. Aan de achterkant is de loopdeur naar de tuin. De open keuken heeft veel praktische kastruimte en diverse inbouwapparatuur waaronder een vaatwasser, afzuigkap en oven. De woonkamer en keuken hebben vloerverwarming. Via een deur komen we in de praktische bijkeuken met aansluiting voor de wasmachine en droger en opbergruimte.
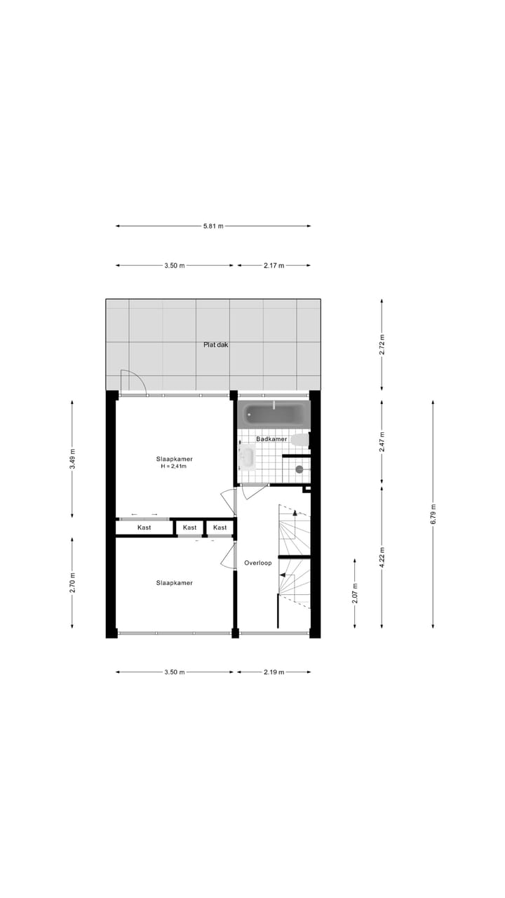
1e verdieping
Op de eerste verdieping aangekomen vinden we 2 slaapkamers met inbouwkasten en de badkamer. In de moderne badkamer een ligbad, toilet, wastafelmeubel en aparte douche
2e verdieping
Via de vaste trap komen we op de zolder. Hier, mede door de grote dakkapel, een ruime kamer en praktische opbergruimte.
Tuin
De zuidoost gelegen tuin heeft volop zon en achter in de tuin een heerlijke overkapping waar je prima kunt zitten bij minder weer. In de tuin naast de woning aan de voorkant de carport.
Deze woning is het bezichtigen waard!
Algemeen
Bouwjaar: 1958;
Perceeloppervlakte: 279m²;
Inhoud: 449 m³;
Woonoppervlakte: 135 m² conform NEN2580 voorwaarden gemeten;
Verwarming middels CV ketel;
Warm water middels elektrische boiler;
Aanvaarding/oplevering in overleg.
Deze informatie is door ons met de nodige zorgvuldigheid samengesteld. Onzerzijds wordt echter geen enkele aansprakelijkheid aanvaard voor enige onvolledigheid, onjuistheid of anderszins, dan wel de gevolgen daarvan. Alle opgegeven maten en oppervlakten zijn indicatief.
Kenmerken
Overdracht
- Laatste vraagprijs
- € 369.000 kosten koper
- Vraagprijs per m²
- € 2.733
- Status
- Verkocht
Bouw
- Soort woonhuis
- Eengezinswoning, hoekwoning
- Soort bouw
- Bestaande bouw
- Bouwjaar
- 1957
- Soort dak
- Zadeldak bedekt met bitumineuze dakbedekking en pannen
Oppervlakten en inhoud
- Gebruiksoppervlakten
- Wonen
- 135 m²
- Gebouwgebonden buitenruimte
- 19 m²
- Externe bergruimte
- 7 m²
- Perceel
- 279 m²
- Inhoud
- 449 m³
Indeling
- Aantal kamers
- 4 kamers (3 slaapkamers)
- Aantal badkamers
- 1 badkamer en 1 apart toilet
- Aantal woonlagen
- 2 woonlagen en een zolder
- Voorzieningen
- Buitenzonwering, glasvezelkabel, en mechanische ventilatie
Energie
- Energielabel
- D
- Isolatie
- Dubbel glas, muurisolatie en vloerisolatie
- Verwarming
- Cv-ketel
- Warm water
- Cv-ketel en elektrische boiler
- Cv-ketel
- Gas gestookt combiketel, eigendom
Kadastrale gegevens
- ROTTERDAM B 9480
- Kadastrale kaart
- Oppervlakte
- 279 m²
- Eigendomssituatie
- Volle eigendom
Buitenruimte
- Ligging
- Aan drukke weg
- Tuin
- Achtertuin, voortuin en zijtuin
- Achtertuin
- 111 m² (12,30 meter diep en 9,00 meter breed)
- Ligging tuin
- Gelegen op het zuidoosten bereikbaar via achterom
Bergruimte
- Schuur/berging
- Vrijstaande houten berging
- Voorzieningen
- Elektra
Parkeergelegenheid
- Soort parkeergelegenheid
- Op eigen terrein
Foto's 47
© 2001-2025 funda














































