
Omschrijving
Op zoek naar een ruime vrijstaande woning met volop mogelijkheden? Deze woning met eigen oprit en carport biedt niet alleen veel ruimte, maar ook tal van opties voor werken aan huis, een groot gezin of levensloopbestendig wonen. Met 10 zonnepanelen en na-geïsoleerde spouwmuren (2015) is er al een mooie stap gezet op het gebied van duurzaamheid. De woning is toe aan modernisering, waardoor je de kans krijgt om deze helemaal naar eigen wens in te richten. Bovendien woon je hier op korte afstand van winkels, een basisschool, sportaccommodaties en het openbaar vervoer.
Bij binnenkomst betreed je de hal, waar zich de toiletruimte, meterkast en de trapopgang naar de eerste verdieping bevinden. Vanuit de hal loop je door naar de gesloten keuken, die is uitgerust met diverse inbouwapparatuur. De royale doorzonwoonkamer geniet van veel natuurlijk licht en staat in verbinding met de serre, een fijne plek om het hele jaar door van de tuin te genieten. Grenzend aan de keuken bevindt zich een praktische bijkeuken met een extra keukenblok en opbergruimte. Daarnaast is er een extra kamer op de begane grond, ideaal als kantoor of praktijkruimte aan huis, maar ook eenvoudig in te richten als slaapkamer. Verder vind je hier een berging met cv-opstelling en witgoedaansluitingen, evenals een badkamer met inloopdouche, wastafel en toilet. Tot slot is er nog een ruime slaapkamer op de begane grond, wat gelijkvloers wonen mogelijk maakt.
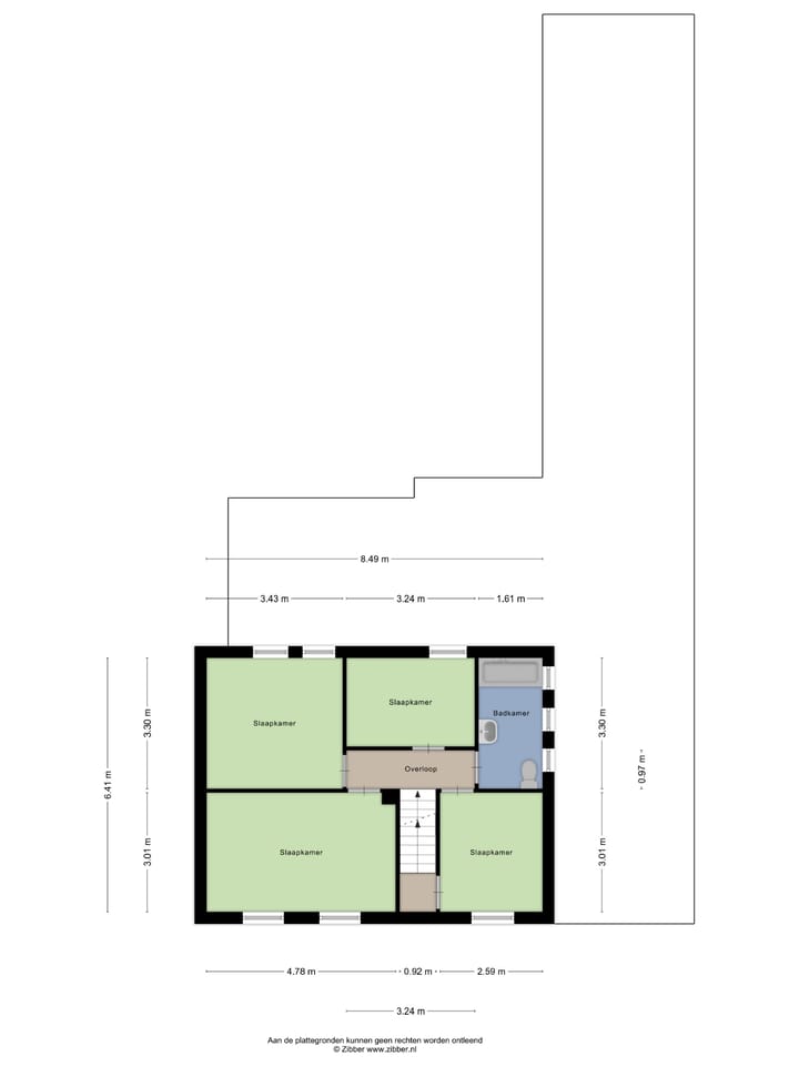
Op de eerste verdieping leidt de overloop naar maar liefst vier slaapkamers, allemaal met een prettige lichtinval. De tweede badkamer is voorzien van een ligbad met douche, wastafel, radiator en een staand toilet. Een vaste trap brengt je naar de tweede verdieping, waar een ruime bergzolder zich bevindt. Daarnaast is hier nog een extra slaapkamer met vaste kasten onder de schuinte, ideaal als logeerkamer of hobbyruimte.
De achtertuin is gelegen op het noordwesten en biedt een fijne plek om te ontspannen. Er is een terras, tuinverlichting en een ruime, aangebouwde berging voorzien van elektra. Dankzij de gunstige ligging van de tuin geniet je zowel overdag als in de avonduren van de zon.
Kortom, een woning met veel potentie en ruimte, waar je met wat aandacht en liefde een heerlijk thuis van kunt maken!
Bijzonderheden:
- Vrijstaande woning met eigen oprit en carport
- 10 zonnepanelen en spouwisolatie (2015)
- Ruime doorzonwoonkamer met veel lichtinval
- Dichte keuken en praktische bijkeuken
- Ruimte voor kantoor of praktijk aan huis
- Slaapkamer en badkamer op de begane grond
- Vijf slaapkamers verdeeld over de verdiepingen
- Tweede badkamer op de eerste verdieping
- Achtertuin gelegen op het noordoosten
- Aangebouwde stenen berging met elektra
Locatie:
- Gelegen op korte afstand van alle voorzieningen
- Schaijk is een gemoedelijk kerkdorp in het noordoosten van Noord-Brabant
- Schaijk heeft een verscheidenheid aan winkels
- De mooie omgeving van het natuurgebied “De Maashorst” en aanwezigheid van diverse campings zorgen voor veel toerisme
- De horeca is heel divers met eetgelegenheden en gezellige terrasjes
- Schaijk heeft een uitgebreid verenigingsleven
Kenmerken
Overdracht
- Laatste vraagprijs
- € 495.000 kosten koper
- Vraagprijs per m²
- € 2.592
- Status
- Verkocht
Bouw
- Soort woonhuis
- Eengezinswoning, vrijstaande woning
- Soort bouw
- Bestaande bouw
- Bouwjaar
- 1971
- Soort dak
- Zadeldak bedekt met pannen
Oppervlakten en inhoud
- Gebruiksoppervlakten
- Wonen
- 191 m²
- Overige inpandige ruimte
- 33 m²
- Gebouwgebonden buitenruimte
- 17 m²
- Perceel
- 443 m²
- Inhoud
- 833 m³
Indeling
- Aantal kamers
- 8 kamers (7 slaapkamers)
- Aantal badkamers
- 2 badkamers en 1 apart toilet
- Badkamervoorzieningen
- Inloopdouche, 2 toiletten, vloerverwarming, 2 wastafels, en ligbad
- Aantal woonlagen
- 3 woonlagen
- Voorzieningen
- Glasvezelkabel, rolluiken, rookkanaal, en zonnepanelen
Energie
- Energielabel
- Isolatie
- Gedeeltelijk dubbel glas en muurisolatie
- Verwarming
- Cv-ketel
- Warm water
- Cv-ketel
- Cv-ketel
- Intergas ( combiketel uit 2020, eigendom)
Kadastrale gegevens
- SCHAIJK C 2526
- Kadastrale kaart
- Oppervlakte
- 443 m²
- Eigendomssituatie
- Volle eigendom
Buitenruimte
- Ligging
- In woonwijk
- Tuin
- Achtertuin en voortuin
- Achtertuin
- 138 m² (12,50 meter diep en 11,00 meter breed)
- Ligging tuin
- Gelegen op het noordwesten bereikbaar via achterom
Bergruimte
- Schuur/berging
- Aangebouwde stenen berging
- Voorzieningen
- Elektra
Garage
- Soort garage
- Carport
Parkeergelegenheid
- Soort parkeergelegenheid
- Op eigen terrein en openbaar parkeren
Foto's 53
© 2001-2026 funda




















































