
Omschrijving
Een charmante hoekwoning, gelegen in een groene en rustige omgeving, waar jouw ideeën en creativiteit kunnen uitgroeien tot het perfecte thuis. Brederodeweg 4 in Schelluinen biedt jou dé kans om je woonwensen te realiseren!
Met een ruime benedenverdieping dankzij de aanbouw en drie fijne slaapkamers is dit huis de ideale basis. De woning vraagt om wat liefde en een modern tintje – perfect voor wie houdt van een uitdaging en een huis wil creëren dat helemaal bij hen past.
De ligging is heerlijk rustig, met een idyllisch bruggetje aan de voorzijde en parkeergelegenheid achter het huis. Hier woon je in de groene polder, op een steenworp afstand van Gorinchem en met de snelweg binnen handbereik. Of je nu van natuur houdt, de drukte van de stad wilt opzoeken, of beide: hier in Schelluinen zit je goed.
Zie jij jezelf hier al op je plek zitten? Kom het ervaren tijdens een bezichtiging!
Kenmerken
Overdracht
- Laatste vraagprijs
- € 375.000 kosten koper
- Vraagprijs per m²
- € 3.378
- Status
- Verkocht
Bouw
- Soort woonhuis
- Eengezinswoning, hoekwoning
- Soort bouw
- Bestaande bouw
- Bouwjaar
- 1989
- Soort dak
- Zadeldak bedekt met pannen
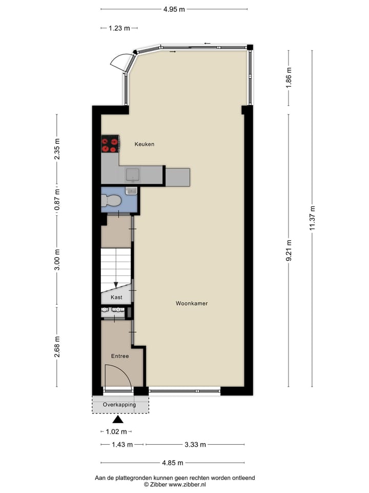
Oppervlakten en inhoud
- Gebruiksoppervlakten
- Wonen
- 111 m²
- Externe bergruimte
- 5 m²
- Perceel
- 165 m²
- Inhoud
- 393 m³
Indeling
- Aantal kamers
- 4 kamers (3 slaapkamers)
- Aantal badkamers
- 1 badkamer en 1 apart toilet
- Badkamervoorzieningen
- Douche, ligbad, toilet, en wastafel
- Aantal woonlagen
- 3 woonlagen en een vliering
Energie
- Energielabel
- C
- Isolatie
- Gedeeltelijk dubbel glas
- Verwarming
- Cv-ketel
- Warm water
- Cv-ketel
- Cv-ketel
- Intergas (gas gestookt combiketel uit 2007, eigendom)
Kadastrale gegevens
- SCHELLUINEN B 2069
- Kadastrale kaart
- Oppervlakte
- 165 m²
- Eigendomssituatie
- Volle eigendom
Buitenruimte
- Ligging
- Aan water
- Tuin
- Achtertuin, voortuin en zijtuin
- Achtertuin
- 60 m² (10,00 meter diep en 6,00 meter breed)
- Ligging tuin
- Gelegen op het westen bereikbaar via achterom
Bergruimte
- Schuur/berging
- Vrijstaande stenen berging
Parkeergelegenheid
- Soort parkeergelegenheid
- Openbaar parkeren
Foto's 21
© 2001-2025 funda




















