
Omschrijving
Op een uitstekende locatie aan de De Reumer 7 in Soerendonk ligt deze goed onderhouden en instapklare tweekapper met garage. Deze woning uit 2018 heeft alles wat je zoekt: een ruime woonkamer met open keuken, een praktische serre en een zonnige tuin, 3 slaapkamers op de tweede verdieping en met een mogelijkheid voor een 4e slaapkamer op de zolder. De woning is gesitueerd op een mooi perceel van 219 m² en beschikt over een woonoppervlakte van 118 m², energielabel A en 6 zonnepanelen.
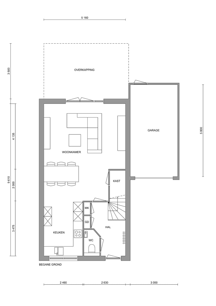
Indeling
Entree via de voordeur aan de voorzijde van de woning. In de hal vind je de meterkast (9 groepen), volledig betegelde toiletruimte met wandcloset en fonteintje, toegang tot de woonkamer en trapopgang naar de 1e verdieping.
Mooie ruime lichte woonkamer met openslaande tuindeuren, voorzien van een schuif-hor (vlieggenhor) aan de achterzijde. In de praktische trapkast kun je handig extra spullen opbergen en hier bevindt zich de verdeler van de vloerverwarming. De open keuken in hoekmodel is modern en voorzien van alle gemakken, zoals een afzuigkap, gaskookplaat, vaatwasser, combimagnetron, koelkast en vriezer. De gehele begane grond is afgewerkt met een mooie tegelvloer met vloerverwarming.
1e verdieping
Op de eerste verdieping vind je drie comfortabele slaapkamers en de badkamer. De hoofdslaapkamer is voorzien van airco en een vaste kastenwand. De geheel betegelde moderne badkamer beschikt over een inloopdouche, toilet en wastafel inclusief meubel en vloerverwarming. De rest van de verdieping is voorzien van een laminaatvloer met vloerverwarming. De slaapkamers aan de achterzijde zijn voorzien van rolluiken en aan de voorzijde van een screen (allen elektrisch te bedienen).
2e verdieping
Via de vaste trap bereik je de royale zolder, waar de CV-ketel (Remeha, 2018), verdeler vloerverwarming 1e verdieping en de centrale afzuiging geplaatst zijn. Verder vind je hier ook de aansluitingen voor het plaatsen van een wasmachine en droger. Tevens is hier een mogelijkheid om een 4e slaapkamer te creëren.
Buitenruimte
Keurige onderhoudsvriendelijk voortuin.
Eigen oprit met een gemetselde garage met kantelpoort en aan de achterzijde een toegangsdeur. De achtertuin is voorzien van een mooie serre uitgevoerd in aluminium met glas schuifwanden en spotjes op afstandsbediening. Achter in de tuin is nog een terras voorzien van 2 stroompunten, een gazon met schaduw gevende dakboom en een border met beplanting. De achtertuin is voorzien van een sproei installatie en is verder omheind met een houten schutting.
Wat kun je nog meer verwachten:
• instapklare woning
• begane grond en 1e verdieping volledig voorzien van vloerverwarming als hoofdverwarming (separaat te bedienen per ruimte)
• kunststof kozijnen met HR glas (m.u.v. de voordeur – hout)
• 6 zonnepanelen voor duurzame energie
• energielabel A
• rolluik bij de slaapkamers achterzijde en een screen bij de slaapkamer aan de voorzijde
• verkoper verlangt een waarborgsom/bankgarantie ter grootte van 10% van de koopsom
Voor vragen, meer informatie of een vrijblijvende bezichtiging kunt u contact opnemen met ons verkoopteam.
Kenmerken
Overdracht
- Laatste vraagprijs
- € 475.000 kosten koper
- Vraagprijs per m²
- € 4.025
- Status
- Verkocht
Bouw
- Soort woonhuis
- Eengezinswoning, 2-onder-1-kapwoning
- Soort bouw
- Bestaande bouw
- Bouwjaar
- 2018
- Soort dak
- Zadeldak bedekt met pannen
Oppervlakten en inhoud
- Gebruiksoppervlakten
- Wonen
- 118 m²
- Gebouwgebonden buitenruimte
- 17 m²
- Perceel
- 219 m²
- Inhoud
- 467 m³
Indeling
- Aantal kamers
- 4 kamers (3 slaapkamers)
- Aantal badkamers
- 1 badkamer en 1 apart toilet
- Badkamervoorzieningen
- Inloopdouche, toilet, wastafel, en wastafelmeubel
- Aantal woonlagen
- 2 woonlagen en een zolder
- Voorzieningen
- Airconditioning, frans balkon, glasvezelkabel, rolluiken, en zonnepanelen
Energie
- Energielabel
- A
- Isolatie
- Dakisolatie, dubbel glas, HR-glas, muurisolatie, vloerisolatie en volledig geïsoleerd
- Verwarming
- Cv-ketel en gehele vloerverwarming
- Warm water
- Cv-ketel
- Cv-ketel
- Remeha (gas gestookt combiketel uit 2018, eigendom)
Kadastrale gegevens
- SOERENDONK B 3363
- Kadastrale kaart
- Oppervlakte
- 219 m²
Buitenruimte
- Balkon/dakterras
- Frans balkon aanwezig
- Ligging
- In woonwijk
- Tuin
- Achtertuin en voortuin
- Achtertuin
- 117 m² (13,00 meter diep en 9,00 meter breed)
- Ligging tuin
- Gelegen op het noordoosten
Garage
- Soort garage
- Aangebouwde stenen garage
- Capaciteit
- 1 auto
- Voorzieningen
- Elektra
Parkeergelegenheid
- Soort parkeergelegenheid
- Op eigen terrein en openbaar parkeren
Foto's 38
© 2001-2025 funda





































