
Omschrijving
Op een centrale en rustige locatie in Sommelsdijk nabij voorzieningen zoals winkels, scholen, restaurants en openbaar vervoer mogen wij deze verzorgde tussenwoning aanbieden. De woning is de afgelopen jaren geheel gemoderniseerd en is daarmee instapklaar te noemen. Met een nette afwerking, nieuwe moderne keuken en een vierde slaapkamer op de 2e verdieping is dit een ideaal (gezins)thuis.
Indeling
Bij binnenkomst kom je in de entreehal, waar zich het recent vernieuwde toilet bevindt. De gehele begane grond is voorzien van vloerverwarming en strak gestuukte wanden. Ook de trap is onlangs opnieuw bekleed.
De lichte woonkamer biedt een prettige leefruimte en staat in open verbinding met de moderne keuken (2023). Deze is uitgerust met een koel-/vriescombinatie, vaatwasser, inductiekookplaat, magnetron en een praktische close-in boiler.
Eerste verdieping
Op de eerste verdieping tref je een ruime masterbedroom aan de voorzijde incl. elektrische rolluik (2023) en twee slaapkamers aan de achterzijde. De badkamer is voorzien van een wastafelmeubel, douchecabine en een tweede toilet.
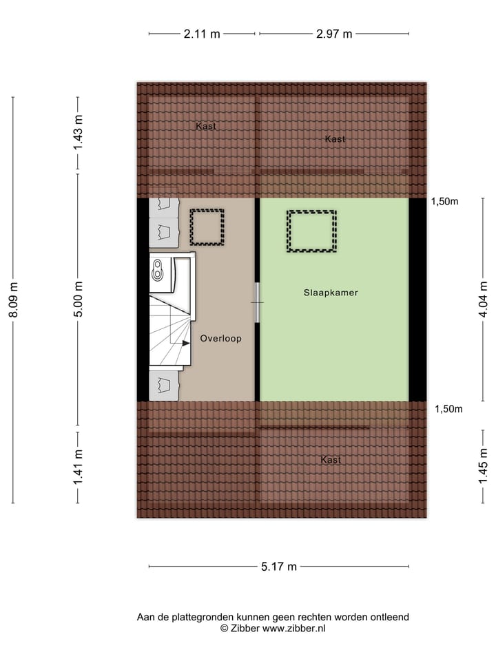
Tweede verdieping
Via een vaste trap bereik je de tweede verdieping. Hier is een vierde slaapkamer gerealiseerd, ideaal als extra (kinder)slaapkamer, werkkamer of hobbyruimte. Tevens is hier de witgoedaansluiting en de cv-installatie
(Nefit/2017).
Wil je comfortabel wonen op een gunstige locatie in Sommelsdijk, zonder te hoeven klussen?
Dan is Nachtegaalstraat 10 absoluut een bezichtiging waard!
(oplevering maart 2026)
Kenmerken
Overdracht
- Laatste vraagprijs
- € 330.000 kosten koper
- Vraagprijs per m²
- € 3.143
- Status
- Verkocht
Bouw
- Soort woonhuis
- Eengezinswoning, tussenwoning
- Soort bouw
- Bestaande bouw
- Bouwjaar
- 1976
- Soort dak
- Zadeldak bedekt met pannen
Oppervlakten en inhoud
- Gebruiksoppervlakten
- Wonen
- 105 m²
- Externe bergruimte
- 8 m²
- Perceel
- 312 m²
- Inhoud
- 370 m³
Indeling
- Aantal kamers
- 5 kamers (4 slaapkamers)
- Aantal badkamers
- 1 badkamer en 1 apart toilet
- Badkamervoorzieningen
- Douche, dubbele wastafel, en toilet
- Aantal woonlagen
- 3 woonlagen
- Voorzieningen
- Mechanische ventilatie en natuurlijke ventilatie
Energie
- Energielabel
- B
- Isolatie
- Dakisolatie, dubbel glas en muurisolatie
- Verwarming
- Cv-ketel
- Warm water
- Cv-ketel en elektrische boiler
- Cv-ketel
- NEFIT (gas gestookt combiketel uit 2017, eigendom)
Kadastrale gegevens
- SOMMELSDIJK B 5362
- Kadastrale kaart
- Oppervlakte
- 176 m² (deelperceel)
- Eigendomssituatie
- Mandelig
- SOMMELSDIJK B 6233
- Kadastrale kaart
- Oppervlakte
- 136 m²
- Eigendomssituatie
- Volle eigendom
Buitenruimte
- Ligging
- Aan rustige weg en in woonwijk
- Tuin
- Tuin rondom
Bergruimte
- Schuur/berging
- Vrijstaande stenen berging
Parkeergelegenheid
- Soort parkeergelegenheid
- Openbaar parkeren
Foto's 31
© 2001-2025 funda






























