
Omschrijving
In deze groene en kindvriendelijke woonwijk ten noorden van Sint Annaparochie hebben we deze nette twee-onder-een-kapwoning in de verkoop. Je woont hier aan de Klaas Taekesland 20 en beschikt over een eigen oprit, een aangebouwde stenen garage, energielabel A en 10 zonnepanelen… En zo kunnen we nog wel even doorgaan! We vertellen je graag meer over deze leuke woning.
Sint Annaparochie is een dorp in het noorden van Friesland en telt zo'n 4.500 inwoners. Het ligt op 20 minuten rijden van de hoofdstad Leeuwarden. Voor natuurliefhebbers is dit ook een heerlijke plek; je woont namelijk nabij de Waddenzee en de dijk, een perfecte omgeving om regelmatig uit te waaien. Het dorp zelf beschikt ook over belangrijke voorzieningen. Zo zijn er meerdere basisscholen en een middelbare school, meerdere supermarkten en diverse speciaalzaken. Ook voor sportactiviteiten heb je hier genoeg keuze, zoals voetbalvelden, tennisbanen en een sporthal.
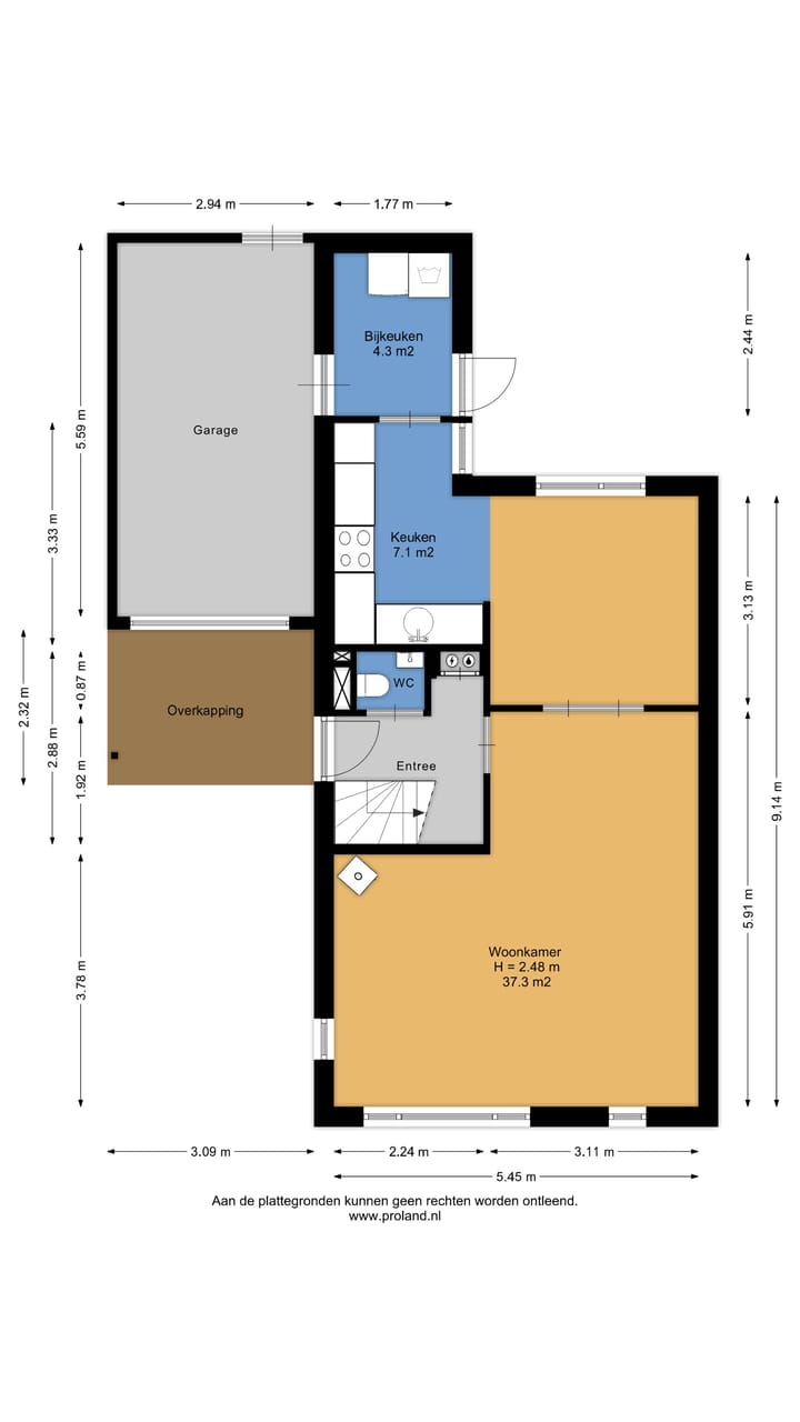
Terug naar de woning. Op de eigen oprit heb je altijd ruimte om twee auto's te parkeren. We komen binnen in de entree, die toegang geeft tot de trapopgang, het toilet (in 2020 vernieuwd) en de woonkamer. De woonkamer is breed opgezet en heerlijk licht door de vele raampartijen. De houtkachel in de hoek zorgt voor extra sfeer – heerlijk! Achterin de woning bevindt zich de eethoek, die afsluitbaar is met deuren. Deze staat in verbinding met de halfopen keuken, die is uitgerust met een vaatwasser, oven, vijfpits gasfornuis, koelkast en magnetron.
De keuken geeft toegang tot de bijkeuken, waar de witgoedaansluiting en de deur naar de tuin zich bevinden. Tevens biedt deze ruimte toegang tot de aangebouwde garage met een elektrische deur naar de oprit.
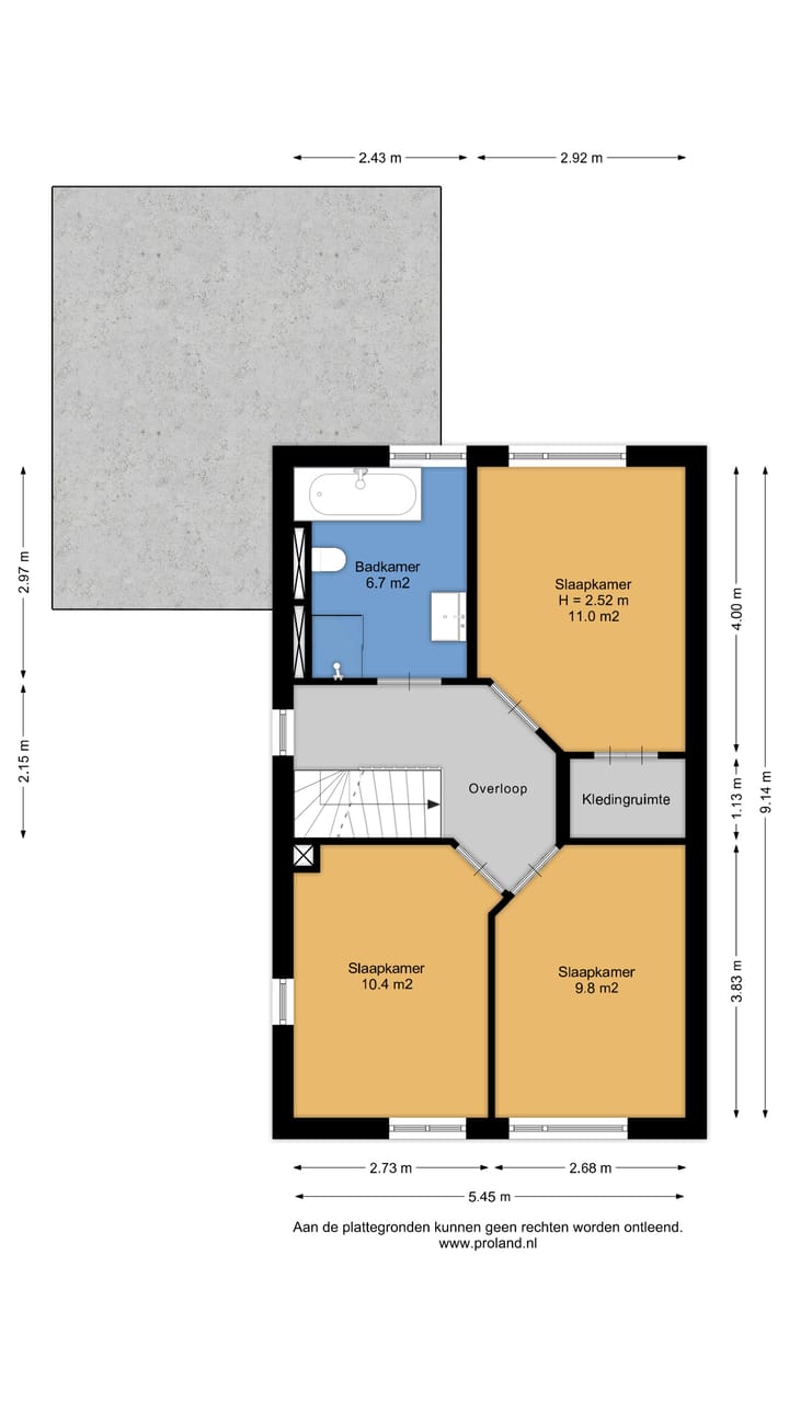
De eerste verdieping beschikt over drie fijne slaapkamers, een kledingruimte en een prachtige badkamer. De badkamer, voorzien van een houtlook tegel, is in 2020 vernieuwd. Je vindt hier een ligbad, wastafelmeubel, toilet en een inloopdouche.
Via een vaste trap komen we op de tweede verdieping: een royale zolderverdieping! Hier bevindt zich een vierde slaapkamer en nog voldoende ruimte op de overloop voor bijvoorbeeld een thuiswerkplek of hobbyruimte.
We eindigen in de tuin: een heerlijk groene plek. De tuin is smaakvol ingericht, beschikt over drainage en heeft een gezellige overkapping waar je volop kunt genieten van het buitenleven.
We laten je deze woning maar al te graag zien tijdens een bezichtiging. Zien we je snel?
Bijzonderheden:
- Energielabel A (hierna zijn nog 10 zonnepanelen geplaatst)
- De badkamer en het toilet zijn in 2020 vernieuwd
- De woning is in zijn geheel goed geïsoleerd
- Vier slaapkamers en een royale zolderverdieping
- Aangebouwde garage met elektrische deur
Kenmerken
Overdracht
- Laatste vraagprijs
- € 375.000 kosten koper
- Vraagprijs per m²
- € 2.885
- Status
- Verkocht
Bouw
- Soort woonhuis
- Eengezinswoning, 2-onder-1-kapwoning
- Soort bouw
- Bestaande bouw
- Bouwjaar
- 2007
- Soort dak
- Zadeldak bedekt met pannen
Oppervlakten en inhoud
- Gebruiksoppervlakten
- Wonen
- 130 m²
- Overige inpandige ruimte
- 16 m²
- Gebouwgebonden buitenruimte
- 7 m²
- Perceel
- 272 m²
- Inhoud
- 517 m³
Indeling
- Aantal kamers
- 5 kamers (4 slaapkamers)
- Aantal badkamers
- 1 badkamer en 1 apart toilet
- Badkamervoorzieningen
- Inloopdouche, ligbad, toilet, en wastafel
- Aantal woonlagen
- 3 woonlagen
- Voorzieningen
- Mechanische ventilatie, rookkanaal, en zonnepanelen
Energie
- Energielabel
- A
- Isolatie
- Dakisolatie, dubbel glas, muurisolatie en vloerisolatie
- Verwarming
- Cv-ketel
- Warm water
- Cv-ketel
- Cv-ketel
- Remeha (gas gestookt combiketel uit 2016, eigendom)
Kadastrale gegevens
- SINT ANNA PAROCHIE F 1190
- Kadastrale kaart
- Oppervlakte
- 272 m²
- Eigendomssituatie
- Volle eigendom
Buitenruimte
- Ligging
- In woonwijk
- Tuin
- Achtertuin en voortuin
- Achtertuin
- 95 m² (9,80 meter diep en 9,70 meter breed)
- Ligging tuin
- Gelegen op het noorden bereikbaar via achterom
Garage
- Soort garage
- Aangebouwde stenen garage
- Capaciteit
- 1 auto
- Voorzieningen
- Elektra
Parkeergelegenheid
- Soort parkeergelegenheid
- Op eigen terrein
Foto's 56
© 2001-2025 funda























































