
Omschrijving
Ruimte, comfort en een schitterende ligging – deze woning heeft het allemaal!
Ben je op zoek naar een royale gezinswoning met maar liefst 6 slaapkamers en een garage, gelegen op een prachtige en beschutte locatie? Dan is dit jouw kans! Afgelopen jaren is de woning grotendeels gemoderniseerd. Zo is de woonkamer uitgebouwd, een kunststof dakkapel geplaatst, vloerverwarming aangelegd en zijn zowel de keuken als de badkamer vernieuwd. Ook aan de buitenzijde is gedacht, met onder andere nieuwe kunststof dakgoten, boeidelen en opnieuw gevoegde gevels. Daarnaast is de ligging ideaal: vrij uitzicht op het groene Waling Dijkstrapark en op loopafstand van het centrum, supermarkten en de bushalte. Laat je verrassen door de ruimte, de afwerking en de mooie omgeving – deze woning is absoluut een bezichtiging waard!
Begane grond:
Via de voordeur kom je binnen in een ruime en verzorgde hal. In de hal bevinden zich de trapopgang naar de eerste verdieping, een handige trapkast en een keurig toilet met fonteintje. De woonkamer is opvallend ruim en licht, afgewerkt met een pvc vloer en comfortabele vloerverwarming. Vanuit de woonkamer geniet je van een vrij en groen uitzicht op het Waling Dijkstrapark – een prachtig verlengstuk van de leefruimte. De open keuken beschikt over veel werkruimte en is uitgerust met een 5-pits inductiekookplaat, afzuigkap, vaatwasser, koelkast met vriesvak en een combimagnetron. Aangrenzend vind je de bijkeuken. Hier is voldoende ruimte voor jassen, schoenen en laarzen, en via de achterdeur heb je directe toegang tot de achtertuin.
1e verdieping:
De ruime overloop is voorzien van een nette laminaatvloer en biedt toegang tot de tweede verdieping via een vaste trap. Op deze etage bevinden zich vier slaapkamers, waarvan twee aan de voorzijde en twee aan de achterzijde. Alle kamers zijn lekker ruim, hebben rechte wanden en zijn afgewerkt met een laminaatvloer – ideaal voor een praktische en strakke inrichting. De moderne badkamer is compleet uitgerust met een stijlvol wastafelmeubel met dubbele wastafel, een inloopdouche, toilet en designradiator. Dankzij het raam is er volop daglicht en natuurlijke ventilatie aanwezig.
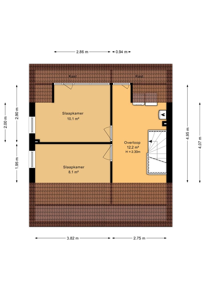
2e verdieping:
Ook op deze verdieping vind je een ruime overloop met volop bergruimte, witgoed aansluitingen en de opstelling van de cv-installatie. Er zijn twee slaapkamers aanwezig, waarvan één is voorzien van een royale kunststof dakkapel. Beide kamers beschikken over een laminaatvloer, een zijraam voor extra daglicht en een radiator voor aangename verwarming.
Garage:
De vrijstaande stenen garage heeft een afmeting van ca. 6,10 bij 3,30 meter, is ongeïsoleerd en voorzien van elektra en een kanteldeur.
Tuin:
De achtertuin is functioneel, 9,20 meter diep en 6,60 meter breed op het noordoosten met een achterom. De voortuin is onderhoudsarm, de ruime oprit is geschikt voor meerdere auto's en er is eventueel een mogelijkheid voor een carport.
Bijzonderheden:
- prachtige ligging tegenover het Waling Dykstrapark;
- vloerverwarming 2021;
- vloerisolatie 2021;
- spouwisolatie 2021;
- stucwerk woonkamer 2021;
- uitbouw woonkamer 2010;
- plafond woonkamer geïsoleerd 2010;
- kunststof dakgoten en boeidelen 2008;
- kunststof dakkapel achterzijde 2007;
- meterkast: 2010, 8 groepen + krachtstroom en dubbele aardlekschakelaar;
- HR-combiketel Intergas 2021;
- Mechanische ventilatie unit 2018;
- badkamer vernieuwd 2018;
- buitenschilderwerk beneden 2024 en boven 2017-2019;
- eigen grond 301 m².
Bereikbaarheid:
Stiens is makkelijk bereikbaar. Via het fietspad over de oude spoorlijn ben je zo in het bruisende Leeuwarden. Ook de belangrijke uitvalswegen zijn makkelijk te bereiken. Daarnaast zijn er volop fiets- en wandelmogelijkheden om de mooie omgeving van Friesland te verkennen. Fijn wonen in Stiens, dat kan hier goed! Dit is een kindvriendelijke buurt met relatief veel gezinnen. Verder is het een betrekkelijk rustige buurt. Hier vind je alle benodigde voorzieningen zoals supermarkten, gezellige restaurants en winkels op loop-/fietsafstand. Ook is de bereikbaarheid goed met het openbaar vervoer (bushaltes) en een uitvalsweg (N357) nabijgelegen.
Deze informatie is door ons met de nodige zorgvuldigheid samengesteld. Onzerzijds wordt echter geen enkele aansprakelijkheid aanvaard voor enige onvolledigheid, onjuistheid of anderszins, dan wel de gevolgen daarvan. Alle opgegeven maten en oppervlakten zijn indicatief.
Toelichtingsclausule NEN2580:
De Meetinstructie is gebaseerd op de NEN2580. De Meetinstructie is bedoeld om een meer eenduidige manier van meten toe te passen voor het geven van een indicatie van de gebruiksoppervlakte. De Meetinstructie sluit verschillen in meetuitkomsten niet volledig uit, door bijvoorbeeld interpretatieverschillen, afrondingen of beperkingen bij het uitvoeren van de meting.
Kenmerken
Overdracht
- Laatste vraagprijs
- € 359.000 kosten koper
- Vraagprijs per m²
- € 2.331
- Status
- Verkocht
Bouw
- Soort woonhuis
- Eengezinswoning, 2-onder-1-kapwoning
- Soort bouw
- Bestaande bouw
- Bouwjaar
- 1971
- Soort dak
- Zadeldak bedekt met pannen
Oppervlakten en inhoud
- Gebruiksoppervlakten
- Wonen
- 154 m²
- Externe bergruimte
- 20 m²
- Perceel
- 301 m²
- Inhoud
- 535 m³
Indeling
- Aantal kamers
- 8 kamers (6 slaapkamers)
- Aantal badkamers
- 1 badkamer en 1 apart toilet
- Badkamervoorzieningen
- Douche, toilet, en wastafel
- Aantal woonlagen
- 3 woonlagen
- Voorzieningen
- Natuurlijke ventilatie en TV kabel
Energie
- Energielabel
- B
- Isolatie
- Dakisolatie, muurisolatie en vloerisolatie
- Verwarming
- Cv-ketel
- Warm water
- Cv-ketel
- Cv-ketel
- Intergas (gas gestookt combiketel uit 2021, eigendom)
Kadastrale gegevens
- HIJUM D 1360
- Kadastrale kaart
- Oppervlakte
- 301 m²
- Eigendomssituatie
- Volle eigendom
Buitenruimte
- Ligging
- Aan park en vrij uitzicht
- Tuin
- Achtertuin, voortuin en zijtuin
- Achtertuin
- 84 m² (8,36 meter diep en 10,00 meter breed)
- Ligging tuin
- Gelegen op het noordoosten bereikbaar via achterom
Garage
- Soort garage
- Vrijstaande stenen garage
- Capaciteit
- 1 auto
- Voorzieningen
- Elektra
- Isolatie
- Geen isolatie
Parkeergelegenheid
- Soort parkeergelegenheid
- Op eigen terrein
Foto's 55
© 2001-2025 funda






















































