
Omschrijving
In het centrum van Susteren wordt deze twee-onder-een-kap woning gebouwd met een perceeloppervlakte van 180 m2. De woning is duurzaam en gasloos en heeft een Energielabel van A+++
INDELING
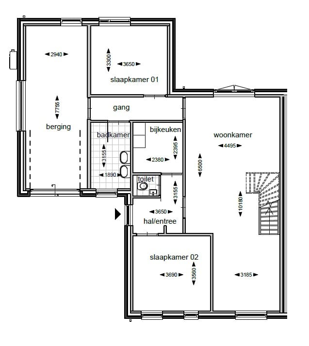
Begane grond
U komt de woning binnen in de entree/hal met meterkast en (gasten)toilet. Via de entree/hal betreedt u de ruime, lichte woonkamer met open keuken (niet inbegrepen). Ook de 2 slaapkamers en badkamer bevinden zich op de begane grond evenals de ruime berging..
Eerste verdieping
De zolderruimte op de verdieping is te bereiken met een vliezotrap en is een praktische invulling voor de opslag van uw spullen..
Parkeermogelijkheden.
uw eigen oprit biedt parkeerplaats voor één auto. In de straat is voldoende parkeergelegenheid voor bezoekers.
Tuin
De tuin heeft praktische afmetingen en ligt aan de voor- en achterzijde van de woning.
Algemeen
Het pand is uitgerust met kunststof kozijnen met dubbele beglazing HR++.
In de techniekruimte staat de binnenunit van de warmtepomp en separate warmtepompboiler van 200 liter die zorgt voor duurzame verwarming en warm water. De zonnepanelen en de natuurlijke ventilatie door de ventilatieroosters in de gevelpuien maken het energiezuinige karakter van de woningen compleet. De begane grond is voorzien van vloerverwarming en de badkamer kan met een elektrische designradiator worden bij verwarmd (optie).
Situering
De woning maakt deel uit van een ontwikkeling van 6 levensloop bestendige woningen en is zeer rustig gelegen in en hofje.
Dankzij de praktische opzet van de kavels en de ideale indeling bieden de woningen u nu en in de toekomst een fijn thuis!
De woningen zijn gelegen op een loopafstand van 400 meter van voorzieningen zoals openbaar vervoer (trein- busstation), winkelcentrum, supermarkt, horeca, medische zorg, apotheek, basisschool, Reinoudhal met sportfaciliteiten en sociaal cultureel centrum.
De steden Roermond, Maastricht, Sittard, Heerlen, Maaseik en de Duitse steden in het Roergebied. Liggen op korte afstand.
De bouw is eerst in juni 2024 gestart en gevorderd tot de begane grondvloer, zodat u nog invloed kunt hebben op de indeling en vormgeving van uw woning.
Vraag altijd naar de lijst van zaken. De in deze brochure omschreven zaken horen niet altijd bij de woning en gaan soms mee of zijn soms ter overname.
Deze woning is gemeten volgens de Meetinstructie. De Meetinstructie is gebaseerd op de NEN2580. De Meetinstructie is bedoeld om een meer eenduidige manier van meten toe te passen voor het geven van de gebruiksoppervlakte. De Meetinstructie sluit verschillen in meetuitkomsten niet volledig uit, door bijvoorbeeld interpretatieverschillen, afrondingen of beperkingen bij het uitvoeren van de meting.
Hoewel wij de woning met veel zorg en naar eer en geweten hebben opgemeten, kan het zijn dat er verschillen zijn in de afmetingen. De opgegeven maten zijn indicatief, er kunnen kleine verschillen zijn. Afhankelijk van de moeilijkheidsgraad van het te meten specifieke object kunnen deze verschillen groter of kleiner zijn. Indien de exacte maatvoering voor u van belang is, raden wij u aan de maten zelf te (laten) meten.
Alle genoemde jaartallen zijn circa en zuiver indicatief.
Een mondelinge overeenstemming tussen de particuliere verkoper en de particuliere koper is niet rechtsgeldig. Met andere woorden: er is geen koop. Er is pas sprake van een rechtsgeldige koop als de particuliere verkoper en de particuliere koper de koopovereenkomst hebben ondertekend. Dit vloeit voort uit artikel 7:2 Burgerlijk Wetboek. Een bevestiging van de mondelinge overeenstemming per e-mail of een toegestuurd concept van de koopovereenkomst wordt overigens niet gezien als een 'ondertekende koopovereenkomst'.
De koopakte betreft een standaard-NVM koopovereenkomst met een aantal aanvullende artikelen, zoals:
- ouderdomsclausule (bij woningen ouder dan 20 jaar)
- asbestclausule (bij woningen van voor 1993)
- notarisclausule (maximum aan kosten voor verkoper en tijdsbepaling)
- meetclausule (aansprakelijkheid verkoper en makelaar)
- voorbehoud akkoord hypotheekbank verkoper (indien van toepassing)
- niet-bewonersclausule (indien van toepassing)
- overige clausules voor zover van toepassing
Deze informatie is door ons met de nodige zorgvuldigheid samengesteld. Dit geldt voor het opmeten van de ruimten, het geven van jaartallen en het geven van overige informatie. Heeft u twijfels omtrent de juistheid van enig punt dan verzoeken wij u vriendelijk dit aan ons kenbaar te maken. Onzerzijds wordt echter geen enkele aansprakelijkheid aanvaard voor enige onvolledigheid, onjuistheid of anderszins, dan wel de gevolgen daarvan. Eens te meer niet indien de betreffende informatie ouder is, moeilijker te verkrijgen, dan wel voor meerdere interpretaties vatbaar.
Kenmerken
Overdracht
- Laatste vraagprijs
- € 445.000 vrij op naam
- Vraagprijs per m²
- € 5.000
- Status
- Verkocht
Bouw
- Soort woonhuis
- Eengezinswoning, 2-onder-1-kapwoning
- Soort bouw
- Nieuwbouw
- Bouwjaar
- 2024
- Soort dak
- Zadeldak bedekt met pannen
Oppervlakten en inhoud
- Gebruiksoppervlakten
- Wonen
- 89 m²
- Overige inpandige ruimte
- 56 m²
- Perceel
- 303 m²
- Inhoud
- 618 m³
Indeling
- Aantal kamers
- 5 kamers (2 slaapkamers)
- Aantal badkamers
- 1 badkamer en 1 apart toilet
- Badkamervoorzieningen
- Dubbele wastafel, inloopdouche, en vloerverwarming
- Aantal woonlagen
- 1 woonlaag en een zolder
- Voorzieningen
- Mechanische ventilatie, natuurlijke ventilatie, schuifpui, en zonnepanelen
Energie
- Energielabel
- A+++
- Isolatie
- Dakisolatie, dubbel glas, HR-glas, kierdichting, muurisolatie, vloerisolatie en volledig geïsoleerd
- Verwarming
- Gehele vloerverwarming en warmtepomp
Kadastrale gegevens
- SUSTEREN D 7275
- Kadastrale kaart
- Oppervlakte
- 303 m²
- Eigendomssituatie
- Volle eigendom
Buitenruimte
- Ligging
- In centrum
- Tuin
- Tuin rondom
Bergruimte
- Schuur/berging
- Inpandig
Garage
- Soort garage
- Inpandig
- Capaciteit
- 1 auto
Parkeergelegenheid
- Soort parkeergelegenheid
- Op eigen terrein
Foto's 9
© 2001-2025 funda








