
Omschrijving
Ontdek de perfecte woning voor jouw gezin in de moderne en kindvriendelijke wijk Othene!
Gelegen in een rustige en groene buurt, biedt deze tussenwoning alles wat je nodig hebt voor comfortabel en praktisch wonen. Binnen handbereik vind je tal van voorzieningen die het dagelijks leven makkelijker maken. Van supermarkt tot basisscholen en zelfs een schoonheidssalon – Othene heeft het allemaal. Deze wijk is de ideale plek voor (jonge) gezinnen die het gemak van nabijgelegen faciliteiten en de rust van een prettige woonomgeving willen combineren.
Stap binnen in deze goed onderhouden woning die van alle gemakken is voorzien. Met maar liefst vier ruime slaapkamers, waaronder een op de begane grond, is er meer dan genoeg ruimte voor het hele gezin. De slaapkamer op de begane grond heeft de extra luxe van een eigen doucheruimte met toilet en wastafel – ideaal voor levensloopbestendig wonen. Heb je toch liever een kantoor of praktijkruimte aan huis? Ook dat is mogelijk in deze veelzijdige ruimte!
De ruime hal verwelkomt je bij binnenkomst en biedt toegang tot de begane grond: de slaapkamer, woonkamer, een apart toilet en de trap naar de verdieping. De woonkamer is licht en uitnodigend, met een open keuken die is voorzien van inbouwapparatuur en een nette laminaatvloer. Vanuit de woonkamer heb je direct toegang tot de achtertuin – ideaal voor gezellige momenten buiten. De open woonkeuken is praktisch en compleet met aansluitend een bergruimte met aansluitingen voor je witgoedapparatuur.
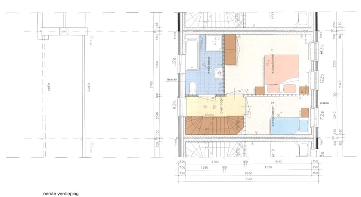
Op de eerste verdieping vind je twee goed bemeten slaapkamers en een verzorgde badkamer. De badkamer is deels betegeld en uitgerust met een douchecabine, een ligbad, een 3e toilet en een wastafel. Op de tweede verdieping, bereikbaar via een vaste hardhouten trap, wacht een extra ruime vierde slaapkamer, voorzien van een Velux dakraam.
De fijne tuin met tuinhuis, gelegen op het noorden, biedt volop mogelijkheden voor ontspanning en privacy. Via de achterom is er toegang tot de brandgang, wat de toegang tot je tuin vergemakkelijkt.
Algemene kenmerken van de woning:
-Warm water en verwarming middels een Vaillant HR-combiketel uit 2006
-Mechanisch ventilatiesysteem voor een gezond binnenklimaat
-Hardhouten kozijnen rondom, voorzien van isolatieglas
-Vloer-, muur- en dakisolatie voor een energiezuinig huis
-Energielabel A, wat zorgt voor lage energiekosten en duurzaamheid
Ben jij op zoek naar een ruime eengezinswoning in een kindvriendelijke buurt, waar je zonder zorgen kunt genieten van je gezin? Wacht dan niet langer en plan snel een bezichtiging! Deze tussenwoning in Othene is de perfecte plek voor de volgende stap in jouw woondroom.
Bijzonderheden
Een huis kopen of verkopen doe je misschien maar één keer in je leven. Het is dan ook goed om vooraf te weten dat alles gedurende dit proces volgens de regels verloopt. Het biedingstraject verloopt via "Eerlijk Bieden", het eerste keurmerk voor makelaars dat een eerlijk biedproces garandeert aan zowel de verkoper als de woningzoeker. Zo weet iedereen in een oogopslag dat ze te maken hebben met een betrouwbare makelaar.
Deze informatie is met zorg samengesteld. Mochten er onvolkomenheden in voorkomen kunnen daar geen rechten aan worden ontleend.
Ter bescherming van de belangen van zowel koper als verkoper, wordt uitdrukkelijk gesteld dat een koopovereenkomst met betrekking tot deze onroerende zaak eerst dan tot stand komt nadat koper en verkoper de koopovereenkomst hebben getekend (“schriftelijkheidsvereiste”).
De termijn die wordt opgenomen voor eventuele (overeengekomen) ontbindende voorwaarden (bv. Financiering) is in de regel 4 tot 6 weken na het sluiten van de mondelinge wilsovereenkomst.
De waarborgsom/bankgarantie is 10% van de koopsom. De koper dient deze 2 weken ná het vervallen van de ontbindende voorwaarden bij de desbetreffende notaris te deponeren.
Koper is te allen tijde gerechtigd voor eigen rekening een bouwkundige keuring te (laten) verrichten dan wel andere adviseurs te raadplegen teneinde een goed inzicht te verkrijgen over de staat van onderhoud.
Kenmerken
Overdracht
- Laatste vraagprijs
- € 299.000 kosten koper
- Vraagprijs per m²
- € 2.121
- Status
- Verkocht
Bouw
- Soort woonhuis
- Eengezinswoning, tussenwoning
- Soort bouw
- Bestaande bouw
- Bouwjaar
- 2006
- Soort dak
- Zadeldak bedekt met pannen
Oppervlakten en inhoud
- Gebruiksoppervlakten
- Wonen
- 141 m²
- Perceel
- 160 m²
- Inhoud
- 445 m³
Indeling
- Aantal kamers
- 5 kamers (4 slaapkamers)
- Aantal badkamers
- 2 badkamers en 1 apart toilet
- Badkamervoorzieningen
- 2 douches, 2 toiletten, 2 wastafelmeubels, en ligbad
- Aantal woonlagen
- 3 woonlagen
- Voorzieningen
- Dakraam, mechanische ventilatie, en TV kabel
Energie
- Energielabel
- Isolatie
- Dubbel glas en volledig geïsoleerd
- Verwarming
- Cv-ketel
- Warm water
- Cv-ketel
- Cv-ketel
- Vaillant (gas gestookt combiketel uit 2006, eigendom)
Kadastrale gegevens
- TERNEUZEN T 1389
- Kadastrale kaart
- Oppervlakte
- 160 m²
- Eigendomssituatie
- Eigendom belast met gebruik en bewoning
Buitenruimte
- Ligging
- In woonwijk
- Tuin
- Achtertuin en voortuin
- Achtertuin
- 47 m² (8,50 meter diep en 5,50 meter breed)
- Ligging tuin
- Gelegen op het noorden bereikbaar via achterom
Bergruimte
- Schuur/berging
- Vrijstaande houten berging
Parkeergelegenheid
- Soort parkeergelegenheid
- Openbaar parkeren
Foto's 22
© 2001-2026 funda





















