Dit huis op Funda: https://www.funda.nl/detail/koop/verkocht/thorn/huis-casino-23/43921739/

Omschrijving
In het beroemde witte stadje Thorn staat deze verrassend ruime woning uit 1880, met drie ruime slaapkamers boven en een sport-/werkkamer op de begane grond. De woonkamer, met een zit- en een eetgedeelte, heeft openslaande deuren naar de tuin en aan de andere zijde van de hal zijn de fraaie eetkeuken en badkamer. De ruime tuin heeft een uitstekende
zonligging op het zuidwesten.
Een supermarkt, basisschool en de oude kern van het stadje zijn maar een paar minuten lopen. Voor een kop koffie, lunch en het avondeten zijn er diverse horecagelegenheden in Thorn. Zo vind je alles wat je zoekt, op een prachtige plek in Limburg. Voor watersporters is de ligging ten opzichte van de Maasplassen een groot pluspunt en de omgeving leent zich
uitstekend voor een mooie wandeling. De oprit van de A2 is ongeveer 2,5 kilometer rijden en de A73 bevindt zich op circa 9 kilometer afstand.
Het bouwjaar is 1880, de perceeloppervlakte meet 135 m² en de inhoud bedraagt 540 m³.
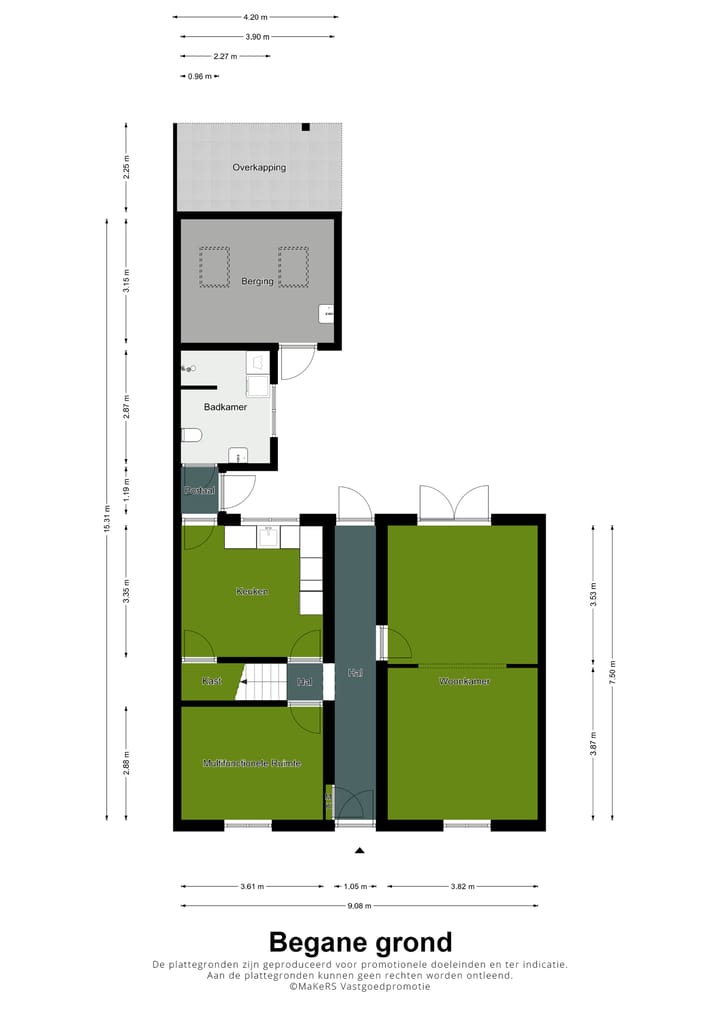
Hal en werkkamer
In het midden van de voorgevel is de entree van deze sfeervolle, verrassend ruime woning. De hal met mooie tegelvloer heeft een lengte van maar liefst 7.50 meter, met aan het einde een deur naar de achtertuin. Links in de hal zijn de trapopgang, sportkamer en de eetkeuken. De sportkamer, met een houten vloer en een prachtige balk bij het plafond, is ook heel geschikt als werkkamer, kantoor of hobbyruimte.
Keuken
In de gezellige, ruime eetkeuken is genoeg ruimte voor een grote eettafel. Lichte kleuren bepalen de sfeer, samen met de moderne keuken in hoekopstelling. Deze keuken heeft veel bergruimte en de inductie kookplaat, afzuigkap, combi-oven,
vaatwasser en koelkast zijn ingebouwd.
Badkamer
Een portaal verbindt de keuken met de tuin en de badkamer. In de badkamer is de ruimte ingedeeld met een ruime inloopdouche, wastafel, toilet, een hoge radiator en de aansluitingen voor de wasmachine. In het verlengde van de
badkamer is een ruime berging/hobbyruimte, te bereiken vanuit de tuin.
Woonkamer
Aan de andere zijde van de hal is de woonkamer waar, net als in de sportkamer, een houten vloer ligt. Het zitgedeelte is aan de voorzijde en aan de achterzijde is een royaal eetgedeelte, met openslaande deuren naar de tuin. Het merendeel van de muren en de plafonds zijn gestuct.
Verdieping
Vanaf de overloop zijn drie verrassend ruime slaapkamers te bereiken, waarvan twee aan de achterzijde. De originele houten vloer is zichtbaar, net als het vernieuwde dak met isolatie. In twee slaapkamers hangt een wastafel en de overloop is groot genoeg voor een werk-/studeerplek of speelhoek.
Vliering
In de nok van de woning is een dubbele vliering.
Tuin
Vanuit de woonkamer, hal en het portaal is de zeer ruime tuin op het zuidwesten te bereiken. De tuin heeft een uitstekende zonligging en er is genoeg ruimte.
Algemeen
- Hardhouten kozijnen met isolatieglas (dubbelglas)
- Multifunctionele kamer op de begane grond (mogelijk werkkamer/ kantoor)
- Aanbouw aan de achterzijde (badkamer en berging)
- Drie ruime slaapkamers
- Zonnige, ruime tuin op het zuidwesten
Kenmerken
Overdracht
- Laatste vraagprijs
- € 325.000 kosten koper
- Vraagprijs per m²
- € 2.425
- Status
- Verkocht
Bouw
- Soort woonhuis
- Eengezinswoning, tussenwoning
- Soort bouw
- Bestaande bouw
- Bouwjaar
- 1880
- Soort dak
- Zadeldak bedekt met pannen
Oppervlakten en inhoud
- Gebruiksoppervlakten
- Wonen
- 134 m²
- Overige inpandige ruimte
- 12 m²
- Gebouwgebonden buitenruimte
- 9 m²
- Perceel
- 260 m²
- Inhoud
- 540 m³
Indeling
- Aantal kamers
- 6 kamers (4 slaapkamers)
- Aantal badkamers
- 1 badkamer
- Badkamervoorzieningen
- Inloopdouche, toilet, en wastafel
- Aantal woonlagen
- 2 woonlagen en een zolder
Energie
- Energielabel
- D
- Isolatie
- Dakisolatie en dubbel glas
- Verwarming
- Cv-ketel
- Warm water
- Cv-ketel
- Cv-ketel
- Bosch (gas gestookt combiketel uit 2014, eigendom)
Kadastrale gegevens
- THORN A 2481
- Kadastrale kaart
- Oppervlakte
- 135 m²
- Eigendomssituatie
- Volle eigendom
- THORN A 2482
- Kadastrale kaart
- Oppervlakte
- 125 m²
- Eigendomssituatie
- Volle eigendom
Buitenruimte
- Ligging
- In woonwijk
- Tuin
- Achtertuin
Parkeergelegenheid
- Soort parkeergelegenheid
- Openbaar parkeren
Foto's 25
© 2001-2025 funda
























