
Omschrijving
Wonen met karakter en comfort!
Dit prachtige jaren ’30 woonhuis bied je een perfecte combinatie van karakter en modern comfort.
De glas-in-loodramen, de granito vloer in de hal en de kamer en suite geven de woning een sfeervolle uitstraling, terwijl de volledige isolatie en zonnepanelen zorgen voor een energiezuinige leefomgeving.
Geniet van de privacy in de fraai aangelegde, besloten tuin en maak gebruik van de ruime garage.
De laatste jaren is de woning met oog voor originele details flink onderhanden genomen en is helemaal up to date.
Een ideale plek voor wie karakter en comfort wil combineren!
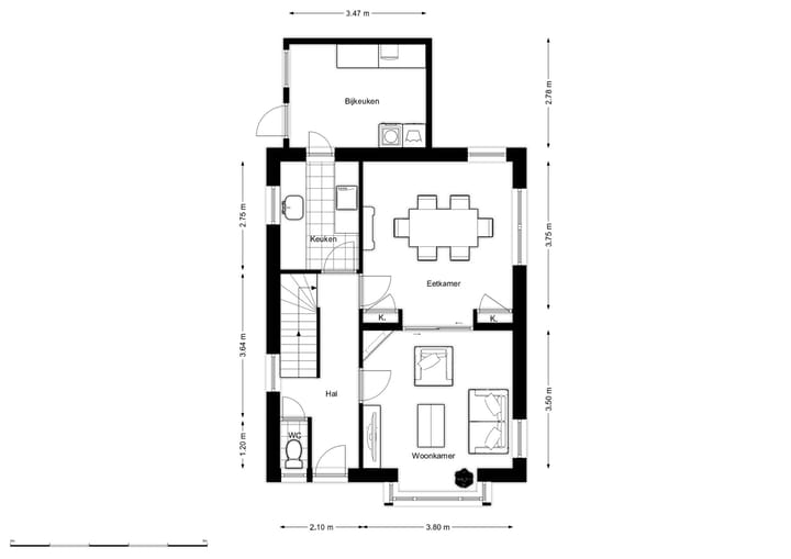
Indeling;
Entree, hal, toilet, kelder, sfeervolle woonkamer met warme houten vloer en hoge plafonds. Door de mooie en-suite deuren is er een voor- en achterkamer. In beide kamers staat een natuurstenen schouw. De glas- in- loodramen geven een fijne sfeer en de juiste finishing touch.
De dichte keuken is 1,5 jaar geleden volledig vernieuwd.
Voorzien van moderne apparatuur, zoals een combi magnetron met stoomoven en een Quooker, biedt de keuken alles wat je nodig hebt voor het bereiden van heerlijke maaltijden.
Het praktische ontwerp maakt het een ideale ruimte voor dagelijks gebruik.
In de bijkeuken is een extra keukenopstelling gerealiseerd met een spoelbak, een stelplaats voor het witgoed, een achteringang, handige bergruimte en de CV-ketel.
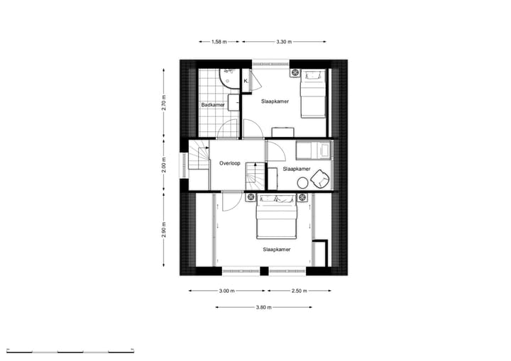
1e verdieping;
Overloop, aan de voorzijde een ruime ouderslaapkamer met vaste kasten. Aansluitend twee slaapkamers waarvan één met een vaste kast en de ander met een dakkapel.
Door de dakkapel is er een mooie leefruimte ontstaan. Modern ingerichte en verzorgde badkamer met regendouche en een meubel met wastafel.
2e verdieping;
Bereikbaar via een vaste trap, aan de voorzijde een slaapkamer en veel praktische bergruimte. Door het plaatsen van een dakraam is er zo nog een hobby, werk of kinderslaapkamer te creëren aan de achterzijde.
Buitenom;
Achter de woning ligt een gezellige tuin met een terras, diverse bloemenborders en is er ruimte voor bijvoorbeeld een trampoline of een overkapping. Je verwacht het wellicht niet, maar je zit hier heerlijk vrij en met voldoende zonuurtjes.
De tuin is via een achterom bereikbaar. Aan de voorzijde een diepe oprit met voldoende ruimte voor meerdere auto’s of bijvoorbeeld een camper of caravan.
Toegang tot een praktische garage met elektra en een bergzolder.
Het is heerlijk wonen in het gezellige Tuk met een prachtig glooiend achterland en de bossen van de Woldberg om de hoek.
Het complete winkelcentrum van Steenwijk ligt op ca. 3 kilometer en je zit zo op de A32 richting Zwolle of Leeuwarden.
Laat je verrassen door de sfeer en mogelijkheden van deze prachtige woning!
Je bent van harte welkom.
Kenmerken
Overdracht
- Laatste vraagprijs
- € 425.000 kosten koper
- Vraagprijs per m²
- € 4.048
- Status
- Verkocht
Bouw
- Soort woonhuis
- Eengezinswoning, vrijstaande woning
- Soort bouw
- Bestaande bouw
- Bouwjaar
- 1934
- Soort dak
- Samengesteld dak bedekt met bitumineuze dakbedekking en pannen
Oppervlakten en inhoud
- Gebruiksoppervlakten
- Wonen
- 105 m²
- Overige inpandige ruimte
- 4 m²
- Externe bergruimte
- 20 m²
- Perceel
- 325 m²
- Inhoud
- 337 m³
Indeling
- Aantal kamers
- 5 kamers (3 slaapkamers)
- Aantal badkamers
- 1 badkamer en 1 apart toilet
- Badkamervoorzieningen
- Douche, wastafel, en wastafelmeubel
- Aantal woonlagen
- 3 woonlagen en een kelder
- Voorzieningen
- Dakraam en zonnepanelen
Energie
- Energielabel
- B
- Isolatie
- Dakisolatie, dubbel glas, HR-glas, muurisolatie en vloerisolatie
- Verwarming
- Cv-ketel
- Warm water
- Cv-ketel
- Cv-ketel
- NEFIT (gas gestookt combiketel uit 2007, eigendom)
Kadastrale gegevens
- STEENWIJKERWOLD E 2063
- Kadastrale kaart
- Oppervlakte
- 325 m²
- Eigendomssituatie
- Volle eigendom
Buitenruimte
- Tuin
- Achtertuin, voortuin en zijtuin
- Achtertuin
- 100 m² (13,00 meter diep en 10,00 meter breed)
- Ligging tuin
- Gelegen op het noorden bereikbaar via achterom
Garage
- Soort garage
- Vrijstaande stenen garage
- Capaciteit
- 1 auto
- Voorzieningen
- Vliering en elektra
Parkeergelegenheid
- Soort parkeergelegenheid
- Op eigen terrein
Foto's 56
© 2001-2026 funda























































