
Omschrijving
Karakter, Ruimte en een Toplocatie!
Een unieke bovenwoning gelegen op een zeer goede en gezellige locatie in Utrecht met een fraaie gevel! Deze bovenwoning van ca. 106 m² heeft drie slaapkamers, twee werkkamers, een luxe keuken, royaal dakterras en een heerlijk zonnige woonkamer over de hele breedte van het pand. Ideaal voor samenwonenden, jonge gezinnen, werkende stellen en thuiswerkers.
De woning maakt deel uit van een voormalig groot hoekpand met een winkel op de begane grond. In 2006 is het woongedeelte gesplitst en voorzien van appartementsrechten.
LOCATIE
De Burgemeester Reigerstraat ligt in het geliefde Utrecht-Oost, tussen de Maliebaan en het Wilhelminapark. Een levendige straat met statige herenhuizen, boetieks, gezellige cafés en restaurants. Alles ligt binnen handbereik: de binnenstad op vijf fietsminuten, het Wilhelminapark om de hoek en uitstekende openbaarvervoersverbindingen.
Dankzij de recente herinrichting met prioriteit voor fietsers en voetgangers is de straat groener en aantrekkelijker dan ooit. Een plek waar stadsleven en woongenot naadloos samenkomen.
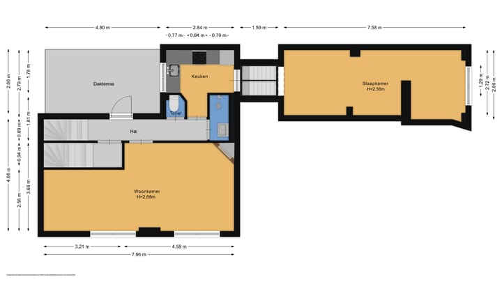
INDELING
Begane grond; Eigen entree met hal en een zijkamer aan de voorzijde, ideaal als bijkeuken, berging of werkkamer.
Eerste verdieping:
De zonnige woon-/eetkamer strekt zich uit over de hele voorzijde met uitzicht op de Burgemeester Reigerstraat.
Via de gang bereik je het toilet, de badkamer met douche en wastafelmeubel, én het ruime privé-dakterras.
De luxe maatwerkkeuken is voorzien van Siemens inbouwapparatuur, waaronder een inductiekookplaat, combi-oven/magnetron, vaatwasser en koelkast. Niet te vergeten een handige heetwater Quooker, stijlvol terrazzo aanrechtblad en dimbare plintverlichting.
Achter de keuken bevindt zich een royale slaapkamer (ook te gebruiken als eetkamer) met daarachter een zonnige extra kamer met fraai uitzicht. Ideaal als werkkamer.
Tweede verdieping: Overloop met cv-kast en aansluitingen voor wasmachine en droger. Twee ruime slaapkamers, waarvan één met wastafel.
BIJZONDERHEDEN
- Woonoppervlakte maar liefst 106 m² !!
- Bouwjaar ca. 1900
- Gemeentelijk monument met fraaie gevel
- 3 Slaapkamers en 2 ruimtes in te delen als werkkamer, atelier of berging
- Luxe maatwerkkeuken met moderne inbouwapparatuur (2023)
- Ruime en lichte woon-/eetkamer over de volle breedte van de gevel
- Groot en zonnig dakterras met veel privacy (420 x 268cm)!
- Verkoop mogelijk inclusief aanwezige meubels en inventaris
- Energielabel D
- Kleine VvE met 3 leden
- CV-combiketel Intergas (2022)
- Servicekosten: € 124,- per maand
BEREIKBAARHEID
Oudwijk is uitstekend bereikbaar. Via de Maliebaan en de Waterlinieweg rijd je zo naar de A27 en A28. Ook de andere uitvalswegen en de Utrechtse binnenstad liggen op slechts enkele minuten.
En alle voorzieningen binnen handbereik: supermarkt, speciaalzaken, boetieks en horeca
Kortom: een woning vol karakter en charme, met volop ruimte om er jouw eigen thuis van te maken. En dat alles op een absolute toplocatie in Utrecht-Oost!
Kom kijken en overtuig jezelf! Bel of app je VanHuyse-makelaar: 06-22133065.
Kenmerken
Overdracht
- Laatste vraagprijs
- € 625.000 kosten koper
- Vraagprijs per m²
- € 5.896
- Status
- Verkocht
- Bijdrage VvE
- € 124,00 per maand
Bouw
- Bouwjaar
- Voor 1906
- Soort appartement
- Bovenwoning
- Soort bouw
- Bestaande bouw
- Specifiek
- Gemeubileerd, gestoffeerd en monument
- Soort dak
- Samengesteld dak bedekt met bitumineuze dakbedekking en pannen
Oppervlakten en inhoud
- Gebruiksoppervlakten
- Wonen
- 106 m²
- Gebouwgebonden buitenruimte
- 13 m²
- Inhoud
- 370 m³
Indeling
- Aantal kamers
- 5 kamers (3 slaapkamers)
- Aantal badkamers
- 1 badkamer en 1 apart toilet
- Badkamervoorzieningen
- Douche, wastafel, en wastafelmeubel
- Aantal woonlagen
- 3 woonlagen
Energie
- Energielabel
- Isolatie
- Dakisolatie, gedeeltelijk dubbel glas en voorzetramen
- Verwarming
- Cv-ketel
- Warm water
- Cv-ketel
- Cv-ketel
- Intergas KombiKompakt HRE28/24A (gas gestookt combiketel uit 2022, eigendom)
Kadastrale gegevens
- ABSTEDE C 8803
- Kadastrale kaart
- Eigendomssituatie
- Volle eigendom
Buitenruimte
- Balkon/dakterras
- Dakterras aanwezig
Bergruimte
- Schuur/berging
- Inpandig
- Voorzieningen
- Elektra
Parkeergelegenheid
- Soort parkeergelegenheid
- Betaald parkeren en openbaar parkeren
VvE checklist
- Inschrijving KvK
- Ja
- Jaarlijkse vergadering
- Ja
- Periodieke bijdrage
- Ja (€ 124,00 per maand)
- Reservefonds aanwezig
- Ja
- Onderhoudsplan
- Nee
- Opstalverzekering
- Ja
Foto's 34
© 2001-2026 funda

































