
Omschrijving
Deze heerlijke tussenwoning met 3 slaapkamers en een zonnige tuin van circa 50 m² biedt alles voor een fijn gezinsleven. Gelegen in de groene, kindvriendelijke wijk Kanaleneiland-Zuid, op slechts 10 minuten fietsen van Utrecht Centraal en het bruisende stadscentrum. Met gratis parkeergelegenheid en snelle toegang tot de A2, A12 en A27, is de ligging perfect voor zowel werk als ontspanning. Winkels, woonboulevard, openbaar vervoer en Park Transwijk liggen om de hoek. Jouw ideale woning in een top locatie!
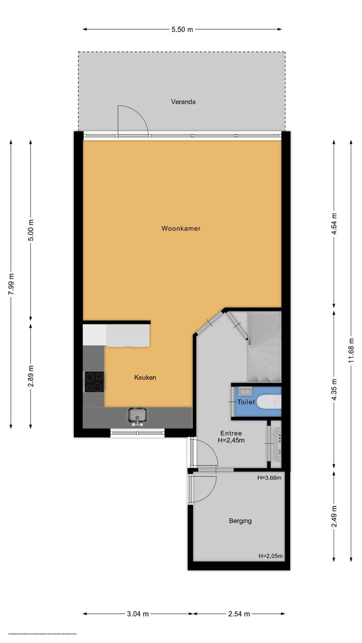
Indeling
Begane grond: Entree/hal, interne berging, toilet met fonteintje, royale woonkamer (5,50 x 5,00) voorzien
van vloerverwarming, moderne keuken (3,04 x 2,89) met kasten en vele apparatuur, royale achter tuin circa 50 m²
met stenen berging, overkapping en achterom, trap naar..
Eerste verdieping
Overloop, 3 slaapkamers: slaapkamer 1 (3,96 x 2,45), slaapkamer 2 (3,97 x 3,43) ,
slaapkamer 3 (3,97 x 1,98), nette badkamer (2,93 x 2,01) met inloop douche, vaste wastafel en 2e toilet. Vlizo trap naar..
Tweede verdieping
Vliering over de gehele breedte (5,50 meter) opslag/berging.
Tuin
royale achter tuin circa 50 m²
Bijzonderheden
- Gehele woning voorzien van houten kozijnen met dubbele beglazing;
- Zeer geschikt voor gezinnen met kinderen, autoluwe straat;
- Gehele woning voorzien van vloerverwarming;
- Begane grond voorzien van plavuizen vloeren, eerste verdieping visgraad laminaat??hout..?
- Verwarming door CV ketel merk Junkers;
- Goede ligging, Winkelcentrum Nova en woonboulevard is op 5 min loopafstand;
- Ruime, tuingerichte woonkamer op het zuiden met veel lichtinval.
Kenmerken
Overdracht
- Laatste vraagprijs
- € 429.000 kosten koper
- Vraagprijs per m²
- € 4.714
- Status
- Verkocht
Bouw
- Soort woonhuis
- Eengezinswoning, tussenwoning
- Soort bouw
- Bestaande bouw
- Bouwjaar
- 1988
- Soort dak
- Zadeldak bedekt met pannen
Oppervlakten en inhoud
- Gebruiksoppervlakten
- Wonen
- 91 m²
- Overige inpandige ruimte
- 7 m²
- Gebouwgebonden buitenruimte
- 13 m²
- Externe bergruimte
- 9 m²
- Perceel
- 130 m²
- Inhoud
- 342 m³
Indeling
- Aantal kamers
- 4 kamers (3 slaapkamers)
- Aantal badkamers
- 1 badkamer
- Badkamervoorzieningen
- Douche, toilet, en wastafelmeubel
- Aantal woonlagen
- 2 woonlagen en een vliering
Energie
- Energielabel
- Niet beschikbaar
Kadastrale gegevens
- UTRECHT R 729
- Kadastrale kaart
- Oppervlakte
- 130 m²
- Eigendomssituatie
- Erfpacht
Buitenruimte
- Ligging
- In woonwijk
- Tuin
- Achtertuin
- Achtertuin
- 55 m² (10,00 meter diep en 5,50 meter breed)
Bergruimte
- Schuur/berging
- Aangebouwde houten berging
- Voorzieningen
- Elektra
Foto's 41
© 2001-2025 funda








































