
Omschrijving
Zijn HR++ beglazing, minimaal drie slaapkamers en een ruim en zonnig balkon op het westen belangrijke criteria waar jouw nieuwe woning aan moet voldoen? Staan een eigen inpandig berging, veel privacy en meer dan voldoende parkeergelegenheid hoog op jouw wensenlijstje? Zoek jij 3-kamerappartement gelegen op de hoek, aan het einde van de galerij en nabij belangrijke dagelijkse voorzieningen?
Plan dan snel een bezichtiging bij Prins Willem-Alexanderpark 33!
Prins Willem-Alexanderpark 333 is een in 1968 gebouwd appartementencomplex. Het betreft een 4-kamerappartement gelegen op de hoek, met eigen berging, fietsenstalling en ruim voldoende parkeergelegenheid. Het appartement is zeer populair door zijn formaat en centrale ligging. Zo ben je binnen enkele minuten fietsen in bruisend Veenendaal Centrum met al haar winkels en horeca, bevindt zich om de hoek de Zandstraat met allemaal horeca, winkeltjes, sportvoorzieningen en plaatselijk ambacht en ben je via de Rondweg West binnen enkele minuten op de A12 richting Utrecht of Arnhem. Voor alle dagelijkse boodschappen bevindt zich op loopafstand een JUMBO supermarkt en zijn met Healthclub, La Vita en het Zwembad ook verschillende sportfaciliteiten in de buurt!
Vooruitlopend op de bezichtiging geven we je hieronder vast een eerste indruk!
Begane grond:
Via de entree kom je bij de beveiligde hoofdentree, intercominstallatie, brievenbussen en de liftinstallatie. Daarnaast bevinden zich op de begane grond de gemeenschappelijke fietsenstalling.
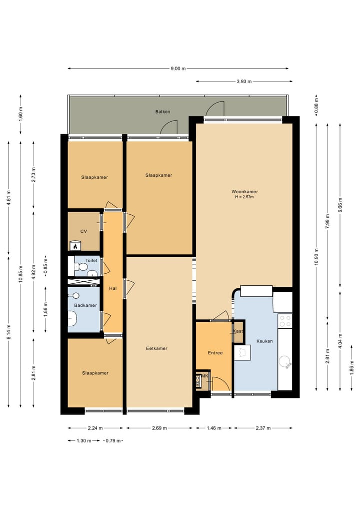
Appartement:
Eenmaal binnen in het appartement zie je een ruime entree met garderoberuimte en de meterkast. De toegangsdeur brengt je naar de leefruimte. Wat gelijk opvalt is de speelse indeling van het appartement. Een Z-vormige woon-/eetkamer met aan de achterzijde de woonkamer en aan de voorzijde de eetkamer. Daarnaast zien we aan zowel de voorkant als achterkant dat het appartement is voorzien van grote raampartijen waardoor het appartement wordt voorzien van veel daglichttoetreding! De living is bijna 44 m² en biedt enorm veel mogelijkheden. In het appartement vind je een half open keuken en uitgevoerd met witte fronten en het benodigde apparatuur. De keuken bevindt zich aan de voorzijde van het appartement en hier vind je ook de aansluitingen voor de wasmachine en eventueel droger. Bij veel vergelijkbare appartement staan de wasmachine en de droger in de wasruimte bij de boiler.
Via de hal kom je bij de badkamer welke centraal gelegen is tussen beide slaapkamers en voorzien van witte wandtegels, een enkele wastafel en douchehoek Het toilet is separaat en gelegen naast de badkamer.
De grootste slaapkamer is gelegen aan de achterzijde van het appartement, is bijna 12,5 m² groot en wordt door de eigenaar gebruikt als master bedroom. De 2e slaapkamer is ook gelegen aan de achterzijde van het appartement en is circa 6,1 m² groot. De derde slaapkamer is gelegen aan de voorzijde van het appartement (galerij) en is circa 6.3 m² groot.
Balkon:
Het balkon is gelegen op het westen en biedt je een mooi uitzicht over de gemeenschappelijk tuin, het groen en Veenendaal West.
EEN RONDLEIDING VOOR JOUW NIEUWE PLEK:
Neem contact met ons op, wij laten je dit leuke appartement graag van binnen zien!
Bijzonderheden:
Verwarming: blokverwarming
Warmwater: boiler (huur)
Isolatie: volledig geïsoleerd
Bouwjaar: 1968
Balkonligging: west
Aanvaarding: In overleg, kan snel.
Extra's:
- Ruim appartement;
- 3 slaapkamers;
- Energielabel F - voorzien van HR++ glas;
- Parkeren op de openbare parkeerplaatsen;
- Woning beschikt over eigen inpandige bering;
- Actieve Vereniging van Eigenaren;
- Maandelijkse bijdrage V.v.E. bedraagt: € 230,-, exclusief voorschot stookkosten;
- Projectnotaris Caminada Notarissen te Rijswijk.
Koopovereenkomst:
Bij de verkoop zal er een standaard NVM koopovereenkomst worden gehanteerd. Bij woningen welke ouder zijn dan 20 jaar, worden de volgende clausules opgenomen in de koopovereenkomst:
- Asbestclausule;
- Ouderdomsclausule.
Daarnaast zullen onderstaande clausules/artikelen toegevoegd worden aan de koopovereenkomst:
- Niet bewoners clausule
- Artikel ABC leveringsakte
- Artikel volmacht
Koopt u de woning zonder voorbehoud van financiering? Dan zullen wij een termijn hanteren van 14 dagen na het opstellen van de koopovereenkomst voor het storten van de bankgarantie/waarborgsom.
Deze informatie is door ons met de nodige zorgvuldigheid samengesteld. Onzerzijds wordt echter geen enkele aansprakelijkheid aanvaard voor enige onvolledigheid, onjuistheid of anderszins, dan wel de gevolgen daarvan. Alle opgegeven maten en oppervlakten zijn indicatief.
Kenmerken
Overdracht
- Laatste vraagprijs
- € 289.500 kosten koper
- Vraagprijs per m²
- € 2.924
- Status
- Verkocht
- Bijdrage VvE
- € 236,25 per maand
Bouw
- Soort appartement
- Galerijflat (appartement)
- Soort bouw
- Bestaande bouw
- Bouwjaar
- 1968
- Specifiek
- Gedeeltelijk gestoffeerd en gestoffeerd
- Soort dak
- Plat dak bedekt met bitumineuze dakbedekking
Oppervlakten en inhoud
- Gebruiksoppervlakten
- Wonen
- 99 m²
- Gebouwgebonden buitenruimte
- 12 m²
- Inhoud
- 312 m³
Indeling
- Aantal kamers
- 4 kamers (3 slaapkamers)
- Aantal badkamers
- 1 badkamer en 1 apart toilet
- Badkamervoorzieningen
- Douche en wastafel
- Aantal woonlagen
- 1 woonlaag
- Voorzieningen
- Buitenzonwering, glasvezelkabel, lift, natuurlijke ventilatie, en TV kabel
Energie
- Energielabel
- F
- Isolatie
- HR-glas
- Verwarming
- Blokverwarming
- Warm water
- Elektrische boiler (huur)
Kadastrale gegevens
- VEENENDAAL D 8456
- Kadastrale kaart
- Eigendomssituatie
- Volle eigendom
Buitenruimte
- Ligging
- Aan rustige weg en vrij uitzicht
- Balkon/dakterras
- Balkon aanwezig
Bergruimte
- Schuur/berging
- Inpandig
- Voorzieningen
- Elektra
Parkeergelegenheid
- Soort parkeergelegenheid
- Openbaar parkeren
VvE checklist
- Inschrijving KvK
- Ja
- Jaarlijkse vergadering
- Ja
- Periodieke bijdrage
- Ja (€ 236,25 per maand)
- Reservefonds aanwezig
- Ja
- Onderhoudsplan
- Ja
- Opstalverzekering
- Ja
Foto's 30
© 2001-2025 funda





























