
Omschrijving
Aan een mooie woonlaag op een zeer riant bemeten perceel, direct grenzend aan een wandelpark, gelegen, vrijstaande bungalow met o.a. doorzonwoonkamer, separate keuken, vier slaapkamers en een geheel vrij gelegen achtertuin met garage en berging.
Gelegen aan de rand van de wijk Zonderwijk op loopafstand van het gezellige Veldhoven-Dorp en de Kromstraat, met voorzieningen zoals winkels, scholen, wandelparken, openbaar vervoer en uitvalswegen in de directe omgeving beschikbaar.
Bouwjaar: ca. 1967
Perceeloppervlakte: 1173m2
Woonoppervlakte: ca. 119m2
Overige inpandige ruimte: ca. 4m2
Gebouwgebonden buitenruimte: ca. 12m2
Externe bergruimte: ca. 29m2
Inhoud: ca. 458m3
Aanvaarding: in overleg
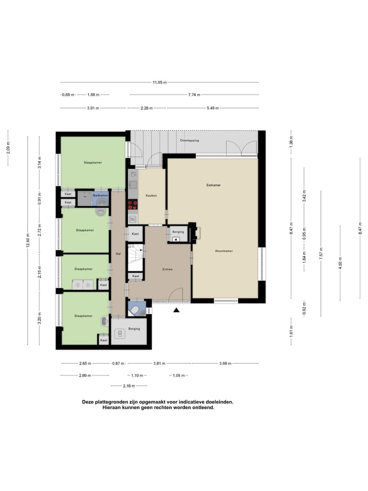
Indeling:
Aangelegde voortuin.
De oprit naast de woning biedt plaats aan een viertal personenauto's en heeft toegang tot de garage.
Ruime ontvangsthal met tegelvloer met vloerverwarming.
In lichte kleurstellingen betegelde toiletruimte met hangcloset en hoekwastafeltje.
Kelderkast met volop bergruimte en tevens opstelling van de vernieuwde meterkast (8 groepen, 2 aardlekschakelaars).
Cv-ruimte/berging met opstelling Remeha HR cv-combiketel (bouwjaar 2022, eigendom).
Separate keuken met granieten aanrechtblad en een complete inrichting (2003) en volop ingebouwde apparatuur, waaronder inductie kookplaat, vlakscherm afzuigkap, koelkast (2022), combi oven-/magnetron, vaatwasser (2022) en volop kastjes en laden. De keuken is afgewerkt met een tegelvloer met vloerverwarming en heeft een deur met toegang tot de tuin.
Ruime, lichte woonkamer met tegelvloer met vloerverwarming en deur met toegang tot de tuin.
Aan de linkerzijde van de woning bevindt zich de slaapvleugel, bestaande uit de volgende ruimten:
Berging/wasruimte, met aansluitingen t.b.v. de wasapparatuur.
Slaapkamer 1, voorzien van laminaatvloer, wastafel en vaste kast.
Slaapkamer 2, met vloerbedekking en vaste kast.
Slaapkamer 3, met laminaatvloer, wastafel en vaste kast.
Slaapkamer 4, met laminaatvloer, vaste kast, deur met toegang tot de tuin en deur met toegang tot de badkamer.
Geheel in lichte kleurstellingen betegelde badkamer met douche in cabine, wastafel en decorradiator.
Algemeen:
De woning is voorzien van dakisolatie, gevelisolatie (2022, minerale glaswol HR++) en dubbele beglazingen.
De hal, woonkamer en keuken zijn voorzien van vloerverwarming.
In 2019 is de bitumineuze dakbedekking vernieuwd.
Er is een energielabel D aanwezig.
Er zijn volop parkeermogelijkheden. Op eigen perceel biedt de oprit en de garage plaats aan een vijftal personenauto's. Ook in de straat zijn er nog volop gelegenheden tot parkeren.
De woning grenst met de achtertuin direct aan een groot wandelpark. Derhalve biedt de tuin een heerlijke privacy en is er een fraaie zicht over de grote bomen in het park.
Aan de rand van de wijk gelegen op loopafstand van voorzieningen zoals de gezellige Kromstraat, winkels, parken, openbaar vervoer verbindingen, scholen en uitvalswegen.
Kenmerken
Overdracht
- Laatste vraagprijs
- € 689.000 kosten koper
- Vraagprijs per m²
- € 5.790
- Status
- Verkocht
Bouw
- Soort woonhuis
- Bungalow, vrijstaande woning
- Soort bouw
- Bestaande bouw
- Bouwjaar
- 1967
- Soort dak
- Plat dak bedekt met bitumineuze dakbedekking
- Toegankelijkheid
- Toegankelijk voor mensen met een beperking en toegankelijk voor ouderen
Oppervlakten en inhoud
- Gebruiksoppervlakten
- Wonen
- 119 m²
- Overige inpandige ruimte
- 4 m²
- Gebouwgebonden buitenruimte
- 12 m²
- Externe bergruimte
- 29 m²
- Perceel
- 1.173 m²
- Inhoud
- 458 m³
Indeling
- Aantal kamers
- 5 kamers (4 slaapkamers)
- Aantal badkamers
- 1 badkamer en 1 apart toilet
- Badkamervoorzieningen
- Douche en wastafel
- Aantal woonlagen
- 1 woonlaag
- Voorzieningen
- Buitenzonwering, natuurlijke ventilatie, en TV kabel
Energie
- Energielabel
- D
- Isolatie
- Dakisolatie, dubbel glas en muurisolatie
- Verwarming
- Cv-ketel en gedeeltelijke vloerverwarming
- Warm water
- Cv-ketel
- Cv-ketel
- Remeha (gas gestookt combiketel uit 2022, eigendom)
Kadastrale gegevens
- VELDHOVEN E 5245
- Kadastrale kaart
- Oppervlakte
- 1.173 m²
- Eigendomssituatie
- Volle eigendom
Buitenruimte
- Ligging
- Aan park, aan rustige weg en in woonwijk
- Tuin
- Tuin rondom
Bergruimte
- Schuur/berging
- Vrijstaande stenen berging
- Voorzieningen
- Elektra
- Isolatie
- Geen isolatie
Garage
- Soort garage
- Vrijstaande stenen garage
- Capaciteit
- 1 auto
- Voorzieningen
- Elektra
- Isolatie
- Geen isolatie
Parkeergelegenheid
- Soort parkeergelegenheid
- Op eigen terrein en openbaar parkeren
Foto's 37
© 2001-2025 funda




































