
Omschrijving
Direct beschikbaar! Ruim en sfeervol appartement (maisonnette) met balkon en eigen tuin, gelegen op een ideale plek op korte afstand van het Bellamypark, de dagelijkse voorzieningen en de Boulevard. Dit unieke appartement is zeer compleet en strekt zich over 2 verdiepingen. Volledig voorzien van kunststof kozijnen en voorziet o.a. in een ruime woonkamer met open keuken, ruim balkon, verzorgd sanitair, 4 slaapkamers, waarvan 2 ruim van opzet zijn en tot slot een eigen balkon en besloten tuin met vrije achterom. Kom snel kijken!
Indeling:
Begane grond
Entree in hal met meterkast en trapopgang naar de 1e verdieping en daarmee het woongedeelte.
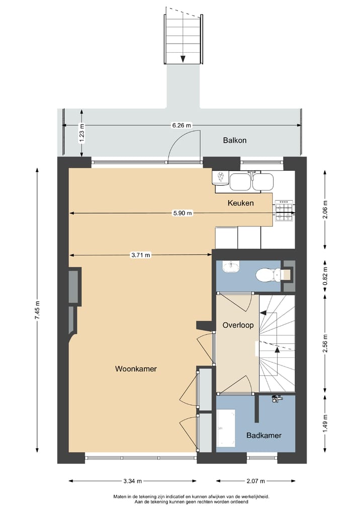
1e verdieping
Overloop geeft toegang tot het toilet en de woonkamer met open keuken. Bij binnenkomst in de woonkamer ervaart u direct de lichte en ruimtelijke beleving die dit appartement met zich meebrengt. Aan de straatzijde heeft u ruimte voor een gezellige zithoek en hier bevinden zich 2 inbouwkasten. Aan de tuinzijde treft u de open keuken, uitgevoerd in een U-opstelling met een natuurstenen werkblad. Via de woonkamer bereikt u het balkon die tevens toegang biedt tot de tuin.
2e verdieping
Via vaste trap treft u de overloop naar 4 slaapkamers, waaronder 2 twee zeer ruime slaapkamers aan de voor- en achterzijde. De kleinere slaapkamers kunnen uiteraard ook ideaal gebruikt worden als opbergruimte of kantoor. De dakkapellen dragen op deze verdieping bij aan een ruimtelijk geheel.
Tuin
Via het balkon bereikt u via de stalen trap de eigen tuin met een fijne bezonning en ontzettend veel privacy. Een échte plus van deze maisonnette! Achter in de tuin bevindt zich de vrije achterom.
De maandelijkse bijdrage voor de Vereniging van Eigenaren bedraagt € 70,-.
Nieuwsgiering geworden naar deze ruime Maisonnette? Neem dan contact op met Schinkel de Weerd Makelaardij voor een bezichtigingsafspraak.
Bijzonderheden:
- Standaard dient koper een bankgarantie c.q. waarborgsom van 10% van de koopprijs te stellen c.q. te storten via de notaris. Dit zal opgenomen worden in de koopovereenkomst;
- In de koopovereenkomst zal tevens een artikel worden opgenomen dat verband houdt met de ouderdom en in verband dat het appartement niet bewoond is.
- Bij woningen en appartementen met bouwjaar tot 1993 zal er in de koopovereenkomst een asbestclausule worden opgenomen.
Deze informatie is door ons met de nodige zorgvuldigheid samengesteld. Onzerzijds wordt echter geen enkele aansprakelijkheid aanvaard voor enige onvolledigheid, onjuistheid of anderszins, dan wel de gevolgen daarvan. Alle opgegeven maten en oppervlakten zijn indicatief.
Kenmerken
Overdracht
- Laatste vraagprijs
- € 235.000 kosten koper
- Vraagprijs per m²
- € 2.798
- Status
- Verkocht
- Bijdrage VvE
- € 70,00 per maand
Bouw
- Soort appartement
- Maisonnette (appartement)
- Soort bouw
- Bestaande bouw
- Bouwjaar
- 1950
- Specifiek
- Gestoffeerd
- Soort dak
- Zadeldak bedekt met pannen
Oppervlakten en inhoud
- Gebruiksoppervlakten
- Wonen
- 84 m²
- Gebouwgebonden buitenruimte
- 9 m²
- Inhoud
- 291 m³
Indeling
- Aantal kamers
- 5 kamers (4 slaapkamers)
- Aantal badkamers
- 1 badkamer en 1 apart toilet
- Badkamervoorzieningen
- Inloopdouche en wastafelmeubel
- Aantal woonlagen
- 2 woonlagen
- Voorzieningen
- Natuurlijke ventilatie, rolluiken, en TV kabel
Energie
- Energielabel
- D
- Isolatie
- Dubbel glas
- Verwarming
- Cv-ketel
- Warm water
- Cv-ketel
- Cv-ketel
- Nefit (gas gestookt combiketel uit 2020, eigendom)
Kadastrale gegevens
- VLISSINGEN C 4074
- Kadastrale kaart
- Eigendomssituatie
- Volle eigendom
Buitenruimte
- Tuin
- Achtertuin
- Achtertuin
- 31 m² (5,40 meter diep en 5,65 meter breed)
- Ligging tuin
- Gelegen op het zuidwesten bereikbaar via achterom
- Balkon/dakterras
- Balkon aanwezig
Parkeergelegenheid
- Soort parkeergelegenheid
- Parkeervergunningen
VvE checklist
- Inschrijving KvK
- Ja
- Jaarlijkse vergadering
- Nee
- Periodieke bijdrage
- Ja (€ 70,00 per maand)
- Reservefonds aanwezig
- Nee
- Onderhoudsplan
- Nee
- Opstalverzekering
- Ja
Foto's 31
© 2001-2025 funda






























