
Omschrijving
*** WELKOM THUIS bij deze zeer nette woning met zonnig balkon, gelegen op een praktische centrale locatie in Voorburg! ***
Dit leuke 4 kamer appartement heeft een woonoppervlak van ca. 77 m2, 3 slaapkamers, een ruime woon-/eetkamer van ca. 23 m2 met half open keuken, een moderne Nefit HR-combiketel uit 2022, is volledig voorzien van dubbel glas en beschikt over een zonnig balkon van ca. 5 m2, gelegen op het zuidoosten.
De locatie is echt ideaal. Schuin tegenover het appartement ligt station Laan van NOI vanwaar u gemakkelijk de bus, tram, RandstadRail, metro of de trein kunt pakken. Hiermee zijn steden als Leiden, Amsterdam, Zoetermeer en Rotterdam erg gemakkelijk bereikbaar. Met de fiets zit u binnen 10-15 minuten in hartje centrum Den Haag of op het strand van Scheveningen. Reist u veel met de auto? Ook dan is dit de perfecte uitvalsbasis. De A12 is namelijk te bereiken binnen 5 minuten. Winkels zijn te vinden in het gemoedelijke winkelcentrum “De Julianabaan”. Hier vindt u ook verschillende horecagelegenheden. Natuurlijk is ook de gezellige winkelstraat Theresiastraat bereikbaar en met tram 2 bent u binnen 10 minuten bij de Mall of The Netherlands. Het grootste winkelcentrum van Nederland! Scholen en kinderopvangcentra bevinden zich op korte fiets- en/of loopafstand evenals diverse parken en speeltuinen.
*** Bekijk de plattegrond, foto's en video voor een complete impressie van de woning ***
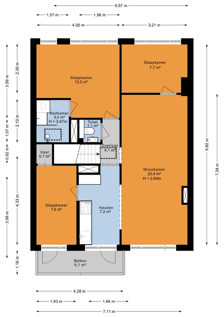
INDELING:
Entree via het portiek naar de entreehal met garderobe en meterkast. Vanuit deze entreehal met eigen trap binnenshuis naar boven. Extra lichtinval op de overloop dankzij de lichtkoepel op het dak. Hal met separaat toilet met fontein. Vervolgens komt u vanaf de hal in een lichte woon-/eetkamer met half open keuken.
De half open keuken is voorzien van diverse inbouwapparatuur, zoals inductiekookplaat, afzuigkap, vaatwasmachine en combi-oven/magnetron. Ook de HR-combiketel is opgesteld in de keuken.
Aan de andere kant van deze keuken bevind zich nog een slaapkamer van ca. 8 m2 met toegang tot het balkon. Dit balkon is ca. 5 m2 en is gelegen op het zuidoosten. Dit balkon is ook vanuit de keuken bereikbaar.
Via de woonkamer is een van de slaapkamers aan de voorzijde bereikbaar. Deze slaapkamer is ca. 8 m2. De ruime hoofdslaapkamer eveneens aan de voorzijde is ca. 13 m2 met toegang tot de luxe badkamer voorzien van inloopdouche, handdoekradiator, wastafelmeubel met ruimte voor wasmachine, mechanische afzuiging, en dakraam (elektrisch bedienbaar met afstandsbediening en regensensor).
KENMERKEN:
- bouwjaar 1926
- gelegen op eigen grond
- gebruiksoppervlak wonen ca. 77 m2
- balkon ca. 5 m2 (ligging ZO)
- verwarming/warm water middels HR-combiketel Nefit type Proline NXT II HRC 24 CW4 (2022), jaarlijks onderhouden
- 1/12e aandeel in actieve VvE
- MJOP aanwezig
- VvE-bijdrage is € 100,- per maand (incl. collectieve opstalverzekering)
- saldo bank VVE rekening € 35.124,87 per 19-06-2025
- VvE is voornemens te verduurzamen met behulp van een lening (zonnepanelen, vervangen kozijnen en vloerisolatie). De keuze hieromtrent, en in welke vorm, moet nog genomen worden.
- parkeervergunningbeleid in de straat
- energielabel F tot 29-03-2032
- dak is geïsoleerd (na opstellen energielabel)
- volledig voorzien van aluminium kozijnen met dubbel glas (m.u.v. voordeur)
- asbest- en ouderdomsclausule van toepassing
- overige verkoopinformatie digitaal beschikbaar
- oplevering in overleg (kan eventueel snel)
Hoewel deze presentatie met de grootst mogelijke zorg is samengesteld, kunnen aan de inhoud ervan geen rechten worden ontleend. Wij aanvaarden geen aansprakelijkheid voor eventuele onjuistheden of onvolledigheden in de vermelde informatie.
Koper heeft zijn eigen onderzoekplicht naar alle zaken die voor hem of haar van belang zijn. Wij adviseren u een deskundige (NVM-)makelaar in te schakelen die u begeleidt bij het aankoopproces. Indien u zich niet laat vertegenwoordigen door een aankopende makelaar of kundig adviseur acht u zich volgens de wet deskundig genoeg om alle van belang zijnde zaken te kunnen overzien. Van toepassing zijn de NVM voorwaarden.
Kenmerken
Overdracht
- Laatste vraagprijs
- € 350.000 kosten koper
- Vraagprijs per m²
- € 4.545
- Status
- Verkocht
- Bijdrage VvE
- € 100,00 per maand
Bouw
- Soort appartement
- Portiekwoning (appartement met open portiek)
- Soort bouw
- Bestaande bouw
- Bouwjaar
- 1926
- Soort dak
- Plat dak bedekt met bitumineuze dakbedekking
Oppervlakten en inhoud
- Gebruiksoppervlakten
- Wonen
- 77 m²
- Gebouwgebonden buitenruimte
- 5 m²
- Inhoud
- 260 m³
Indeling
- Aantal kamers
- 4 kamers (3 slaapkamers)
- Aantal badkamers
- 1 badkamer en 1 apart toilet
- Badkamervoorzieningen
- Douche en wastafel
- Aantal woonlagen
- 1 woonlaag
- Voorzieningen
- Dakraam en TV kabel
- Gelegen op
- 3e woonlaag
Energie
- Energielabel
- F
- Isolatie
- Dakisolatie en dubbel glas
- Verwarming
- Cv-ketel
- Warm water
- Cv-ketel
- Cv-ketel
- Nefit Proline NXT II HRC 24 CW4 (gas gestookt combiketel uit 2022, eigendom)
Kadastrale gegevens
- VOORBURG F 8195
- Kadastrale kaart
- Eigendomssituatie
- Volle eigendom
Buitenruimte
- Ligging
- Aan rustige weg en in woonwijk
- Balkon/dakterras
- Balkon aanwezig
Parkeergelegenheid
- Soort parkeergelegenheid
- Openbaar parkeren en parkeervergunningen
VvE checklist
- Inschrijving KvK
- Ja
- Jaarlijkse vergadering
- Ja
- Periodieke bijdrage
- Ja (€ 100,00 per maand)
- Reservefonds aanwezig
- Ja
- Onderhoudsplan
- Ja
- Opstalverzekering
- Ja
Foto's 33
© 2001-2025 funda
































