
Omschrijving
Aan de rand van de woonwijk “Park Haagsteeg”, nabij het gezellige stadscentrum gelegen, modern 3-KAMERAPPARTEMENT op de 2e woonlaag met eigen PARKEERPLAATS en een berging op de begane grond.
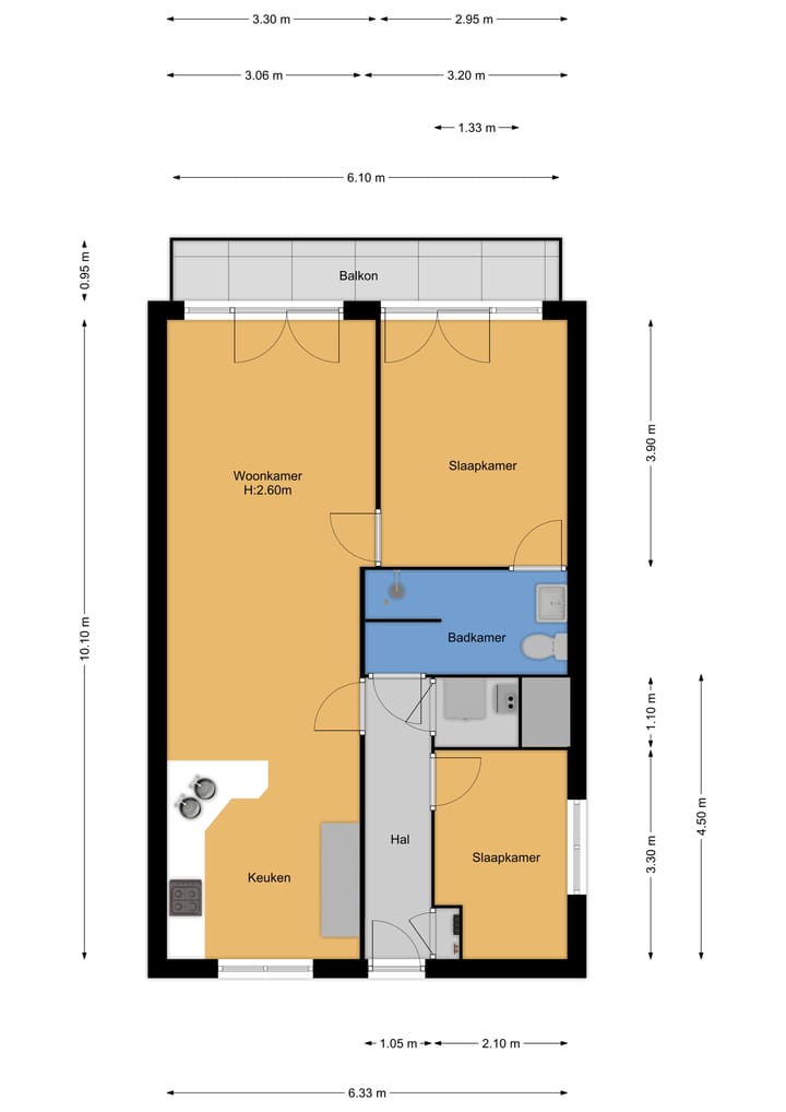
Indeling: hal, 2 slaapkamers (ca. 6 m² en 11 m²) waarvan 1 met openslaande deuren naar het balkon, wasruimte, badkamer met een inloopdouche, toilet en wastafelmeubel, woonkamer met openslaande deuren naar het balkon, open keuken met een gaskookplaat, afzuigkap, oven, koelkast en afwasmachine.
Dit goed onderhouden appartement is geheel voorzien van een laminaatvloer. Het appartementencomplex is voorzien van een afgesloten entree met intercom- en liftinstallatie. De eigen parkeerplaats bevindt zich op het parkeerterrein achter een slagboom. Op steenworpafstand bevindt zich een sportschool.
Verwarming en warm water d.m.v. een HR combiketel (2008). Bouwjaar ca. 2008. Inhoud ca. 205 m³.
Woonopp. ca. 64 m². Energielabel A.
Kenmerken
Overdracht
- Laatste vraagprijs
- € 325.000 kosten koper
- Vraagprijs per m²
- € 5.078
- Status
- Verkocht
- Bijdrage VvE
- € 125,00 per maand
Bouw
- Soort appartement
- Galerijflat (appartement)
- Soort bouw
- Bestaande bouw
- Bouwjaar
- 2008
Oppervlakten en inhoud
- Gebruiksoppervlakten
- Wonen
- 64 m²
- Gebouwgebonden buitenruimte
- 5 m²
- Externe bergruimte
- 6 m²
- Inhoud
- 205 m³
Indeling
- Aantal kamers
- 3 kamers (2 slaapkamers)
- Aantal badkamers
- 1 badkamer
- Badkamervoorzieningen
- Inloopdouche, toilet, en wastafelmeubel
- Aantal woonlagen
- 1 woonlaag
- Voorzieningen
- Lift en mechanische ventilatie
- Gelegen op
- 2e woonlaag
Energie
- Energielabel
- Isolatie
- Dubbel glas, muurisolatie en vloerisolatie
- Verwarming
- Cv-ketel
- Warm water
- Cv-ketel
- Cv-ketel
- Intergas (gas gestookt combiketel uit 2008, eigendom)
Kadastrale gegevens
- WAGENINGEN B 10559
- Kadastrale kaart
- Eigendomssituatie
- Volle eigendom
Buitenruimte
- Ligging
- Aan rustige weg, in woonwijk en vrij uitzicht
Bergruimte
- Schuur/berging
- Box
Parkeergelegenheid
- Soort parkeergelegenheid
- Op eigen terrein
VvE checklist
- Inschrijving KvK
- Ja
- Jaarlijkse vergadering
- Ja
- Periodieke bijdrage
- Ja (€ 125,00 per maand)
- Reservefonds aanwezig
- Ja
- Onderhoudsplan
- Ja
- Opstalverzekering
- Ja
Foto's 34
© 2001-2026 funda

































