
Omschrijving
Op zoek naar een charmant hoekhuis in het centrum van Wassenaar? Dan is dit uw kans!
Deze woning dient te worden opgeknapt om aan de huidige eisen te voldoen. Het kan geheel naar eigen wens worden ingedeeld en opgeleverd om modern comfort te bieden, terwijl diverse authentieke sfeer en karakteristieke details behouden kunnen blijven. De woning ademt historie en kan worden omgetoverd tot een thuis met alle gemakken van deze tijd. De zonnige zijtuin maakt het plaatje compleet.
Door de ligging aan de geliefde Oostdorperweg, zijn de voorzieningen allemaal dichtbij. Tevens is de woning vlakbij de Wassenaarse haven gelegen. De woning is gunstig gelegen ten opzichte van diverse voorzieningen, zoals scholen, winkels en restaurants. Binnen enkele minuten bent u bij de winkels van de luifelbaan voor de dagelijkse boodschappen en het strand is op 15 a 20 minuten fietsafstand te bereiken.
Indeling:
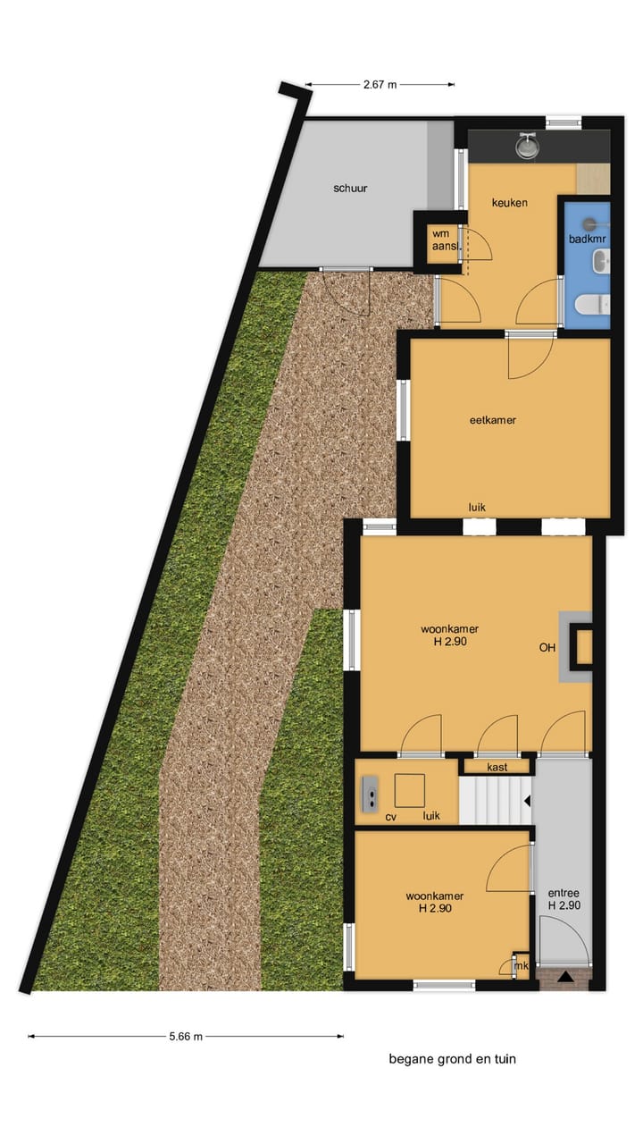
Begane grond: via de voordeur komt u de hal binnen, links treft u een voorkamer aan, waar zich ook de meterkast bevindt (2 groepen). Via de hal betreedt u de woonkamer met open haard en trappenkast, waarin tevens de CV ketel is opgesteld. Via de woonkamer komt u in de achterkamer, en via de achterkamer in de keuken, voorzien van wasmachine opstelplaats en keukendeur naar de tuin. Ook is hier de badkamer te bereiken, voorzien van een douche, toilet en wastafel.
1e verdieping:
Op de eerste verdieping zijn drie slaapkamers aanwezig, via de overloop bereikt u de voorslaapkamer welke is voorzien van een inbouwkast. Aan de achterzijde zijn 2 slaapkamers gelegen, waarvan de rechter kamer voorzien is van een dakkapel.
Dankzij de locatie in het centrum van Wassenaar, biedt deze woning de perfecte balans tussen rust en levendigheid. Met winkels, restaurants, en scholen op loopafstand, en de duinen en het strand binnen handbereik, geniet u hier van het beste wat Wassenaar te bieden heeft. Wassenaar is een van de meest exclusieve gemeenten van Nederland. Het is een groene gemeente voorzien van veel parken en bossen. Het strand van Wassenaar is een van de mooiste in Nederland en biedt veel mogelijkheden voor watersporten en ontspanning.
Bijzonderheden:
• De woning dient opgeknapt te worden.
• Ter informatie is een bouwkundig rapport beschikbaar.
• Bouwjaar 1913.
• Verzorgde zijtuin met achtergelegen houten berging.
• Woonoppervlakte 87 m2, perceeloppervlakte 116 m2.
• Drie slaapkamers, één badkamer.
• Voorkamer, woonkamer en achterkamer.
• Niet-bewoningsclausule, asbestclausule en de "as-is, where-is" clausule van toepassing op de NVM koopovereenkomst.
Deze informatie is door Welp Makelaardij met de nodige zorgvuldigheid samengesteld. Onzerzijds wordt echter geen enkele aansprakelijkheid aanvaard voor enige onvolledigheid, onjuistheid of anderszins, dan wel de gevolgen daarvan. Alle opgegeven maten en oppervlakten zijn indicatief. Van toepassing zijn de NVM voorwaarden.
Bent u enthousiast geworden en wilt u binnenkijken, sfeer proeven en de ruimte beleven?
We laten deze unieke woning aan Oostdorperweg 93 graag zien!
Kenmerken
Overdracht
- Laatste vraagprijs
- € 395.000 kosten koper
- Vraagprijs per m²
- € 4.540
- Status
- Verkocht
Bouw
- Soort woonhuis
- Herenhuis, hoekwoning
- Soort bouw
- Bestaande bouw
- Bouwjaar
- 1913
- Specifiek
- Kluswoning
- Soort dak
- Dwarskap bedekt met pannen
Oppervlakten en inhoud
- Gebruiksoppervlakten
- Wonen
- 87 m²
- Externe bergruimte
- 7 m²
- Perceel
- 116 m²
- Inhoud
- 329 m³
Indeling
- Aantal kamers
- 6 kamers (3 slaapkamers)
- Aantal badkamers
- 1 badkamer
- Badkamervoorzieningen
- Douche, toilet, en wastafel
- Aantal woonlagen
- 2 woonlagen
- Voorzieningen
- Natuurlijke ventilatie en TV kabel
Energie
- Energielabel
- G
- Isolatie
- Gedeeltelijk dubbel glas
- Verwarming
- Cv-ketel en moederhaard
- Warm water
- Cv-ketel
- Cv-ketel
- Gas gestookt combiketel, eigendom
Kadastrale gegevens
- WASSENAAR B 5641
- Kadastrale kaart
- Oppervlakte
- 116 m²
- Eigendomssituatie
- Volle eigendom
Buitenruimte
- Tuin
- Zijtuin
- Zijtuin
- 60 m² (4,00 meter diep en 15,00 meter breed)
- Ligging tuin
- Gelegen op het zuidwesten
Bergruimte
- Schuur/berging
- Aangebouwde houten berging
Parkeergelegenheid
- Soort parkeergelegenheid
- Openbaar parkeren
Foto's 32
© 2001-2025 funda































