Dit huis op Funda: https://www.funda.nl/detail/koop/verkocht/well-ge/huis-peerakker-2/43941506/

Omschrijving
Deze goed onderhouden tweekapper ligt op een fijne hoeklocatie en heeft een eigen oprit, een handige berging en een verzorgde achtertuin. Binnen vind je o.a. een moderne U-vormige keuken, een stijlvolle visgraatvloer en een nette badkamer. De woning beschikt over twee slaapkamers en een open zolderruimte, ideaal voor een werkplek of extra bergruimte. Een fijne, instapklare woning voor starters!
De woning is gebouwd in 2004 en is gelegen op een perceel van 240 m². De woonoppervlakte bedraagt ca. 132 m² en de woning heeft een inhoud van ca. 440 m³.
Peerakker 2 is gelegen in het landelijke dorp Well nabij de Afgedamde Maas. Het dorpje telt ca. 1000 inwoners en beschikt over een basisschool. Het naastliggende dorp Ammerzoden is binnen enkele minuten te bereiken en beschikt over een kleinschalig winkelcentrum met supermarkten, warme bakker, ambachtelijke slager, bloemist, scholen etc. Binnen 10 autominuten sta je in het gezellige vestingstadje Zaltbommel met tal van winkels, restaurants, terrasjes, NS-station, etc. De autosnelweg A2 richting ’s-Hertogenbosch – Utrecht is binnen 10 autominuten bereikbaar.
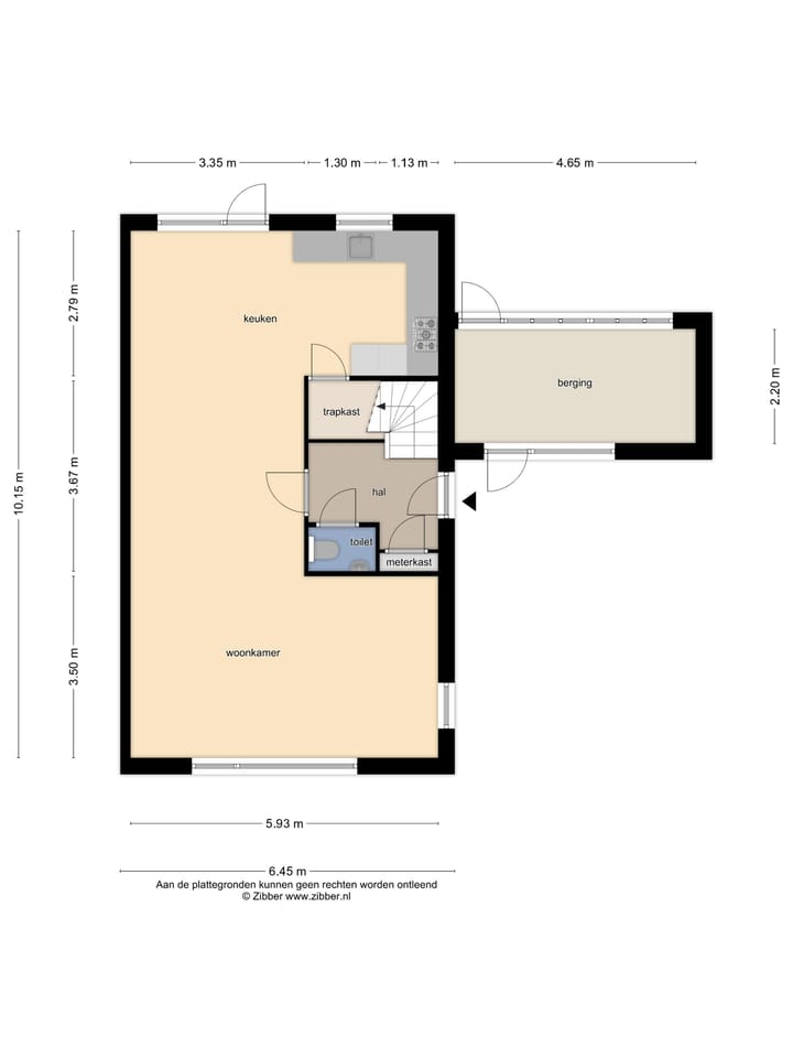
Indeling woning: via de entree kom je in een ruime hal met garderobe, meterkast, toiletruimte en een trapopgang naar de eerste verdieping. Vanuit de hal stap je de lichte en royale woonkamer binnen. De woonkamer bevindt zich aan de voorzijde, terwijl de moderne U-vormige keuken met diverse inbouwapparatuur aan de achterzijde is gesitueerd. Een loopdeur biedt directe toegang tot het terras en de achtertuin.
Eerste verdieping: op de eerste verdieping leidt de overloop naar twee ruime slaapkamers en een nette badkamer, voorzien van een inloopdouche, wandcloset en wastafel.
Tweede verdieping: een vaste trap brengt je naar de zolderverdieping, waar de cv-opstelling en aansluitingen voor de wasmachine en droger te vinden zijn. De ruime zolderkamer doet momenteel dienst als werkkamer en berging, maar biedt volop mogelijkheden om in te richten als extra slaap- of hobbykamer.
Kenmerken
Overdracht
- Laatste vraagprijs
- € 469.000 kosten koper
- Vraagprijs per m²
- € 3.553
- Status
- Verkocht
Bouw
- Soort woonhuis
- Eengezinswoning, 2-onder-1-kapwoning
- Soort bouw
- Bestaande bouw
- Bouwjaar
- 2004
- Soort dak
- Zadeldak bedekt met pannen
Oppervlakten en inhoud
- Gebruiksoppervlakten
- Wonen
- 132 m²
- Externe bergruimte
- 10 m²
- Perceel
- 240 m²
- Inhoud
- 440 m³
Indeling
- Aantal kamers
- 3 kamers (2 slaapkamers)
- Aantal badkamers
- 1 badkamer en 1 apart toilet
- Badkamervoorzieningen
- Inloopdouche, toilet, en wastafel
- Aantal woonlagen
- 2 woonlagen en een zolder
Energie
- Energielabel
- A
- Verwarming
- Cv-ketel
- Warm water
- Cv-ketel
- Cv-ketel
- Gas gestookt combiketel
Kadastrale gegevens
- AMMERZODEN H 1136
- Kadastrale kaart
- Oppervlakte
- 240 m²
- Eigendomssituatie
- Volle eigendom
Buitenruimte
- Ligging
- Aan rustige weg en in woonwijk
- Tuin
- Achtertuin en voortuin
- Achtertuin
- 83 m² (7,50 meter diep en 11,00 meter breed)
- Ligging tuin
- Gelegen op het noorden
Bergruimte
- Schuur/berging
- Aangebouwde stenen berging
- Voorzieningen
- Elektra
Parkeergelegenheid
- Soort parkeergelegenheid
- Op eigen terrein
Foto's 47
© 2001-2025 funda














































