
Omschrijving
TWEE-ONDER-EEN KAPWONING op een royaal perceel nabij de dijk in Weurt
Deze TWEE-ONDER-EEN-KAPWONING met SERRE en VRIJSTAANDE STENEN SCHUUR ligt op een prachtig perceel van maar liefst 1.385 m² in het oude dorpshart van Weurt. Hier woon je, vlak bij de dijk en uiterwaarden, in een karakteristieke straat met veel historie en met volop ruimte om je woonwensen waar te maken. Noem het een kluswoning. De woning is eenvoudig en dient geheel te worden gerenoveerd, maar biedt enorm veel potentie. Denk aan een grote tuin op het zuiden, voldoende ruimte voor een bijgebouw, hobbyruimte of zelfs het houden van kleinvee aan huis.
Welkom op de Pastoor van der Marckstraat 42 in Weurt.
Je woont hier in een rustige omgeving, maar met de fiets ben je wel binnen 10 minuten in het centrum van Nijmegen. Hier woon je in een karakteristieke straat met veel historie. Ook voorzieningen als scholen, winkels en uitvalswegen (A50/A73) zijn snel bereikbaar. Natuurliefhebbers kunnen hun hart ophalen aan de Waal en de omliggende uiterwaarden.
Algemeen
- Bouwjaar: circa 1910. Het woonhuis heeft nog mooie originele details. Het was origineel een boerderij en is in de jaren ‘60 verbouwd tot twee woningen.
- Woonoppervlak: 119 m²
- Overige inpandige ruimte (kelder): 14 m²
- Externe bergruimte (schuur): 51 m²
- Inhoud: 554 m³
- Perceeloppervlak: 1.385 m²
- Energielabel: G
- Verwarming/warm water: Nefit Topline combiketel uit 2011 (eigendom)
Indeling
Kelder:
Bergkelder, ideaal voor provisie of opslag.
Begane grond:
Entree via de hal met gang. De woonkamer ligt aan de voorzijde van het huis en heeft zicht op de straat. Aan de achterzijde bevinden zich de keuken en een slaapkamer/werkkamer. In de separate gang bevindt zich het toilet. Tevens een achteruitgang naar de tuin.
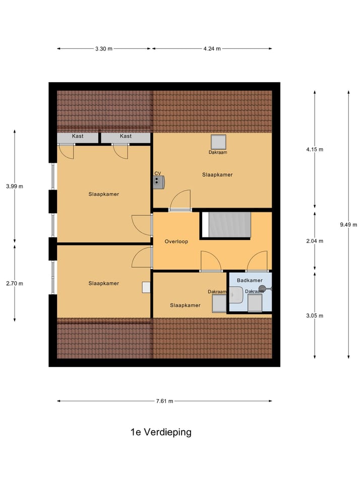
Verdieping:
Overloop en vier (slaap)kamers, plus een eenvoudige doucheruimte. Deze verdieping kan volledig naar smaak en voorkeuren opnieuw worden ingedeeld.
Zolder:
Boven een deel van de eerste verdieping is een zolderruimte, welke nu niet gebruikt wordt. Deze ruimte biedt zeker mogelijkheden, zoals de realisatie van een vide.
Bijgebouw
Bij de woning is in 1991 een garage gebouwd, die aan de voorzijde is ingericht als tuinkamer. De grote stenen schuur op het perceel biedt extra bergruimte of mogelijkheden voor hobby's aan huis.
De tuin is met ca. 55 meter diepte en ca. 22 meter breedte uitzonderlijk royaal. De ligging op het zuiden zorgt voor optimale zonligging. Achter in de tuin ligt een weide, die ideaal is voor het houden van bijvoorbeeld een pony.
Verder
- De woning is niet geïsoleerd
- De binnenwanden zijn voorzien van asbesthoudende wandpanelen
- Karaktervolle locatie nabij de dijk en uiterwaarden
- Geheel te renoveren woning met veel mogelijkheden
- Enorme tuin met weide; geschikt voor ponyliefhebbers, ruimtezoekers of hobbyisten
- Snelle aansluiting op Nijmegen en de snelwegen
Ben jij op zoek naar ruimte, rust en de mogelijkheid om een woning volledig naar eigen inzicht te creëren? Dan is deze woning aan de Pastoor van der Marckstraat 42 zéker het bekijken waard. Neem contact met ons op voor een bezichtiging.
Kenmerken
Overdracht
- Laatste vraagprijs
- € 450.000 kosten koper
- Vraagprijs per m²
- € 3.782
- Status
- Verkocht
Bouw
- Soort woonhuis
- Eengezinswoning, 2-onder-1-kapwoning
- Soort bouw
- Bestaande bouw
- Bouwjaar
- 1910
- Specifiek
- Kluswoning
- Soort dak
- Zadeldak bedekt met pannen
Oppervlakten en inhoud
- Gebruiksoppervlakten
- Wonen
- 119 m²
- Overige inpandige ruimte
- 14 m²
- Externe bergruimte
- 51 m²
- Perceel
- 1.385 m²
- Inhoud
- 554 m³
Indeling
- Aantal kamers
- 6 kamers (4 slaapkamers)
- Aantal badkamers
- 1 badkamer en 1 apart toilet
- Badkamervoorzieningen
- Douche en wastafel
- Aantal woonlagen
- 2 woonlagen en een kelder
- Voorzieningen
- Dakraam
Energie
- Energielabel
- G
- Verwarming
- Cv-ketel
- Warm water
- Cv-ketel
- Cv-ketel
- Nefit Topline (gas gestookt combiketel uit 2011, eigendom)
Kadastrale gegevens
- WEURT B 2903
- Kadastrale kaart
- Oppervlakte
- 1.385 m²
- Eigendomssituatie
- Volle eigendom
Buitenruimte
- Ligging
- Aan rustige weg en in woonwijk
- Tuin
- Achtertuin, voortuin, zijtuin en zonneterras
- Achtertuin
- 1.210 m² (55,00 meter diep en 22,00 meter breed)
- Ligging tuin
- Gelegen op het zuiden
Bergruimte
- Schuur/berging
- Vrijstaande stenen berging
- Voorzieningen
- Elektra
Parkeergelegenheid
- Soort parkeergelegenheid
- Op eigen terrein
Foto's 62
© 2001-2025 funda





























































