
Omschrijving
Welkom bij Karrespoor 16 in Wierden, waar wonen synoniem staat voor ruimte en comfort. En natuurlijk de ligging aan een rustige straat en de natuur speeltuin tegenover wat zeker een pre is.
Deze TWEE-ONDER-EEN-KAP-WONING verrast met zijn ideale indeling, duurzame voorzieningen en biedt meer dan je op het eerste gezicht zou verwachten. Dit huis geeft zijn ware omvang pas prijs zodra je binnenstapt. Durf jij het aan?
Met veel lichtinval, een interieur dat doordacht is ontworpen en perfect is afgestemd op de behoeften van een gezin, biedt deze tweekapper een warme en uitnodigende sfeer. De tuin met ruime overkapping v.v. lichtstraat, incl. schaduwscherm en glazen schuifwand, waardoor je vanaf de lente t/m de herfst kunt genieten. De kindvriendelijke woonwijk geeft jou precies datgene wat je zoekt, zoals de natuurspeeltuin op 30m afstand, vele speeltuintjes in de buurt of wandelen naar 't Lageveld (ca. 2.5 km.
Dit is niet zomaar een huis; het is een thuis die de toekomst al redelijk vooruit is met een energielabel B. Ontdek de onverwachte ruimte, het comfortabele interieur, de duurzaamheid en de heerlijke tuin die dit huis uniek maken.
Welkom thuis!
Indeling:
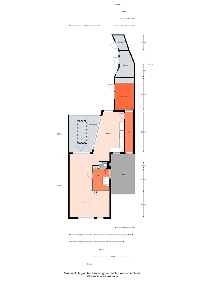
Begane grond: hal/zijentree, hangtoilet met fontein en meterkast. Ruime woonkamer met pvc visgraatvloer, wandkast, houtkachel en vloerverwarming. In de uitbouw bevindt zich de prachtige woonkeuken welke eveneens voorzien is van vloerverwarming en tuindeuren naar terras. De keuken is uitgerust met inductie kookplaat, afzuigkap, oven, koelkast en vaatwasser. Via de keuken is er een directe toegang tot de bijkeuken waar de witgoedaansluitingen zijn. Ook heeft de bijkeuken een keukenblok, een vaste kastenwand en een toegang tot de tuin. Via de keuken is er ook toegang naar de hal die een zijentree heeft.
1e verdieping: overloop, 3 royale slaapkamers, waarvan de slaapkamer op 't zuiden v.v. is van een rolluik. De badkamer is uitgerust met een wastafelmeubel, hangtoilet, douchehoek en een ligbad. Alle wanden en plafonds van de slaapkamers zijn voorzien van nieuw stucwerk.
2e verdieping: vaste trap naar zolder, overloop met berg- en cv-ruimte, 4e slaapkamer met dakkapel.
Kenmerken;
- Energielabel B.
- 11 zonnepanelen.
- Woning is in 2021 verbouwd.
- Begane grond voorzien van vloerverwarming.
- Prachtige, geheel af te sluiten terrasoverkapping met lichtstraat.
- Keuken voorzien van schuifpui met toegang tot tuin.
- Meeste stucwerk vernieuwd.
- Erker mogelijk aan voorzijde.
- Rolluiken aanwezig.
- Riant en breed oprit.
- Het buitenschilderwerk is goed onderhouden.
- Instapklare woning.
Kenmerken
Overdracht
- Laatste vraagprijs
- € 465.000 kosten koper
- Vraagprijs per m²
- € 2.870
- Status
- Verkocht
Bouw
- Soort woonhuis
- Eengezinswoning, 2-onder-1-kapwoning
- Soort bouw
- Bestaande bouw
- Bouwjaar
- 1987
- Soort dak
- Zadeldak bedekt met pannen
Oppervlakten en inhoud
- Gebruiksoppervlakten
- Wonen
- 162 m²
- Gebouwgebonden buitenruimte
- 36 m²
- Externe bergruimte
- 10 m²
- Perceel
- 274 m²
- Inhoud
- 538 m³
Indeling
- Aantal kamers
- 5 kamers (4 slaapkamers)
- Aantal badkamers
- 1 badkamer en 1 apart toilet
- Badkamervoorzieningen
- Douche, ligbad, toilet, en wastafelmeubel
- Aantal woonlagen
- 2 woonlagen en een zolder
- Voorzieningen
- Dakraam, glasvezelkabel, natuurlijke ventilatie, rolluiken, rookkanaal, en zonnepanelen
Energie
- Energielabel
- B
- Isolatie
- Volledig geïsoleerd
- Verwarming
- Cv-ketel, houtkachel en gedeeltelijke vloerverwarming
- Warm water
- Cv-ketel
- Cv-ketel
- Gas gestookt combiketel uit 2021, eigendom
Kadastrale gegevens
- WIERDEN N 1366
- Kadastrale kaart
- Oppervlakte
- 274 m²
- Eigendomssituatie
- Volle eigendom
Buitenruimte
- Tuin
- Achtertuin en voortuin
- Achtertuin
- 83 m² (15,00 meter diep en 5,50 meter breed)
- Ligging tuin
- Gelegen op het zuiden
Bergruimte
- Schuur/berging
- Aangebouwde houten berging
- Voorzieningen
- Elektra
Garage
- Soort garage
- Carport
Parkeergelegenheid
- Soort parkeergelegenheid
- Op eigen terrein
Foto's 66
© 2001-2025 funda

































































