
Omschrijving
Welkom in Diepvoorde 2912 – jouw nieuwe thuis in het hart van Wijchen!
Deze charmante tussenwoning biedt niet alleen comfort en stijl, maar ook een geweldige ligging in een rustige, kindvriendelijke buurt.
Diepvoorde is een gezellige en groene wijk in Wijchen. De wijk is ruim opgezet met veel groenvoorzieningen en speeltuinen, wat het een ideale plek maakt voor gezinnen met kinderen. Voorzieningen zoals scholen, winkels en openbaar vervoer zijn op korte afstand bereikbaar, en het centrum van Wijchen ligt op slechts enkele minuten fietsen.
Kenmerken:
Woonoppervlakte: 60 m²
Bouwjaar: 1985
Energielabel: C
Tuin op het westen
Indeling:
Begane grond:
Je komt binnen via een nette hal met modern toilet, de trapopgang en de meterkast. De lichte woonkamer is voorzien van een fraaie laminaatvloer en staat in open verbinding met de keuken aan de voorzijde van de woning. De keuken is praktisch ingericht en van alle gemakken voorzien, waaronder een oven, kookplaat, afzuigkap en voldoende kastruimte. Aan de achterzijde van de woning bevindt zich een royale raampartij met schuifpui over de volledige hoogte, die veel licht binnenlaat en toegang biedt tot de serre en de tuin. Een prachtig verlengstuk van de leefruimte.
Eerste verdieping:
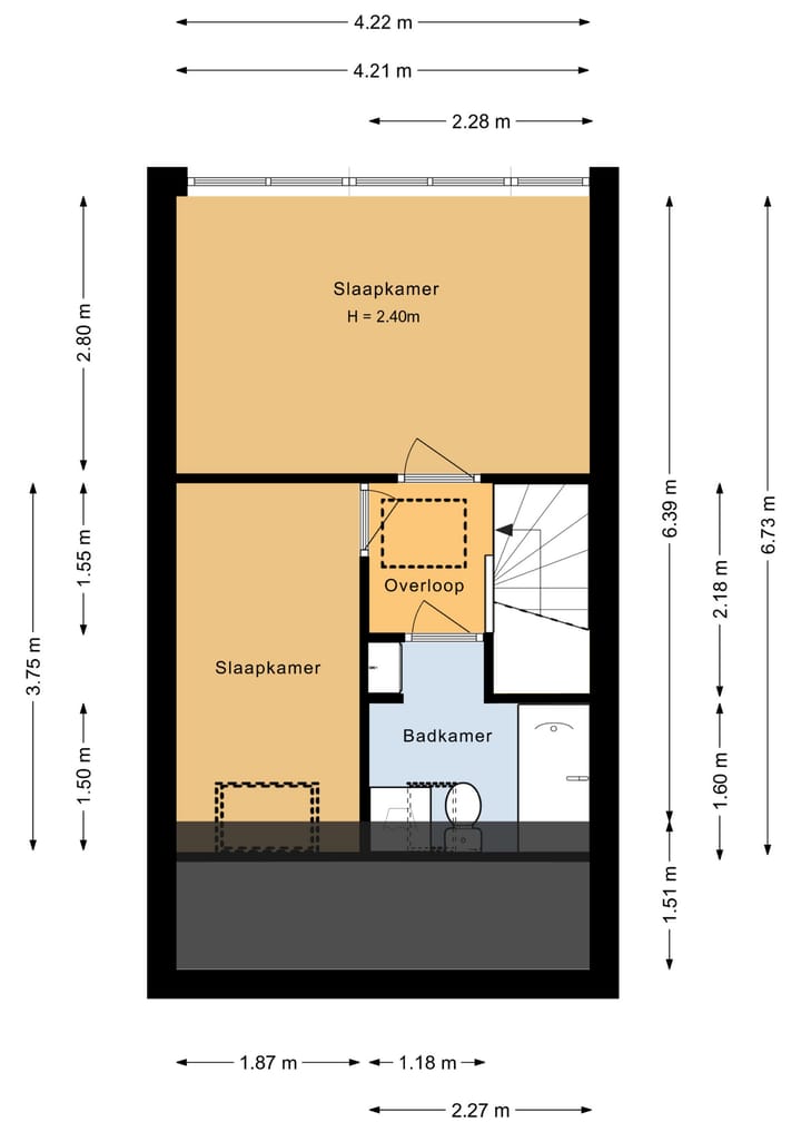
Wanneer je de trapopgang neemt, kom je terecht op de overloop waar een dakraam zorgt voor natuurlijk lichtinval. Vanaf de overloop heb je toegang tot twee slaapkamers. De grote slaapkamer ligt aan de achterzijde van de woning en geniet van een prachtige lichtinval dankzij de grote raampartij. De tweede slaapkamer, gelegen aan de voorzijde, beschikt eveneens over prettig daglicht door het dakraam.
Daarnaast bevindt zich op de overloop de badkamer, die is uitgerust met een ligbad, een toilet, een wastafel met meubel en een aansluiting voor wasapparatuur.
Vliering:
Via een vlizotrap op de overloop bereik je de vliering, die extra opbergruimte biedt.
Tuin:
De fraai aangelegde tuin op het westen is maar liefst ca. 19 meter diep. Direct aan de woning bevindt zich een sfeervolle overkapping ideaal voor een zomerse barbecue of een ontspannen avond buiten. Achterin de tuin staat een vrijstaande houten berging perfect voor het stallen van fietsen, (tuin)gereedschap of als hobbyruimte.
Op zoek naar een instapklare woning met twee slaapkamers, veel licht en een diepe, zonnige tuin in een rustige wijk? Diepvoorde 2912 heeft het allemaal. Plan snel je bezichtiging!
---
Deze informatie is door ons met de nodige zorgvuldigheid samengesteld. Onzerzijds wordt echter geen enkele aansprakelijkheid aanvaard voor enige onvolledigheid, onjuistheid of anderszins, dan wel de gevolgen daarvan. Alle opgegeven maten en oppervlakten zijn indicatief.
Toelichtingsclausule NEN2580: De Meetinstructie is gebaseerd op de NEN2580. De Meetinstructie is bedoeld om een meer eenduidige manier van meten toe te passen voor het geven van een indicatie van de gebruiksoppervlakte. De Meetinstructie sluit verschillen in meetuitkomsten niet volledig uit, door bijvoorbeeld interpretatieverschillen, afrondingen of beperkingen bij het uitvoeren van de meting.
Kenmerken
Overdracht
- Laatste vraagprijs
- € 289.000 kosten koper
- Vraagprijs per m²
- € 4.817
- Status
- Verkocht
Bouw
- Soort woonhuis
- Eengezinswoning, tussenwoning
- Soort bouw
- Bestaande bouw
- Bouwjaar
- 1985
- Soort dak
- Zadeldak bedekt met pannen
Oppervlakten en inhoud
- Gebruiksoppervlakten
- Wonen
- 60 m²
- Overige inpandige ruimte
- 7 m²
- Gebouwgebonden buitenruimte
- 11 m²
- Externe bergruimte
- 7 m²
- Perceel
- 137 m²
- Inhoud
- 281 m³
Indeling
- Aantal kamers
- 3 kamers (2 slaapkamers)
- Aantal badkamers
- 1 badkamer en 1 apart toilet
- Badkamervoorzieningen
- Douche, ligbad, toilet, wastafel, en wastafelmeubel
- Aantal woonlagen
- 2 woonlagen en een vliering
- Voorzieningen
- Dakraam, natuurlijke ventilatie, schuifpui, en TV kabel
Energie
- Energielabel
- C
- Isolatie
- Dakisolatie en HR-glas
- Verwarming
- Cv-ketel
- Warm water
- Cv-ketel
- Cv-ketel
- Remeha (gas gestookt combiketel uit 2017, eigendom)
Kadastrale gegevens
- WIJCHEN F 1582
- Kadastrale kaart
- Oppervlakte
- 137 m²
- Eigendomssituatie
- Volle eigendom
Buitenruimte
- Ligging
- Aan rustige weg en in woonwijk
- Tuin
- Achtertuin en voortuin
- Achtertuin
- 96 m² (18,96 meter diep en 5,04 meter breed)
- Ligging tuin
- Gelegen op het westen
Bergruimte
- Schuur/berging
- Vrijstaande houten berging
Parkeergelegenheid
- Soort parkeergelegenheid
- Openbaar parkeren
Foto's 41
© 2001-2025 funda








































