
Omschrijving
Instapklare én energiezuinige woning in hartje Wormer!
De vernieuwde Molenbuurt in Wormer is een mooi stukje om te wonen. De woningen zijn relatief jong, met een bouwjaar van 2014. Hierdoor beschik je over de duurzaamheid en het comfort van vandaag de dag, én woon je in een kind- en diervriendelijke woonwijk. Dat is de Jonge Wolfstraat 40!
Bij binnenkomst stap je in een ruime en lichte hal, met genoeg plek voor jassen en schoenen. Vanuit hier loop je door naar de woonkamer, waar de grote raampartijen zorgen voor veel daglicht en een open gevoel. Je kunt hier eenvoudig een gezellige zit- én eethoek creëren. Aan de voorzijde vind je de moderne open keuken, compleet met diverse inbouwapparatuur – ideaal om lekker te koken. Dankzij de vloerverwarming op de begane grond is het hier altijd behaaglijk, welk seizoen het ook is.
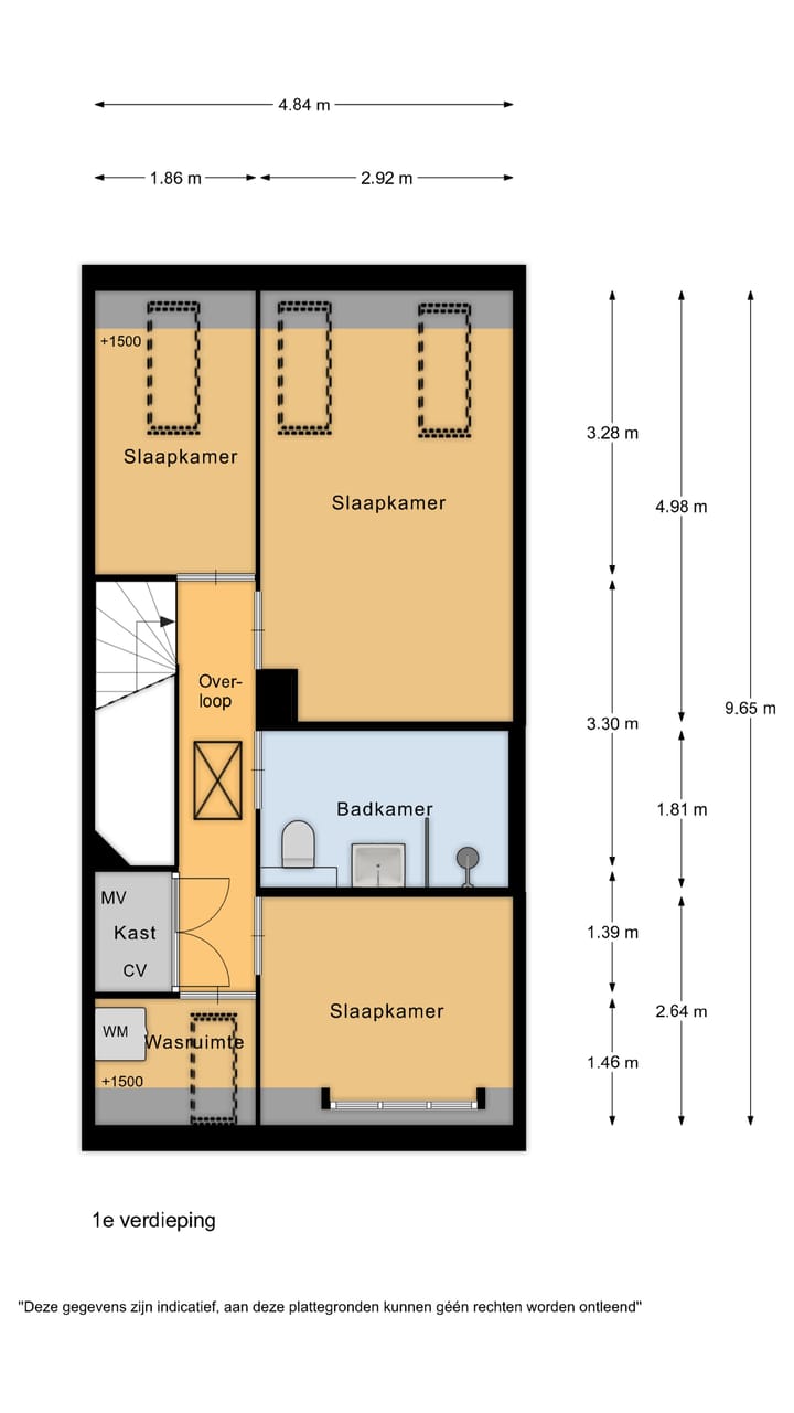
Op de eerste verdieping is de indeling praktisch en slim benut. Aan de achterzijde ligt een ruime masterbedroom, en daarnaast nog een tweede kamer die perfect dienstdoet als kinder-, werk- of logeerkamer. Aan de voorzijde vind je een derde slaapkamer én een aparte wasruimte – handig om je was en apparatuur uit het zicht te houden. De technische installaties zijn netjes weggewerkt in een aparte ruimte. Daarnaast is de woning voorzien van een warmteterugwinsysteem (WTW), zonnecollectoren en HR++ glas, wat samen met het A+ energielabel zorgt voor een prettig binnenklimaat én lage energielasten. In het midden van de verdieping ligt de moderne badkamer met inloopdouche, wastafel en een tweede toilet. Ook hier geniet je van vloerverwarming voor extra comfort.
Heb je behoefte aan extra opbergruimte? Via een vlizotrap bereik je de ruime vliering – ideaal voor koffers, seizoensspullen en alles wat je niet dagelijks nodig hebt.
En dan de achtertuin: een heerlijke plek om te relaxen, te barbecueën of gewoon te genieten van het buitenleven. Dankzij de gunstige ligging heb je hier volop zon én privacy. Extra fijn: er is ook een eigen berging en een achterom aanwezig.
Ben je enthousiast geworden? Neem dan snel contact met ons op voor het maken van een afspraak. We laten je deze fijne woning graag zien tijdens een persoonlijke bezichtiging!
- Bouwjaar: 2014
- Perceeloppervlakte: 100 m²
- Woonoppervlakte: 90 m²
- Inhoud: 343 m³
- Energielabel: A +
Ligging
Wormer, een van de oudste plaatsen in de Zaanstreek, is een levendig dorp met een kind- en diervriendelijk karakter. Het centrum, met het winkelhart en de gezellige vrijdagmarkt vol verse producten, is gemakkelijk te voet of per fiets bereikbaar.
Voor sportliefhebbers en natuurliefhebbers biedt Wormer een rijkdom aan activiteiten. De natuurgebieden zoals het Wormer- en Jisperveld en het Zwet zijn perfect voor wie houdt van urenlang genieten in de natuur, of je nu wilt wandelen, zwemmen, varen of fietsen. De omliggende natuurgebieden bieden een heerlijke ontsnapping aan de drukte van alledag en maken Wormer tot een bijzonder aantrekkelijke woonomgeving.
De bereikbaarheid vanuit Wormer is uitstekend met de rijkswegen A7, A8 en A9 binnen handbereik. Station Wormerveer bevindt zich op slechts 7 minuten fietsen via de Zaanbrug, waardoor je in ongeveer 20 minuten op Amsterdam-Centraal kunt zijn. Wormer combineert zo de rust van een dorp met de dynamiek van de stad binnen handbereik.
Bijzonderheden:
- Energiezuinige woning met A+ label, HR++ glas, zonnecollectoren en WTW-installatie
- Vloerverwarming op de begane grond én eerste verdieping
- Drie slaapkamers en een aparte wasruimte
- Ruime vliering, ideaal als extra opbergruimte
- Open keuken met moderne inbouwapparatuur
- Veel natuurlijk licht door grote raampartijen
- Glasvezelaansluiting aanwezig – razendsnel internet voor thuiswerken, streamen of gamen
- Gelegen in een kindvriendelijke en rustige buurt, met voorzieningen op korte afstand
Interesse in dit huis? Schakel direct jouw eigen NVM-aankoopmakelaar in. Jouw NVM-aankoopmakelaar komt op voor jouw belang en bespaart je tijd, geld en zorgen. Adressen van collega NVM-aankoopmakelaars vind je op Funda.
Kenmerken
Overdracht
- Laatste vraagprijs
- € 425.000 kosten koper
- Vraagprijs per m²
- € 4.722
- Status
- Verkocht
Bouw
- Soort woonhuis
- Eengezinswoning, tussenwoning
- Soort bouw
- Bestaande bouw
- Bouwjaar
- 2014
- Soort dak
- Zadeldak bedekt met pannen
Oppervlakten en inhoud
- Gebruiksoppervlakten
- Wonen
- 90 m²
- Externe bergruimte
- 5 m²
- Perceel
- 100 m²
- Inhoud
- 343 m³
Indeling
- Aantal kamers
- 4 kamers (3 slaapkamers)
- Aantal badkamers
- 1 badkamer en 1 apart toilet
- Badkamervoorzieningen
- Douche, inloopdouche, toilet, wastafel, en wastafelmeubel
- Aantal woonlagen
- 2 woonlagen en een vliering
- Voorzieningen
- Dakraam, glasvezelkabel, mechanische ventilatie, TV kabel, en zonnecollectoren
Energie
- Energielabel
- A+
- Isolatie
- HR-glas en volledig geïsoleerd
- Verwarming
- Cv-ketel, gehele vloerverwarming en warmte terugwininstallatie
- Warm water
- Cv-ketel
- Cv-ketel
- Brink Kombi Kompakt HRE 14/18 (gas gestookt combiketel uit 2014, eigendom)
Kadastrale gegevens
- WORMER F 5790
- Kadastrale kaart
- Oppervlakte
- 100 m²
- Eigendomssituatie
- Volle eigendom
Buitenruimte
- Ligging
- Aan rustige weg en in woonwijk
- Tuin
- Achtertuin en voortuin
- Achtertuin
- 32 m² (6,22 meter diep en 5,10 meter breed)
- Ligging tuin
- Gelegen op het zuidwesten bereikbaar via achterom
Bergruimte
- Schuur/berging
- Vrijstaande houten berging
Parkeergelegenheid
- Soort parkeergelegenheid
- Openbaar parkeren
Foto's 38
© 2001-2025 funda





































