
Omschrijving
Is deze vrijstaande jaren '30 woning met zonnige tuin op het zuiden iets voor jou?
Bij aankomst valt direct de aandacht op de uitstekende staat van onderhoud, waardoor je zonder gedoe kunt intrekken en genieten van je nieuwe woning. De woning combineert moderne voorzieningen met subtiele jaren '30 details voor een unieke woonervaring.
Bij binnenkomst betreed je eerst de hal, waar je een vleugje van de karakteristieke details kunt opmerken, zoals het glas-in-lood. Hier bevindt zich ook het toilet. Vervolgens kom je in de ruime woonkamer, die dankzij de grote erker met grote raampartijen veel natuurlijk licht binnenlaat. Deze ruimte is perfect voor het creëren van een gezellige zithoek en biedt voldoende ruimte voor een ruime eettafel. De woonkamer loopt naadloos over in de moderne open keuken, die is uitgerust met diverse inbouwapparatuur. Deze keuken biedt alle gemakken en ruimte die je nodig hebt voor het bereiden van heerlijke maaltijden, en maakt het dagelijkse leven net wat comfortabeler.
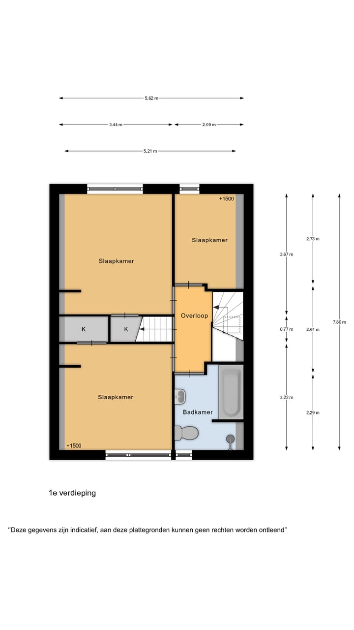
Op de eerste verdieping bevinden zich drie slaapkamers: één aan de voorzijde en twee aan de achterzijde. Twee kamers bieden voldoende ruimte voor een tweepersoonsbed en persoonlijke spullen en zijn daarnaast voorzien van een ruime inbouwkast. De derde kamer is momenteel ingericht als kledingruimte, maar kan dienen als slaapkamer of thuiswerkkamer. De badkamer is praktisch ingericht met een inloopdouche, een ligbad, een wastafel en een toilet.
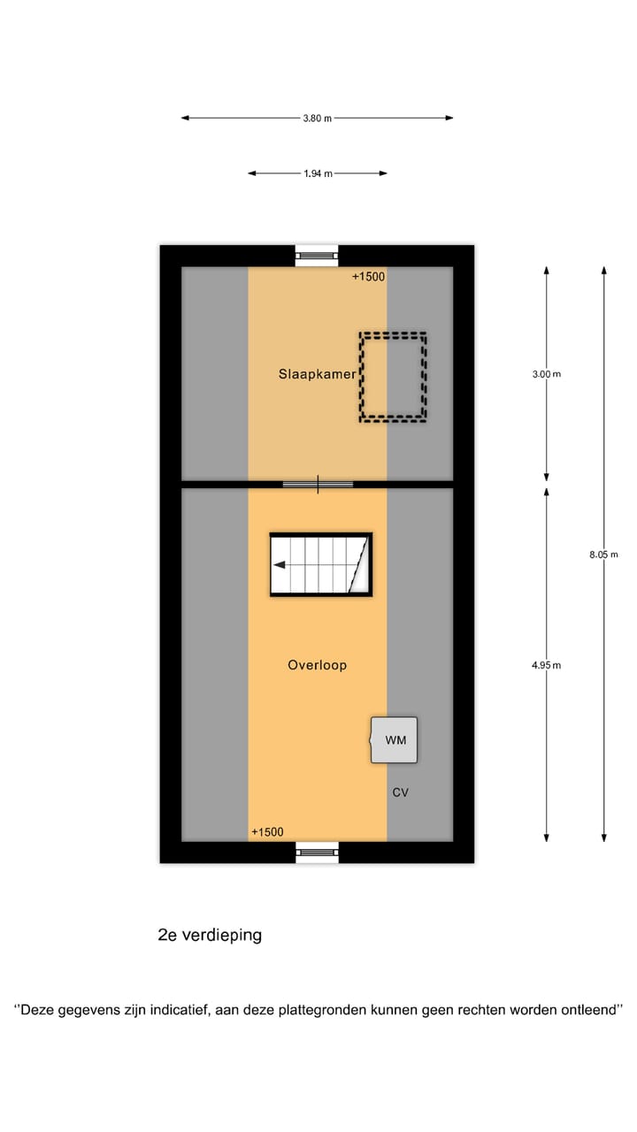
De tweede verdieping herbergt een ruime open zolderkamer, vol potentieel en mogelijkheden. De ruimte wordt nu gebruikt als wasruimte en bergruimte voor seizoensgebonden spullen, maar kan worden omgeturnd tot extra leefruimte. Denk aan een inspirerende hobbyruimte, een lichte en rustige thuiswerkplek, of zelfs een extra slaapkamer. Laat je fantasie de vrije loop en creëer hier jouw ideale ruimte!
Terug op de begane grond stap je door de openslaande tuindeuren de royale achtertuin in. De tuin ligt op het zuiden, wat zorgt voor een gunstige zonligging, zodat je volop van de zon kunt genieten. Daarnaast hangt er een groot zonnescherm, perfect voor het creëren van een mooie schaduwplek op warme dagen. Bovendien biedt de tuin veel privacy door de minimale inkijk van omliggende woningen. Je kunt verschillende zithoeken creëren en beschikt over een vrijstaande houten berging met aansluitingen voor een wasmachine en eventueel een droger, plus een eigen achterom.
Zie je jezelf hier al helemaal wonen? Neem dan snel contact met ons op voor het maken van een afspraak. We laten je de woning graag zien tijdens een persoonlijke bezichtiging! Geniet van je nieuwe woning!
- Bouwjaar: 1934
- Perceeloppervlakte: 169m²
- Woonoppervlakte: 102 m²
- Inhoud: 388 m³
- Energielabel: G
Ligging:
Wormerveer is een fantastische plek om te wonen, met tal van voorzieningen direct binnen handbereik! In de buurt vind je het Wilhelminapark, de levendige Zaanbocht en het gezellige Marktplein, waar je kunt genieten van een breed scala aan winkels, sfeervolle horecagelegenheden en diverse supermarkten. Op woensdagmiddag is er zelfs een bruisende markt met allerlei verse producten. Alles wat je nodig hebt, is gemakkelijk te bereiken, of je nu te voet of met de fiets gaat!
Daarnaast heeft Wormerveer een zeer gunstige ligging ten opzichte van Amsterdam, de IJmond, Alkmaar en Purmerend, waardoor het een strategische keuze is voor woon-werkverkeer. De uitstekende verbindingen via de snelwegen A7, A8 en A10 maken reizen eenvoudig en snel. Het NS-station Wormerveer ligt op slechts een paar minuten lopen, waardoor je binnen 15 minuten in hartje Amsterdam bent. Kortom, Wormerveer biedt het beste van twee werelden: een gezellige lokale omgeving en snelle toegang tot de grote steden!
Bijzonderheden:
- Meetrapport zakkingsrapport van de gemeente beschikbaar; totale zakking sinds 2014 is minder dan 1 mm;
- Funderingsonderzoek aanwezig uit 2009, waarin de woning is geclassificeerd in kwaliteitsklasse 1, met een
funderingsstatus die als redelijk tot goed wordt beoordeeld;
- Het werkelijke energieverbruik in 2024 bedroeg 1.100 M3 gas (€1.600,-) en 1.400 KWH energie (€230,-)
- Moderne meterkast met glasvezelaansluiting
- Zonnige tuin op het zuiden, uitgerust met een groot zonnescherm
- Vrijstaande berging in de achtertuin, voorzien van elektra, water en een wasmachine-aansluiting
- Gelegen in een rustige, kind- en diervriendelijke straat/wijk
- Centrale ligging, nabij winkels en openbaar vervoer
- Aanvaarding in overleg mogelijk
Interesse in dit huis? Schakel direct jouw eigen NVM-aankoopmakelaar in. Jouw NVM-aankoopmakelaar komt op voor jouw belang en bespaart je tijd, geld en zorgen. Adressen van collega NVM-aankoopmakelaars vind je op Funda.
Kenmerken
Overdracht
- Laatste vraagprijs
- € 450.000 kosten koper
- Vraagprijs per m²
- € 4.412
- Status
- Verkocht
Bouw
- Soort woonhuis
- Eengezinswoning, vrijstaande woning
- Soort bouw
- Bestaande bouw
- Bouwjaar
- 1934
- Soort dak
- Zadeldak bedekt met pannen
Oppervlakten en inhoud
- Gebruiksoppervlakten
- Wonen
- 102 m²
- Externe bergruimte
- 9 m²
- Perceel
- 169 m²
- Inhoud
- 388 m³
Indeling
- Aantal kamers
- 6 kamers (4 slaapkamers)
- Aantal badkamers
- 1 badkamer
- Badkamervoorzieningen
- Inloopdouche, ligbad, toilet, en wastafel
- Aantal woonlagen
- 3 woonlagen
- Voorzieningen
- Buitenzonwering, glasvezelkabel, en TV kabel
Energie
- Energielabel
- G
- Isolatie
- Dubbel glas
- Verwarming
- Cv-ketel
- Warm water
- Cv-ketel
- Cv-ketel
- Nefit Proline Hrc 24/CW4 (gas gestookt combiketel uit 2013, eigendom)
Kadastrale gegevens
- WORMERVEER B 4752
- Kadastrale kaart
- Oppervlakte
- 169 m²
- Eigendomssituatie
- Volle eigendom
Buitenruimte
- Ligging
- Aan rustige weg en in woonwijk
- Tuin
- Achtertuin, voortuin en zijtuin
- Achtertuin
- 94 m² (13,00 meter diep en 7,20 meter breed)
- Ligging tuin
- Gelegen op het zuiden bereikbaar via achterom
Bergruimte
- Schuur/berging
- Vrijstaande houten berging
- Voorzieningen
- Elektra en stromend water
Parkeergelegenheid
- Soort parkeergelegenheid
- Openbaar parkeren
Foto's 42
© 2001-2025 funda









































