
Omschrijving
Schaapsdrift 29 te Zevenaar
Riant uitgebouwde hoekwoning met voldoende ruimte voor het hele gezin aan de rand van de kindvriendelijke wijk Schaapsdrift. Met veel licht door de grote raampartijen en een woonoppervlakte van 136 m² zijn er in deze ruime woonkamer veel mogelijkheden qua gebruik en indeling.
Aan de voorzijde bevindt zich een hofje met voldoende parkeergelegenheden en een speeltuintje. Het gezellige stadscentrum van Zevenaar is op slechts enkele fietsminuten te bereiken. Hier vind je een tal aan voorzieningen. Denk aan supermarkten, detailhandel en ook horeca met zomers volle terrassen. Ook heeft Zevenaar een rijk verenigingsleven, een bioscoop en een theater. Ontsluitingswegen A12. A18 en A3 (Duitsland) liggen op zeer korte afstand. Kortom, de ideale woning op een ideale locatie.
Indeling:
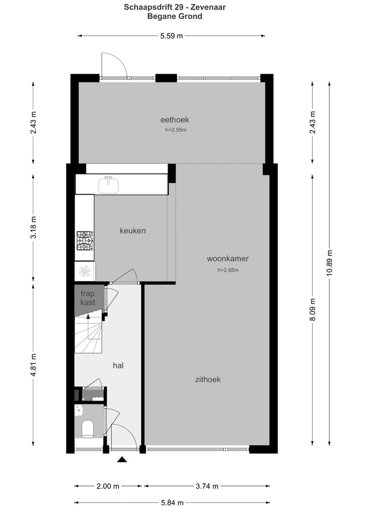
Begane grond:
Entree, hal, meterkast, toilet (inclusief fonteintje), trapopgang met trapkast en toegang tot de woonkamer/keuken. Moderne open keuken die van alle gemakken is voorzien. Denk aan een vaatwasser, koelkast, combi oven/magnetron, 4-pits gasfornuis én een boiler. Doordat de woning in 2002 is uitgebouwd, is er een fijne extra leefruimte gecreëerd waar de mogelijkheid is ontstaan voor het plaatsen van een eethoek én bijvoorbeeld een hobby- of speelruimte voor de kinderen. De opties zijn eindeloos!
Aan de voorzijde van de woning bevindt zich de zithoek welke door de raampartij een fantastische lichtinval heeft. De gehele begane grond beschikt tevens over een antracietkleurige plavuizen en muren voorzien van spachtelputz.
Eerste verdieping:
3 ruime slaapkamers allen voorzien van rolluiken. De vloeren beschikken over een nette tapijtvloer die tevens doorgelegd is op beide trappen. Nette badkamer met douche/bad combinatie, tweede toilet en wastafel met meubel.
Tweede verdieping:
Bereikbaar via een vaste trap, overloop met wasmachine- en drogeraansluiting, cv-ketel en een dakraam.
Tevens is hier een royale 4e slaapkamer met groot dakraam.
Tuin:
Onderhoudsvriendelijke achtertuin gelegen op het noordwesten. Er is een zonnescherm aanwezig en een stenen, vrijstaande berging voor het stallen van fietsen. Deze is eenvoudig bereikbaar middels een achterom.
Kenmerken:
- Wonen in een kindvriendelijke, ruim opgezette wijk met diverse hofjes
- Grotendeels voorzien van kunststof kozijnen met dubbel glas en rolluiken
- Dakisolatie, muurisolatie en vloerisolatie
- Energielabel B (geldigheid tot 2027)
- Cv-ketel Atag (2018)
- Woonoppervlakte 136 m²
- Externe bergruimte 9 m²
- Inhoud woning 473 m³
- Perceeloppervlakte 152 m²
Vraagprijs € 375.000,- k.k.
Aanvaarding in overleg
Kenmerken
Overdracht
- Laatste vraagprijs
- € 375.000 kosten koper
- Vraagprijs per m²
- € 2.757
- Status
- Verkocht
Bouw
- Soort woonhuis
- Eengezinswoning, eindwoning
- Soort bouw
- Bestaande bouw
- Bouwjaar
- 1972
- Specifiek
- Gedeeltelijk gestoffeerd
- Soort dak
- Zadeldak bedekt met bitumineuze dakbedekking en pannen
Oppervlakten en inhoud
- Gebruiksoppervlakten
- Wonen
- 136 m²
- Externe bergruimte
- 9 m²
- Perceel
- 202 m²
- Inhoud
- 473 m³
Indeling
- Aantal kamers
- 6 kamers (4 slaapkamers)
- Aantal badkamers
- 1 badkamer en 1 apart toilet
- Badkamervoorzieningen
- Douche, ligbad, toilet, en wastafel
- Aantal woonlagen
- 3 woonlagen
- Voorzieningen
- Buitenzonwering, dakraam, mechanische ventilatie, natuurlijke ventilatie, rolluiken, en TV kabel
Energie
- Energielabel
- B
- Isolatie
- Dakisolatie, dubbel glas, muurisolatie en vloerisolatie
- Verwarming
- Cv-ketel
- Warm water
- Cv-ketel
- Cv-ketel
- Atag (gas gestookt combiketel uit 2018, lease)
Kadastrale gegevens
- OUD-ZEVENAAR C 2003
- Kadastrale kaart
- Oppervlakte
- 152 m²
- Eigendomssituatie
- Volle eigendom
- OUD ZEVENAAR C 2010
- Kadastrale kaart
- Oppervlakte
- 50 m² (deelperceel)
- Eigendomssituatie
- Volle eigendom
Buitenruimte
- Ligging
- Aan park, aan rustige weg, beschutte ligging, in woonwijk en vrij uitzicht
- Tuin
- Achtertuin en voortuin
- Achtertuin
- 26 m² (42,00 meter diep en 61,00 meter breed)
- Ligging tuin
- Gelegen op het zuidwesten bereikbaar via achterom
Bergruimte
- Schuur/berging
- Vrijstaande stenen berging
- Voorzieningen
- Elektra
Parkeergelegenheid
- Soort parkeergelegenheid
- Openbaar parkeren
Foto's 51
© 2001-2025 funda


















































