
Omschrijving
Modern, licht, praktisch ingedeeld en zo te betrekken 3-kamer appartement in hartje centrum Zoetermeer! Anders dan de andere appartementen in dit complex, bevindt zich beneden een ruime slaapkamer en moderne badkamer met inloopdouche. Boven een extra ruime woonkamer met prachtige open keuken met spoeleiland én nog een slaap/werkkamer! Afgetopt met een heerlijk terras op het zonnige zuiden, vloerverwarming in alle vertrekken en een airco voor de nodige verkoeling. Dit appartement is van alle gemakken voorzien.
PLUSPUNTEN
+ Instapklaar
+ Logische en praktische indeling
+ 2 slaapkamers
+ Luxe keuken en moderne badkamer
+ Terras op het zonnige zuiden
+ Vloerverwarming & airconditioning
+ Centraal gelegen in het centrum
+ Aluminium kozijnen met HR++ glas
+ Gunstig energielabel A
INDELING
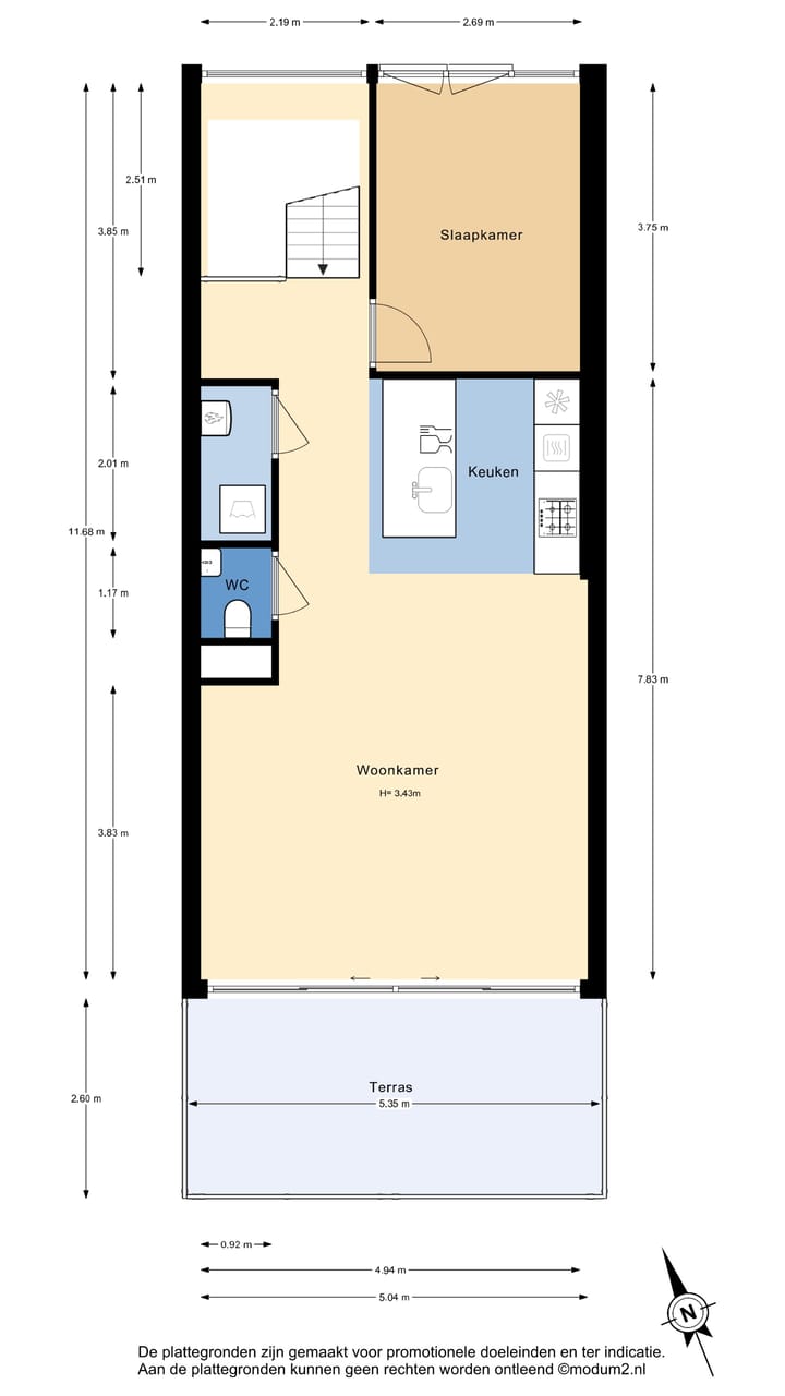
Op de begane grond bevindt zich de centrale hal met bellentableau en brievenbussen en een afgesloten tussenentree naar de lift. Op de 2e verdieping van het complex is de entree van het appartement. Ruime hal met meterkast, garderobe, trapopgang naar bovenste verdieping, toegang tot de riante hoofdslaapkamer en de moderne badkamer. De badkamer is neutraal betegeld en voorzien van inloopdouche, wastafel met meubel, hangend toilet en automatische mechanische ventilatie.
Via de trap naar boven kom je uit bij de tweede slaapkamer, aan de voorzijde van het appartement gelegen. Deze kamer kan ook ideaal als werkkamer ingezet worden en heeft een frans balkon met draai/kiepdeur, uitkijkend op het gezellige Stadhuisplein van Stadshart Zoetermeer. Op deze verdieping bevindt zich een apart toilet (hangend met fonteintje) en een kast voor de CV-ketel (Intergas 2019, eigendom) en aansluiting voor de wasmachine en droger.
In het midden van het appartement ligt de luxe keuken met spoeleiland, voorzien van verschillende (inbouw)apparatuur: koelkast, vriezer, vaatwasmachine, inductiekookplaat, afzuigkap, combi-oven-magnetron en Quooker. Vanuit de keuken loop je verder de ruime, lichte woonkamer in. Openslaande deuren geven toegang tot het op het zonnige zuiden gelegen terras, wat vrij uniek is zo midden in de stad! De aanwezige airconditioning zorgt voor de nodige verkoeling.
Het gehele appartement is afgewerkt met een doorgelegde laminaatvloer, vliesbehang op de wanden en glad gestuukte plafonds. Alle vertrekken zijn voorzien van vloerverwarming en hebben een eigen thermostaat.
Het complex heeft een gezamenlijke fietsenberging en er is parkeergelegenheid met parkeervergunning.
OMGEVING
Centraal gelegen in het centrum van Zoetermeer, met alle voorzieningen in de directe omgeving. Winkels, supermarkten, horecagelegenheden en openbaar vervoer liggen op steenworp afstand. Ga uitgebreid shoppen in het Stadshart. Wandel via de Dobbe plas de gezellige Dorpsstraat of het Wilhelminapark in. Ontspan na een lange werkdag op één van de terrassen op het gezellige Stadhuisplein.
FEITEN EN BIJZONDERHEDEN
- Woonoppervlak 84m2 (gemeten conform NEN2580 meetinstructie)
- Actieve VvE, bijdrage € 160,- per maand
- Parkeervergunning € 53,- per jaar
- Bij de bouw in 2019 is direct een logische indeling gecreëerd
- Voorkeur datum oplevering: in overleg
BIJLAGEN
Geïnteresseerden krijgen (voor een eventuele bezichtiging) toegang tot de digitale omgeving van Move waarin de bij de woning behorende bijlagen zijn in te zien.
- Kadastrale kaart
- Vragenlijst B
- Lijst van zaken
- VvE stukken
- Energielabel
KOOPAKTE
Na overeenstemming wordt de koopakte opgesteld. Hierin worden o.a. de volgende zaken opgenomen:
- Notariskeuze aan koper
- Datum van oplevering
ALGEMEEN
De informatie is met zorg samengesteld, aan de juistheid kunnen echter geen rechten worden ontleend. De algemene verkoopvoorwaarden staan vermeld op onze website, wij werken conform de Algemene Consumentenvoorwaarden van Vastgoed Nederland (voorheen VBO Makelaar). Heeft u vragen over dit object of over onze dienstverlening neemt u dan gerust contact met ons op.
Kenmerken
Overdracht
- Laatste vraagprijs
- € 400.000 kosten koper
- Vraagprijs per m²
- € 4.762
- Status
- Verkocht
- Bijdrage VvE
- € 160,00 per maand
Bouw
- Soort appartement
- Maisonnette (appartement)
- Soort bouw
- Bestaande bouw
- Bouwjaar
- 2019
- Soort dak
- Plat dak bedekt met bitumineuze dakbedekking
Oppervlakten en inhoud
- Gebruiksoppervlakten
- Wonen
- 84 m²
- Gebouwgebonden buitenruimte
- 14 m²
- Inhoud
- 307 m³
Indeling
- Aantal kamers
- 3 kamers (2 slaapkamers)
- Aantal badkamers
- 1 badkamer en 1 apart toilet
- Badkamervoorzieningen
- Inloopdouche, toilet, wastafel, en wastafelmeubel
- Aantal woonlagen
- 2 woonlagen
- Voorzieningen
- Airconditioning, glasvezelkabel, lift, en mechanische ventilatie
- Gelegen op
- 2e woonlaag
Energie
- Energielabel
- A
- Isolatie
- HR-glas en volledig geïsoleerd
- Verwarming
- Cv-ketel en gehele vloerverwarming
- Warm water
- Cv-ketel
- Cv-ketel
- Intergas Kombi Kompakt HRE (gas gestookt combiketel uit 2019, eigendom)
Kadastrale gegevens
- ZOETERMEER C 5742
- Kadastrale kaart
- Eigendomssituatie
- Volle eigendom
Buitenruimte
- Ligging
- In centrum en in woonwijk
- Tuin
- Zonneterras
- Zonneterras
- 14 m² (2,60 meter diep en 5,35 meter breed)
- Ligging tuin
- Gelegen op het zuiden
Parkeergelegenheid
- Soort parkeergelegenheid
- Parkeervergunningen
VvE checklist
- Inschrijving KvK
- Ja
- Jaarlijkse vergadering
- Ja
- Periodieke bijdrage
- Ja (€ 160,00 per maand)
- Reservefonds aanwezig
- Ja
- Onderhoudsplan
- Ja
- Opstalverzekering
- Ja
Foto's 46
© 2001-2025 funda













































