
Omschrijving
RUIME TUSSENWONING - VIER SLAAPKAMERS - TWEE BADKAMERS - EEN OPEN HAARD - SCHUIFPUI - TUIN OP HET ZUIDOOSTEN - ACHTEROM - BIJKEUKEN - WONING MET VEEL POTENTIE!
Op een superleuke en op rustige locatie gelegen ruime woning, grenzend aan het groen, met twee moderne badkamers en een moderne keuken. Het fijne aan deze woning is dat er veel ruimte in de woning aanwezig is en dit ook zo aanvoelt! Dit komt doordat er dankzij de grote ramen veel licht is in alle ruimten. Deze woning is zeer geschikt wanneer je op zoek bent naar een ruime gezinswoning met voor- en achtertuin. De woning is ook een uitstekende keuze wanneer je als starter(s) op zoek bent naar een plek die toekomstbestendig is!
OMGEVING
Hier woon je in een rustige groene wijk op slechts 15 minuten rijden van de stad Groningen en op fietsafstand van het centrum van Zuidhorn, waar alle voorzieningen aanwezig zijn. Plan een bezichtiging met onze makelaar in, om de Pieter Bindervoetlaan 28 van binnen te bekijken.
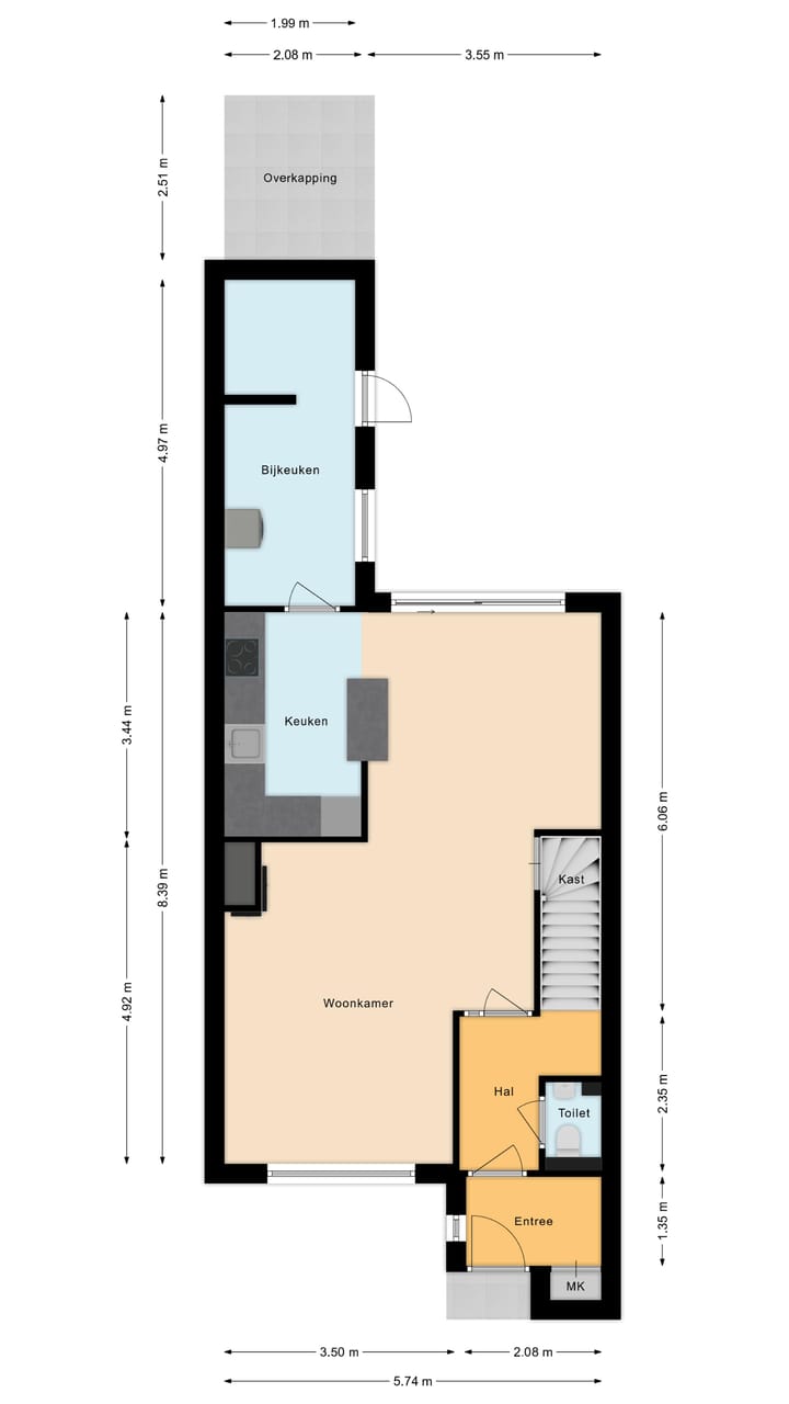
INDELING
Begane grond:
Royale entree/hal met tochtportaal meterkast met diverse groepen en glasvezel. Toilet met modern wandcloset met fonteintje. Ruime en speelse Z-vormige woonkamer met open haard en trapkast. Schuifpui naar het terras en de tuin op het zuidoosten. Half open moderne keuken met barretje. De keuken is voorzien van diverse apparatuur waaronder een inductiekookplaat en vaatwasser. Tevens voldoende elektra aansluitpunten te vinden! Doorgang naar de berging/bijkeuken met de witgoed-aansluitingen en deur naar de tuin.
Eerste verdieping:
Drie slaapkamers, keurig nette betegelde badkamer met wandcloset, bad en dubbele vaste wastafel.
Tweede verdieping:
Via een vaste trap te bereiken zolderverdieping met overloop, technische ruimte met de CV installatie (Kombi Intergas 2021), ruime 4e slaapkamer, tweede badkamer met inloopdouche, handdoek radiator en wastafel. Daarnaast is er op deze verdieping volop bergruimte aanwezig.
De tuin:
De ligging van de royale tuin is op het zuidoosten en grenst aan de achterzijde aan een groenstrook met achterom.
De tuin is bereikbaar vanaf de schuifpui, achterdeur of achterom.
BIJZONDERHEDEN
- Bij deze woning is een projectnotaris actief
- Niet zelfbewoningsclausule van toepassing
- Perceel moet nog kadastraal worden ingemeten. (Ca. 215 m²)
- De woning is per direct beschikbaar
- CV uit 2021
- Glazvezel aansluiting aanwezig in de meterkast
- De keuken, het toilet op de begane grond en beide badkamers zijn in de afgelopen jaren vernieuwd!
Virtueel is de woning al te bezichtigen!
Deze woning heeft een eigen website met onder andere een virtuele tour. Klik rechts op 'Download Brochure' en ontdek alles over de woning en de omgeving!
Toelichting meting gebruiksoppervlakte
De woning is gemeten op basis van de Branche Brede Meetinstructie (BBMI). Deze meetinstructie is bedoeld om een meer eenduidige manier van meten toe te passen voor het geven van een indicatie van de gebruiksoppervlakte. De Meetinstructie sluit verschillen in meetuitkomsten niet volledig uit, door bijvoorbeeld interpretatieverschillen, afrondingen of beperkingen bij het uitvoeren van de meting. Het vermelde aantal m2 en m3 dient daarom nadrukkelijk als indicatief gelezen te worden.
Kenmerken
Overdracht
- Laatste vraagprijs
- € 325.000 kosten koper
- Vraagprijs per m²
- € 2.338
- Status
- Verkocht
Bouw
- Soort woonhuis
- Eengezinswoning, tussenwoning
- Soort bouw
- Bestaande bouw
- Bouwjaar
- 1984
- Soort dak
- Zadeldak bedekt met pannen
Oppervlakten en inhoud
- Gebruiksoppervlakten
- Wonen
- 139 m²
- Gebouwgebonden buitenruimte
- 6 m²
- Perceel
- 215 m²
- Inhoud
- 488 m³
Indeling
- Aantal kamers
- 5 kamers (4 slaapkamers)
- Aantal badkamers
- 2 badkamers en 1 apart toilet
- Badkamervoorzieningen
- 2 douches, dubbele wastafel, ligbad, toilet, en wastafel
- Aantal woonlagen
- 3 woonlagen
- Voorzieningen
- Dakraam, glasvezelkabel, mechanische ventilatie, natuurlijke ventilatie, rookkanaal, schuifpui, en TV kabel
Energie
- Energielabel
- C
- Isolatie
- Dubbel glas, muurisolatie en vloerisolatie
- Verwarming
- Cv-ketel
- Warm water
- Cv-ketel
- Cv-ketel
- Intergas (gas gestookt combiketel uit 2021, eigendom)
Kadastrale gegevens
- ZUIDHORN F 3554
- Kadastrale kaart
- Oppervlakte
- 215 m² (deelperceel)
- Eigendomssituatie
- Volle eigendom
Buitenruimte
- Ligging
- In woonwijk
- Tuin
- Achtertuin en voortuin
- Achtertuin
- 0,17 meter diep en 0,06 meter breed
- Ligging tuin
- Gelegen op het zuidoosten bereikbaar via achterom
Bergruimte
- Schuur/berging
- Aangebouwde stenen berging
- Voorzieningen
- Elektra en stromend water
- Isolatie
- Geen isolatie
Parkeergelegenheid
- Soort parkeergelegenheid
- Openbaar parkeren
Foto's 54
© 2001-2025 funda





















































