Dit huis op Funda: https://www.funda.nl/detail/koop/verkocht/zwolle/huis-gemaalpad-3/43803326/

Omschrijving
Op een populair deel van Stadshagen is dit half vrijstaande woonhuis gelegen. Het object is deels gelegen aan een autovrij pad en aan de achterzijde gelegen aan rustig straatje. Op een steenworp afstand is het mooie royale winkelcentrum gelegen alsmede het park, welke is gelegen tussen het winkelcentrum en de woning. Kenmerkend voor de buurt zijn verschillende bouwstijlen van woningen.
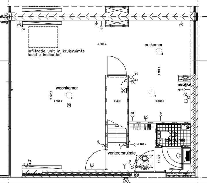
Indeling: entree, hal, trapopgang, toilet met fonteintje, een tuingerichte woonkamer van ca. 9 meter breed met over de volledige breedte van de woning raampartijen met een schuifpui naar de tuin. De luxe keuken is in een hoekopstelling geplaatst en voorzien van inbouwapparatuur te weten: gaskookplaat, vaatwasser, koelkast, combimagnetron en RVS afzuigschouw. De tuin is gelegen op het Zuid Westen en heeft een berging en achterom.
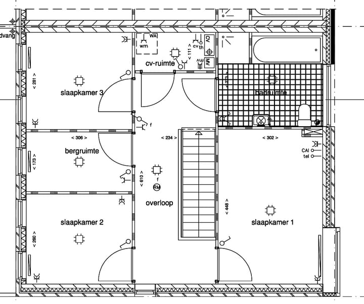
Verdieping: royale overloop deze biedt u toegang tot maar liefst 4 slaapkamers. De ruime ouderslaapkamer is aan de voorzijde van de woning gelegen, drie slaapkamers zijn aan de achterzijde gesitueerd. Luxe volledig betegelde badkamer is uitgerust met aparte douchecabine, ligbad, 2e toilet en wastafel. Aparte stookruimte waar de cv opstelling is geplaatst alsmede de aansluiting voor de wasmachine.
Algemeen:
Half vrijstaand woonhuis
Gelegen in Stadshagen
Bouwjaar 2005
Volledig geïsoleerd
Woonoppervlakte c.a. 129 m2
Tuin is gelegen op het Zuid Westen
Woonkamer van ca. 50 m2
-Projectnotaris Het Notarieel te Zwolle
-Anti-speculatiebeding gedurende twee jaar
-Koper is gedurende twee jaar verplicht het gekochte uitsluitend te gebruiken om zelf (met zijn eventuele gezinsleden) te bewonen en het gekochte niet aan derden te verhuren of op andere wijze in gebruik te geven;
Aanvaarding: in overleg ( 12 weken )
Kenmerken
Overdracht
- Laatste vraagprijs
- € 480.000 kosten koper
- Vraagprijs per m²
- € 3.721
- Status
- Verkocht
Bouw
- Soort woonhuis
- Eengezinswoning, 2-onder-1-kapwoning
- Soort bouw
- Bestaande bouw
- Bouwjaar
- 2005
- Soort dak
- Plat dak bedekt met bitumineuze dakbedekking
Oppervlakten en inhoud
- Gebruiksoppervlakten
- Wonen
- 129 m²
- Overige inpandige ruimte
- 3 m²
- Gebouwgebonden buitenruimte
- 14 m²
- Externe bergruimte
- 8 m²
- Perceel
- 142 m²
- Inhoud
- 440 m³
Indeling
- Aantal kamers
- 5 kamers (5 slaapkamers)
- Aantal badkamers
- 1 badkamer en 1 apart toilet
- Badkamervoorzieningen
- Douche, ligbad, toilet, en wastafelmeubel
- Aantal woonlagen
- 2 woonlagen
Energie
- Energielabel
- Isolatie
- Volledig geïsoleerd
- Verwarming
- Cv-ketel en moederhaard
- Warm water
- Cv-ketel
- Cv-ketel
- HR Intergas (gas gestookt combiketel uit 2005, eigendom)
Kadastrale gegevens
- ZWOLLE S 4127
- Kadastrale kaart
- Oppervlakte
- 142 m²
- Eigendomssituatie
- Volle eigendom
Buitenruimte
- Ligging
- Aan rustige weg en in woonwijk
- Tuin
- Achtertuin
- Achtertuin
- 59 m² (7,70 meter diep en 7,70 meter breed)
- Ligging tuin
- Gelegen op het zuidwesten bereikbaar via achterom
Bergruimte
- Schuur/berging
- Aangebouwde houten berging
- Voorzieningen
- Elektra
Parkeergelegenheid
- Soort parkeergelegenheid
- Openbaar parkeren
Foto's 26
© 2001-2026 funda

























