
Omschrijving
Op slechts 5 minuten lopen van het winkelcentrum Zwolle Zuid staat deze starterswoning met een stenen berging aan de voorzijde en twee houten bergingen in de achtertuin. De woning is gebouwd in 1986 (nadien gemoderniseerd), telt maar liefst 4 slaapkamers en is voorzien van zonnepanelen.
De woning staat leeg, dus ben je op zoek naar een woning die zeer snel op te leveren is, wacht dan niet langer en plan je bezichtiging (tel. 038 - 422 69 20).
Pluspunten
- vier slaapkamers;
- gunstige ligging in de wijk;
- veel bergruimte;
- zonnepanelen aanwezig;
- snel op te leveren;
Indeling
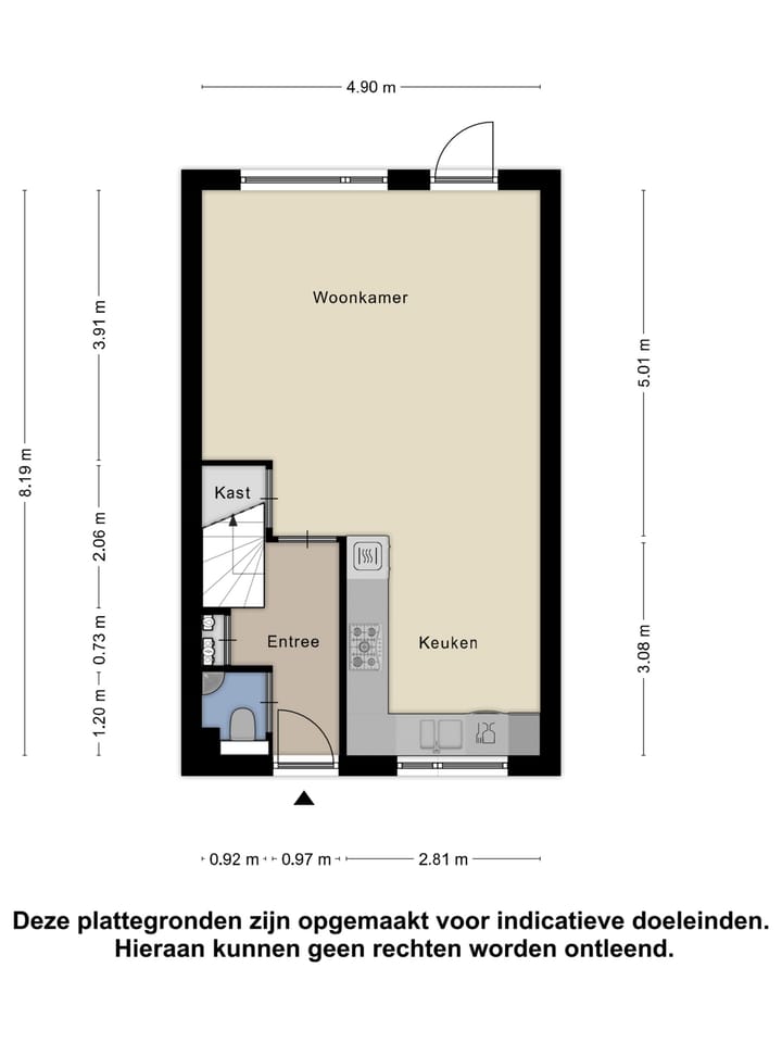
Begane grond: Berging voorzijde | Hal/entree | Toilet | Woonkamer | Trapkast | Open keuken | Twee houten bergingen in de achtertuin
Eerste verdieping: Drie slaapkamers | Overloop | Badkamer
Tweede verdieping: Slaapkamer | Overloop
Derde verdieping: Vliering
Voorzieningen en bijzonderheden
- warm water en verwarming via de CV-ketel;
- woonkamer met laminaatvloer en deur naar de achtertuin;
- open keuken met inbouwkeuken voorzien van vaatwasser, oven, 5-pits gaskookplaat, afzuigkap en koelkast;
- drie slaapkamer op de eerste verdieping waarvan 2 met dakvenster;
- badkamer met dubbele wastafel, toilet en douche;
- ruime slaapkamer op de tweede verdieping;
- overloop op de tweede verdieping met CV-ketel, wasmachine-aansluiting en toegang tot de vliering (3e verdieping);
- stenen berging aan de voorzijde;
- twee houten bergingen en de achtertuin;
- geheel verharde achtertuin gelegen op het oosten (achterom mogelijk);
Kenmerken
Overdracht
- Laatste vraagprijs
- € 365.000 kosten koper
- Vraagprijs per m²
- € 3.802
- Status
- Verkocht
Bouw
- Soort woonhuis
- Eengezinswoning, tussenwoning
- Soort bouw
- Bestaande bouw
- Bouwjaar
- 1986
- Specifiek
- Gedeeltelijk gestoffeerd
- Soort dak
- Zadeldak bedekt met pannen
Oppervlakten en inhoud
- Gebruiksoppervlakten
- Wonen
- 96 m²
- Overige inpandige ruimte
- 6 m²
- Externe bergruimte
- 17 m²
- Perceel
- 116 m²
- Inhoud
- 361 m³
Indeling
- Aantal kamers
- 5 kamers (4 slaapkamers)
- Aantal badkamers
- 1 badkamer en 1 apart toilet
- Badkamervoorzieningen
- Douche, dubbele wastafel, en toilet
- Aantal woonlagen
- 3 woonlagen en een vliering
- Voorzieningen
- Dakraam, glasvezelkabel, mechanische ventilatie, TV kabel, en zonnepanelen
Energie
- Energielabel
- C
- Isolatie
- Dakisolatie, dubbel glas, muurisolatie en vloerisolatie
- Verwarming
- Cv-ketel
- Warm water
- Cv-ketel
- Cv-ketel
- Remeha Tzerra (gas gestookt combiketel uit 2018, eigendom)
Kadastrale gegevens
- ZWOLLE L 4449
- Kadastrale kaart
- Oppervlakte
- 116 m²
- Eigendomssituatie
- Volle eigendom
Buitenruimte
- Ligging
- In woonwijk
- Tuin
- Achtertuin en voortuin
- Voortuin
- 50 m² (10,00 meter diep en 5,00 meter breed)
- Ligging tuin
- Gelegen op het oosten
Bergruimte
- Schuur/berging
- Vrijstaande houten berging
- Voorzieningen
- Elektra
- Isolatie
- Geen isolatie
Parkeergelegenheid
- Soort parkeergelegenheid
- Openbaar parkeren
Foto's 30
© 2001-2025 funda





























