
Omschrijving
Nog enkele flexibele lofts beschikbaar! Kijk voor de actuele beschikbaarheid in de woningzoeker op de projectwebsite.
LAB - FLEXIBELE LOFTS
Lofts met indrukwekkende plafondhoogtes van circa 4 meter!
LAB biedt je de zeldzame kans op een authentieke loft waarvan jij de indeling bepaalt. En dat in de nabijheid van Rotterdam. Ga je voor een woonoppervlakte van 60 m2, 90 m2, 120 m2, 150 m2 of meer. Bij elke uitbreiding groeit de buitenruimte mee, want deze strekken zich uit over de gehele breedte van het appartement. Hoe je al die woonruimte indeelt, bepaal je helemaal zelf. Hoeveel vrijheid wil je hebben?
Verkoop in volle gang!
De verkoop van de flexibele lofts en panorama-appartementen is in volle gang! Via de woningfinder vind je de actuele status van het aanbod. In verband met de voorbereidingen voor de start van de bouw binnenkort, zijn de flexibele lofts voorlopig alleen nog beschikbaar op de 6e tot en met de 8e verdieping. De nog beschikbare lofts op de 2e tot en met de 5e verdieping worden aangeboden met een vast aantal vierkante meters woonoppervlak en vooraf ingedeelde badkamer.
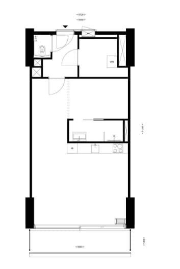
KENMERKEN BOUWNUMMER 91:
- Ca. 60 m²
- Ca. 4 meter hoge plafonds
UNIEK CONCEPT
De woningen in LAB zijn ontworpen met oog voor karakter, licht en ruimte. Je woont hier in robuuste, industriële lofts met betonlook en plafondhoogtes van bijna 4 meter. Deze geven een uniek gevoel van openheid. De grote glazen puien – van vloer tot plafond – zorgen voor een zee aan daglicht.
AFWERKING BOUWNUMMER 91:
- De woning wordt inclusief luxe badkamer opgeleverd. Dit appartement wordt uitgevoerd met het badkamerpakket 'Raw Industry', een badkamer met grijze tegels en zwarte kranen wat het industriële karakter van de woning benadrukt. De badkamerbrochure is te downloaden op de projectwebsite Lablofts.nl bij de 'Downloads'.
- Inclusief luxe keuken van Keukenvision met Bosch inbouwapparatuur. De keukenbrochure is te downloaden op de projectwebsite Lablofts.nl bij de 'Downloads'.
- Inclusief uitgebreid elektrawerk.
PRIJSINDICATIE
De prijs omvat onder andere de basisplattegrond, een compleet afgewerkte badkamer met sanitair en tegels, een keuken inclusief apparatuur en de notariskosten voor de levering. Eventuele aanvullende kosten zijn afhankelijk van jouw wensen.
LOCATIE - DISTRICT U
Mocht je Vlaardingen nog niet kennen, dan zal het je verbazen hoeveel die andere stad aan de Maas te bieden heeft als het gaat om shoppen, sport, cultuur en entertainment. Daar komen nog veel meer leuke, interessante, onderhoudende en uitdagende dingen bij in District U, het deel van Vlaardingen waar LAB wordt ontwikkeld. Dit gebied, bekend om zijn industriële karakter door het roemruchte Unilever-verleden, wordt getransformeerd tot een dynamische stadswijk met een markant karakter waarin de geschiedenis van visserij, scheepvaart en industrie voelbaar is.
District U wordt autoluw. Groen krijgt volop de ruimte. Er wordt plaats gemaakt voor ongeveer achthonderd woningen. Er komen scholen, een kinderopvang, winkels, een huisarts en sympathieke lunchplekjes, sportplekken en restaurants. Het wordt een plek om lekker te wonen en te werken, om elkaar te ontmoeten, om buiten te spelen en van het leven te genieten. Direct aan de Nieuwe Maas met alle levendigheid die daarbij hoort.
BEREIKBAARHEID
Over het water, met de fiets, met de auto, via het openbaar vervoer; de locatie van LAB maakt het heel makkelijk om te reizen. Maar om de hoek vind je eigenlijk al alles wat je nodig hebt.
Pak de fiets en je bent zo bij de watertaxihalte van waaruit je naar vijftig verschillende aanlegplekken in en rond Rotterdam vertrekt. Met diezelfde fiets ben je binnen vijf minuten bij metrohalte Vlaardingen Centrum – als je te voet gaat, ben je daar in ongeveer tien minuten. Vanuit die halte reis je in twintig minuten naar het strand van Hoek van Holland. Of je gaat de andere kant op, en dan sta je in twintig minuten op de Coolsingel in Rotterdam.
INTERESSE?
Op de hoogte blijven van de ontwikkeling van LAB? Schrijf je in voor de nieuwsbrief op de projectwebsite of neem contact op met één van de verkoopmakelaars.
Disclaimer:
Ondanks dat deze informatie met zorgvuldigheid is vastgesteld kunnen er geen rechten worden ontleend aan de informatie in deze aanbieding waaronder teksten, prijzen, oppervlakte en andere variabelen. De informatie kan aan verandering onderhevig zijn. De artists-impressies zijn uitsluitend bedoeld als voorbeeld en daardoor niet bindend voor het eindresultaat. De uiteindelijke contractvorming met bijbehorende bijlagen zijn leidend.
Kenmerken
Overdracht
- Laatste vraagprijs
- € 310.055 vrij op naam
- Vraagprijs per m²
- € 5.168
- Status
- Verkocht
Bouw
- Soort appartement
- Portiekflat (appartement)
- Soort bouw
- Nieuwbouw
- Bouwjaar
- 2027
Oppervlakten en inhoud
- Gebruiksoppervlakten
- Wonen
- 60 m²
- Gebouwgebonden buitenruimte
- 9 m²
- Inhoud
- 230 m³
Indeling
- Aantal kamers
- 1 kamer
- Aantal woonlagen
- 1 woonlaag
- Voorzieningen
- Lift, mechanische ventilatie, en schuifpui
- Gelegen op
- 4e woonlaag
Energie
- Energielabel
- Niet beschikbaar
- Isolatie
- Volledig geïsoleerd
- Verwarming
- Gehele vloerverwarming
- Warm water
- Centrale voorziening
Buitenruimte
- Ligging
- In woonwijk
- Tuin
- Zonneterras
- Balkon/dakterras
- Dakterras aanwezig en balkon aanwezig
Garage
- Soort garage
- Garage mogelijk en parkeerplaats
Parkeergelegenheid
- Soort parkeergelegenheid
- Parkeergarage
Foto's 14
© 2001-2025 funda













