
Omschrijving
LAB - PANORAMA-APPARTEMENTEN
Groot. Ruim. Robuust. Industrieel en karaktervol. Welkom in LAB: een voormalig laboratorium aan de Maas in Vlaardingen dat is getransformeerd tot een unieke woonlocatie. Hier kom je thuis in panorama-appartementen die royaal, luxe en compleet zijn, met een adembenemend uitzicht als kroonjuweel. LAB is dé plek voor creatieve doeners, vernieuwers en avonturiers die iets bijzonders zoeken.
EEN DROOM DIE UITKOMT
Soms komt er iets op je pad waarvan je wel hebt gedroomd, maar nooit had verwacht dat het waarheid zou kunnen worden. Mensen die verlangen naar een luxe en comfortabel appartement, met veel ruimte binnen én buiten en een onwaarschijnlijk indrukwekkend panoramisch uitzicht, maken dat moment nu mee.
Helemaal af. Alles hagelnieuw. Plattegronden met indrukwekkende vloeroppervlakten – van ca. 100 m2 tot 230 m2 – waarin ruimtelijkheid en gemak domineren. Immens grote terrassen die een grenzeloos gevoel van vrijheid creëren. Materialen en een niveau van afwerking die kwaliteit ademen en getuigen van goede smaak. De achttien panorama-appartementen op de negende en tiende verdieping van LAB zijn meer dan zomaar een fraai nieuwbouwproject.
ARCHITECTUUR MET VISIE
Het team van architecten heeft zich bij aanvang van het project verplaatst in de gedachtewereld van mensen met een kritische woonwens die bereid zijn om over hun eigen grenzen te kijken. Dit heeft geleid tot het toevoegen van twee woonlagen op het dak van LAB met appartementen waarover tot in elk detail is nagedacht. En waarin bovengemiddelde woonkwaliteiten de norm bepalen. Dit om het kopers zo makkelijk mogelijk te maken en een bijzondere woonervaring te bieden. Deze aanpak zorgt voor appartementen waarin luxe en comfort de norm zijn, met volop licht, ruimte en ongeëvenaarde buitenruimtes.
KENMERKEN
- 18 panorama-appartementen
- Royaal en comfortabel
- Vanaf ca. 100 m2 tot 230 m2
- Volop licht en ruimte
- Spectaculaire buitenruimtes
- Sensationeel uitzicht
BIJZONDERE BUITENRUIMTES
De specifieke, trapsgewijze manier van bouwen creëert ronduit spectaculaire buitenruimtes met een sensationeel, panoramisch uitzicht. Vanaf deze terrassen kijk je uit over de stad Vlaardingen, het Maaspark, de Maas zelf en het achterliggende havengebied. Wat verder weg zie je de skyline van Rotterdam. En wie zich wil uitleven met lekker veel planten en ander groen; ga je gang, er is ruimte genoeg.
AFWERKING & OPLEVERING
De panorama-appartementen worden verkocht met de indeling volgens de basisplattegrond van de architect. Als je voor een andere indeling kiest, worden de aanpassingen als meerwerk in de koopsom opgenomen. Alle appartementen worden inclusief badkamer opgeleverd. Zodra een leverancier is geselecteerd, kun je daar terecht voor een ontwerp en om een keuze te maken voor tegels, sanitair en kranen. Voor keukens is dat ook een optie; met een zogenaamde keukenvoucher kun je bij een geselecteerde LAB-leverancier terecht voor kasten en apparatuur. Het staat je ook vrij om bij een andere leverancier een keuken te kopen.
PRIJSINDICATIE
De prijs omvat onder andere de basisplattegrond, een compleet afgewerkte badkamer met sanitair en tegels, een keuken inclusief apparatuur en de notariskosten voor de levering. Eventuele aanvullende kosten zijn afhankelijk van jouw wensen, zoals aanpassingen aan de indeling van het appartement.
LOCATIE - DISTRICT U
Mocht je Vlaardingen nog niet kennen, dan zal het je verbazen hoeveel die andere stad aan de Maas te bieden heeft als het gaat om shoppen, sport, cultuur en entertainment. Daar komen nog veel meer leuke, interessante, onderhoudende en uitdagende dingen bij in District U, het deel van Vlaardingen waar LAB wordt ontwikkeld. Dit gebied, bekend om zijn industriële karakter door het roemruchte Unilever-verleden, wordt getransformeerd tot een dynamische stadswijk met een markant karakter waarin de geschiedenis van visserij, scheepvaart en industrie voelbaar is.
District U wordt autoluw. Groen krijgt volop de ruimte. Er wordt plaats gemaakt voor ongeveer achthonderd woningen. Er komen scholen, een kinderopvang, winkels, een huisarts en sympathieke lunchplekjes, sportplekken en restaurants. Het wordt een plek om lekker te wonen en te werken, om elkaar te ontmoeten, om buiten te spelen en van het leven te genieten. Direct aan de Nieuwe Maas met alle levendigheid die daarbij hoort.
BEREIKBAARHEID
Over het water, met de fiets, met de auto, via het openbaar vervoer; de locatie van LAB maakt het heel makkelijk om te reizen. Maar om de hoek vind je eigenlijk al alles wat je nodig hebt.
Pak de fiets en je bent zo bij de watertaxihalte van waaruit je naar vijftig verschillende aanlegplekken in en rond Rotterdam vertrekt. Met diezelfde fiets ben je binnen vijf minuten bij metrohalte Vlaardingen Centrum – als je te voet gaat, ben je daar in ongeveer tien minuten. Vanuit die halte reis je in twintig minuten naar het strand van Hoek van Holland. Of je gaat de andere kant op, en dan sta je in twintig minuten op de Coolsingel in Rotterdam.
INTERESSE?
Op de hoogte blijven van de ontwikkeling van LAB? Schrijf je in voor de nieuwsbrief op de projectwebsite of neem contact op met één van de verkoopmakelaars.
Op deze manier mis je niets. De verkoop start 17 februari 2025.
Disclaimer:
Ondanks dat deze informatie met zorgvuldigheid is vastgesteld kunnen er geen rechten worden ontleend aan de informatie in deze aanbieding waaronder teksten, prijzen, oppervlakte en andere variabelen. De informatie kan aan verandering onderhevig zijn. De artists-impressies zijn uitsluitend bedoeld als voorbeeld en daardoor niet bindend voor het eindresultaat. De uiteindelijke contractvorming met bijbehorende bijlagen zijn leidend.
Kenmerken
Overdracht
- Laatste vraagprijs
- € 615.000 vrij op naam
- Vraagprijs per m²
- € 5.491
- Status
- Verkocht
Bouw
- Soort appartement
- Penthouse (appartement)
- Soort bouw
- Nieuwbouw
- Bouwjaar
- 2027
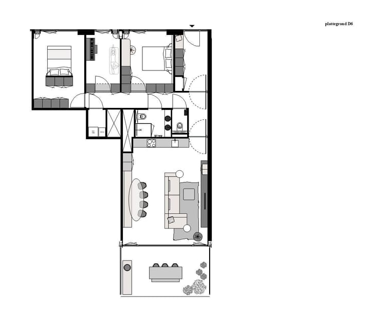
Oppervlakten en inhoud
- Gebruiksoppervlakten
- Wonen
- 112 m²
- Gebouwgebonden buitenruimte
- 20 m²
- Inhoud
- 302 m³
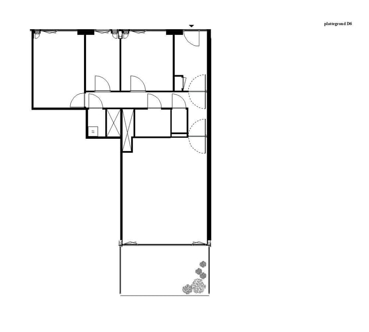
Indeling
- Aantal kamers
- 4 kamers (3 slaapkamers)
- Aantal woonlagen
- 1 woonlaag
- Voorzieningen
- Lift en mechanische ventilatie
- Gelegen op
- 9e woonlaag
Energie
- Energielabel
- A++
- Isolatie
- Volledig geïsoleerd
- Verwarming
- Gehele vloerverwarming
- Warm water
- Centrale voorziening
Buitenruimte
- Ligging
- Aan park, aan water, in woonwijk en vrij uitzicht
- Tuin
- Zonneterras
Garage
- Soort garage
- Garage mogelijk en parkeerplaats
Foto's 12
© 2001-2025 funda











