
Omschrijving
Karakteristieke hoekwoning met 142m² woonoppervlak met terras gelegen in Vlaardingen oost
Dit karaktervolle hoekhuis uit 1896 is allesbehalve standaard. Met een woonoppervlakte van maar liefst 142 m² en een unieke indeling verdeeld over twee verdiepingen biedt dit huis volop ruimte voor klussers, jonge stellen én gezinnen. Vanaf het eerste moment voelt het huis verrassend ruim aan, mede door de unieke indeling en fijne lichtinval.
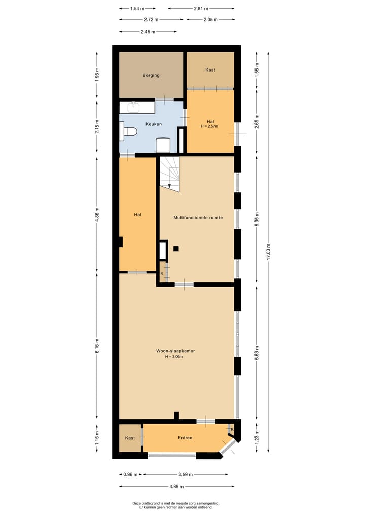
Je komt binnen op de begane grond. In de hal vind je aan de rechterzijde een praktische inbouwkast met een nette PVC-visgraatvloer. Aan de linkerkant ligt een tussenkamer, ideaal als werkplek, speelruimte of extra berging. Ook bevind de trap naar boven hier zich. Vanuit de tussenkamer loop je door naar de woonkamer aan de achterzijde. Ook beschikt de begane grond een tweede hal met inbouwkast, een berging én toegang tot de bijkeuken. Hier vind je ook het toilet, praktische wasmachineaansluiting en extra berging.
WONEN OP DE EERSTE VERDIEPING – MET TERRAS!
De eerste verdieping is verrassend ingedeeld en ademt sfeer. De ruime overloop biedt toegang tot een tweede keuken, voorzien van een 4-pits gaskookplaat en volop ruimte om gezellig te koken. Vanuit hier stap je zo het terras op, gelegen op het noordoosten. Perfect voor een ontbijtje in de ochtendzon of een momentje voor jezelf later op de dag.
Aan deze verdieping grenst ook de badkamer, voorzien van een toilet, badkamermeubel en douchecabine. De afwerking met houten kozijnen en enkel glas geeft de ruimte een authentiek tintje. In de woonkamer op deze verdieping zorgen vier dakramen voor volop licht en sfeer. Aan de achterzijde vind je een royale slaapkamer met grote inbouwkast, ideaal als master bedroom. De gehele verdieping is afgewerkt met laminaatstroken.
UNIEK PAND VOOR IEMAND MET VISIE
Wat dit huis écht bijzonder maakt, is de indeling en het karakter. Geen strakgestucte nieuwbouw, maar een pand met verhaal, sfeer en mogelijkheden. De combinatie van originele details, verrassende ruimtes en functionele elementen zoals inbouwkasten en een ruime berging maakt dit huis zeer geschikt voor iemand die het aandurft om het verder naar eigen wens te maken. Of je nu houdt van klussen en transformeren of juist een unieke woonplek zoekt waar je je eigen draai aan kunt geven, dit huis biedt alle ingrediënten. En met vier kamers, waaronder een royale slaapkamer, tussenruimte en twee woonkamers, kun je hier echt alle kanten op.
DE LIGGING: VLAARDINGEN OOST – CENTRAAL EN DORPS TEGELIJK
Arnold Hoogvlietstraat ligt in de wijk Vlaardingen Oost, een populaire woonomgeving waar rust en bereikbaarheid samenkomen. Je woont hier in een charmante straat met voornamelijk vooroorlogse bebouwing, die zorgt voor een authentieke sfeer. De wijk kenmerkt zich door de mix van jonge gezinnen, stellen en ouderen die hier al jaren met plezier wonen. Wat direct opvalt is de centrale ligging. Binnen enkele minuten ben je op de uitvalswegen richting Rotterdam of Den Haag. Ook het openbaar vervoer is goed geregeld: metrostation Vlaardingen Oost ligt op loopafstand, net als diverse bushaltes. Voor de dagelijkse boodschappen kun je terecht bij meerdere supermarkten en winkels in de buurt op loopafstand. Daarnaast is er volop groen in de omgeving, met onder meer het Oranjepark en het Krabbepark op korte afstand. Voor kinderen zijn er meerdere basisscholen, speelplekken en sportverenigingen in de buurt, wat de wijk tot een fijne plek maakt voor gezinnen. Zin in een terrasje of lekker eten? Het centrum van Vlaardingen ligt op loopafstand binnen 5 minuten en biedt een gevarieerd aanbod van horeca en winkels.
KENMERKEN
- Bouwjaar 1896
- Woonoppervlakte ca. 142 m²
- 4 kamers
- Terras op het noordoosten
- Unieke indeling
- Verwarming en warm water via CV ketel (Intergas)
- Energielabel E
- Gelegen op eeuwigdurende erfpachtgrond met een jaarlijkse bijdrage van circa €6,13
- Ouderdoms- en niet-zelfbewoningsclausule van toepassing
- Projectnotaris van toepassing
- Oplevering in overleg, kan snel
INTERESSE? MAAK DAN SNEL EEN AFSPRAAK!
Ons advies is om bij het kopen van jouw nieuwe woning jouw eigen NVM-makelaar mee te nemen.
TOELICHTINGSCLAUSULE NEN2580
De Meetinstructie is gebaseerd op de NEN2580. De Meetinstructie is bedoeld om een meer eenduidige manier van meten toe te passen voor het geven van een indicatie van de gebruiksoppervlakte. De Meetinstructie sluit verschillen in meetuitkomsten niet volledig uit, door bijvoorbeeld interpretatieverschillen, afrondingen of beperkingen bij het uitvoeren van de meting.
KOOPOVEREENKOMST PAS RECHTSGELDIG NA ONDERTEKENING
Een mondelinge overeenstemming tussen de particuliere verkoper en de particuliere koper is niet rechtsgeldig. Met andere woorden: er is geen koop. Er is pas sprake van een rechtsgeldige koop als de particuliere verkoper en de particuliere koper de koopovereenkomst hebben ondertekend. Dit vloeit voort uit artikel 7:2 Burgerlijk Wetboek. Een bevestiging van de mondelinge overeenstemming per e-mail of een toegestuurd concept van de koopovereenkomst wordt overigens niet gezien als een 'ondertekende koopovereenkomst'
“Deze informatie is door ons met de nodige zorgvuldigheid samengesteld. Onzerzijds wordt echter geen enkele aansprakelijkheid aanvaard voor enige onvolledigheid, onjuistheid of anderszins, dan wel de gevolgen daarvan. Alle opgegeven maten en oppervlakten zijn indicatief.”
Kenmerken
Overdracht
- Aangeboden sinds
- Aanvaarding
- In overleg
- Vraagprijs
- € 325.000 kosten koper
- Vraagprijs per m²
- € 2.289
- Status
- Beschikbaar
Bouw
- Soort woonhuis
- Eengezinswoning, hoekwoning
- Soort bouw
- Bestaande bouw
- Bouwjaar
- 1896
- Specifiek
- Gedeeltelijk gestoffeerd
- Soort dak
- Zadeldak bedekt met pannen
Oppervlakten en inhoud
- Gebruiksoppervlakten
- Wonen
- 142 m²
- Gebouwgebonden buitenruimte
- 17 m²
- Perceel
- 90 m²
- Inhoud
- 554 m³
Indeling
- Aantal kamers
- 4 kamers (3 slaapkamers)
- Aantal badkamers
- 1 badkamer
- Badkamervoorzieningen
- Douche, toilet, wastafel, en wastafelmeubel
- Aantal woonlagen
- 2 woonlagen
- Voorzieningen
- Natuurlijke ventilatie en TV kabel
Energie
- Energielabel
- E
- Isolatie
- Dakisolatie, grotendeels dubbelglas en muurisolatie
- Verwarming
- Cv-ketel
- Warm water
- Cv-ketel
- Cv-ketel
- Intergas (gas gestookt combiketel, eigendom)
Kadastrale gegevens
- VLAARDINGEN B 4159
- Kadastrale kaart
- Oppervlakte
- 90 m²
- Eigendomssituatie
- Gemeentelijk eigendom belast met erfpacht
- Lasten
- Eeuwigdurend afgekocht
Buitenruimte
- Ligging
- Aan rustige weg en in woonwijk
- Tuin
- Zonneterras
- Zonneterras
- 17 m² (5,49 meter diep en 3,16 meter breed)
- Ligging tuin
- Gelegen op het noordoosten
- Balkon/dakterras
- Dakterras aanwezig
Parkeergelegenheid
- Soort parkeergelegenheid
- Betaald parkeren en parkeervergunningen
Foto's 50
© 2001-2025 funda

















































