
Omschrijving
Zeer bijzondere en ruime split level HOEKwoning op een mooie plek met uitzicht over het water en park. Deze woning op EIGEN grond heeft een woonoppervlakte van 140 m2, met een prachtige ligging aan de rand van 't Nieuwelant park in de wijk Babberspolder. De woning heeft een bijzondere indeling met onder andere een split level woonkamer/keuken, een zeer royaal terras op het westen, twee badkamers, drie toiletten, vier ruime slaapkamers en een eigen parkeerplaats onder het zonneterras. Er is veel groen in de omgeving, het winkelcentrum van Hogendorpkwartier ligt om de hoek en in de wijk liggen ook scholen en metrostation Vlaardingen-Oost.
INDELING:
Begane grond:
Via een autovrije straat en de ca. 3,5 meter diepe voortuin heeft u toegang tot de woning en treft u garderobemogelijkheden en de meterkast aan. Op deze woonlaag vindt u een ruimte van ruim 8 m2 welke mooi geschikt is voor de eettafel.
Via korte trap heeft u toegang tot de woonkamer met open keuken (ca. 25 m2). Vanuit de woonkamer geeft een schuifpui toegang tot het op het zonnige westen gelegen terras van bijna 24 m2.
Het keukenblok is bereikbaar via de trap. Deze is uitgevoerd in U-opstelling en neutrale kleurstelling en voorzien van koelkast, 4-pits gaskookplaat, afzuigkap, combimagnetron en vaatwasser.
Halve trap naar beneden voor gedeeltelijk betegeld vrij hangend toilet met fontein en achterdeur naar de berging en de carport met parkeerplaats op een afgesloten terrein. De berging is ca. 15 m2 groot.
1e verdieping:
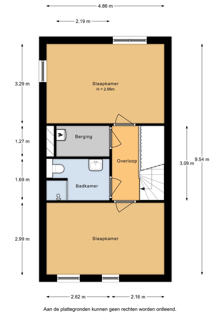
Overloop met toegang tot alle vertrekken. Slaapkamer aan voorzijde van ca. 14,5 m2 met uitzicht over het park. Slaapkamer aan achterzijde van ruim 16 m2 met vaste kast. Geheel betegelde badkamer met ligbad, aparte douche met douchedeur, wastafelmeubel en handdoekradiator. Separaat, naast de badkamer gelegen, betegeld vrij hangend toilet.
2e verdieping:
Overloop. Slaapkamer aan voorzijde van ca. 14,5 m2. Slaapkamer aan achterzijde van ruim 16 m2. Inpandige berging/voorzieningenruimte met opstelling CV-combiketel en unit mechanische ventilatie.
Daarnaast een 2e badkamer welke voorzien is van volledige betegeling, douchehoek met spatscherm, 3e(!) toilet, wastafel en handdoekradiator.
Bijzonderheden:
De achterzijde van de woning en de parkeerplaats zijn via een afgesloten (mandelige) terrein bereikbaar. Voor het onderhoud aan deze weg en de toegangspoort alsmede de gemeenschappelijke straatverlichting wordt € 83,92 per kwartaal betaald, te voldoen aan de beheers vereniging.
De notariskeuze is, voor wat betreft de akte van levering, een wezenlijk onderdeel van deze overeenkomst en derhalve aan verkoper voorbehouden. De door verkoper gekozen notaris is: Schaap Advocaten Notarissen te Rotterdam.
- Oplevering in overleg, kan snel.
- Bouwjaar 2012.
- Unieke split level HOEKwoning.
- Eigen parkeerplaats.
- Woonoppervlakte: 140 m2 + 23 m2 terras + 15 m2 berging.
- Gelegen op 85 m2 EIGEN GROND.
- Volledig voorzien van houten kozijnen met HR-glas.
- Volledig geïsoleerd.
- Verwarming en warm water middels HR CV-ketel, Intergas 2012.
- Energielabel A.
- In de koopakte wordt een niet-zelfbewoningsclausule opgenomen (betreft een ex-huurwoning).
- Er zijn geen vragenlijsten voor deze woning beschikbaar, dit eveneens omdat de verkoper de woning niet zelf bewoond heeft.
-----------------------------------------------
Interesse in dit huis? Neem uw eigen Vlaardingse aankoopmakelaar mee.
Deze brochure is met zorg samengesteld, wij zijn echter niet aansprakelijk voor eventuele onjuiste of onvolledige informatie. Alle verstrekte informatie moet beschouwd worden als een uitnodiging tot het doen van een aanbod of om in onderhandeling te treden.
Kenmerken
Overdracht
- Laatste vraagprijs
- € 568.000 kosten koper
- Vraagprijs per m²
- € 4.057
- Status
- Verkocht
Bouw
- Soort woonhuis
- Eengezinswoning, eindwoning (split-level woning)
- Soort bouw
- Bestaande bouw
- Bouwjaar
- 2012
- Specifiek
- Gedeeltelijk gestoffeerd
- Soort dak
- Plat dak bedekt met bitumineuze dakbedekking
Oppervlakten en inhoud
- Gebruiksoppervlakten
- Wonen
- 140 m²
- Gebouwgebonden buitenruimte
- 23 m²
- Externe bergruimte
- 21 m²
- Perceel
- 85 m²
- Inhoud
- 535 m³
Indeling
- Aantal kamers
- 5 kamers (4 slaapkamers)
- Aantal badkamers
- 2 badkamers en 2 aparte toiletten
- Badkamervoorzieningen
- 2 douches, ligbad, wastafelmeubel, toilet, en wastafel
- Aantal woonlagen
- 3 woonlagen
- Voorzieningen
- Glasvezelkabel, mechanische ventilatie, natuurlijke ventilatie, schuifpui, en TV kabel
Energie
- Energielabel
- A
- Isolatie
- Dakisolatie, dubbel glas, muurisolatie, vloerisolatie en volledig geïsoleerd
- Verwarming
- Cv-ketel
- Warm water
- Cv-ketel
- Cv-ketel
- Intergas (gas gestookt combiketel uit 2012, eigendom)
Kadastrale gegevens
- VLAARDINGEN G 4923
- Kadastrale kaart
- Oppervlakte
- 85 m²
- Eigendomssituatie
- Volle eigendom
Buitenruimte
- Ligging
- Aan park, aan rustige weg, aan water, in woonwijk, open ligging en vrij uitzicht
- Tuin
- Zonneterras
- Zonneterras
- 22 m² (4,44 meter diep en 5,05 meter breed)
- Ligging tuin
- Gelegen op het westen
- Balkon/dakterras
- Balkon aanwezig
Bergruimte
- Schuur/berging
- Aangebouwde stenen berging
- Voorzieningen
- Elektra
Parkeergelegenheid
- Soort parkeergelegenheid
- Op afgesloten terrein, op eigen terrein en openbaar parkeren
Foto's 53
© 2001-2025 funda




















































