
Omschrijving
Ben je op zoek naar een eigentijdse woning met 155m2 woonoppervlak, 242m2 perceel, energielabel A, een eigen oprit, vier slaapkamers, twee badkamers, en een grote, fijne achtertuin? Dan is deze instapklare hoekwoning in de geliefde wijk De Hoven, Vleuten, precies wat je zoekt!
De woning, gebouwd in 2008, ligt in de charmante wijk De Hoven, bekend om zijn jaren '30 architectuur met een moderne twist. De wijk is kindvriendelijk met autoluwe straatjes en gezellige hofjes. Alle belangrijke voorzieningen zijn op loopafstand: het station Vleuten, het Maximapark, gezondheidscentrum en sportvelden. Voor je dagelijkse boodschappen kun je terecht in winkelcentrum Vleuterweide met bekende ketens als Albert Heijn en Jumbo, maar ook lokale ambachtszaken zoals Bakkerij Verkerk. De bus naar het centrum van Utrecht vertrekt elke 10 minuten.
Begane grond:
Bij aankomst valt direct de jaren '30 stijl op met moderne details zoals lage ramen en donkere kozijnen. De entree straalt luxe uit met strak gestucte wanden en mooie vloeren. De ruime en lichte woonkamer heeft grote ramen die veel daglicht binnenlaten en via openslaande deuren stap je zo de zonnige achtertuin in. De open keuken met schiereiland is voorzien van hoogwaardige inbouwapparatuur van Smeg, inclusief een kokendheet waterkraan. De uitbouw aan de zijkant met gashaard biedt ruimte voor een grote eettafel, perfect voor diners en spelletjesavonden.
Eerste verdieping:
De eerste verdieping biedt twee ruime slaapkamers, waaronder een master bedroom met inbouwkast aan de achterzijde. De moderne badkamer is van alle gemakken voorzien, inclusief een inloopdouche en tweede toilet. De tweede kamer kan eenvoudig worden ingericht als slaap-, werk- of studeerkamer.
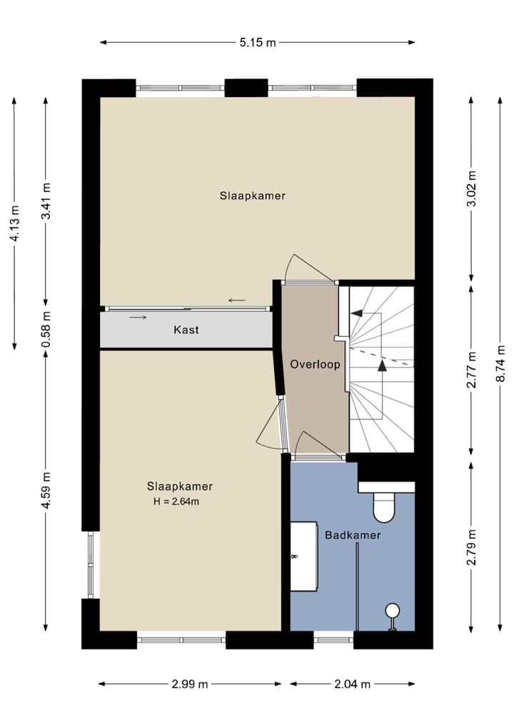
Tweede verdieping:
De tweede verdieping heeft ruimte/voorzolder voor een wasmachine en droger, een extra wastafel, en een aparte douche. De Cv-installatie en mechanische ventilatie zijn netjes weggewerkt. Verder heeft deze verdieping maar liefst 2 (slaap)kamers met voldoende ruimte en lichtinval.
Tuin
De royale achtertuin op het noordoosten heeft maar liefst twee bergingen, schuttingen, sierbestrating en biedt zowel zon als schaduw. De tuin is ideaal voor ontspanning! Achter de woning is een groot parkeerterrein met openbare parkeerplekken. Ook is er een achterom aanwezig.
Benieuwd naar deze woning in de populaire woonwijk ‘’De Hoven’’? Bel ons gauw voor een afspraak!
- Woonoppervlak ca. 155m2;
- Inhoud ca. 570m3;
- Perceeloppervlakte ca. 242 m2 eigen grond;
- Definitief energielabel A;
- Volledig geïsoleerd;
- Vier ruime slaapkamers;
- Twee badkamers;
- Parkeren open eigen oprit en/of op naastgelegen parkeerterrein (openbaar parkeren);
- Deels zonnige achtertuin met overkapping en dubbele berging;
- 12 zonnepanelen op het dak en 3 op de schuur;
- Begane grond voorzien van elektrische vloerverwarming
- Moderne keuken met o.a. Smeg inbouwapparatuur;
- Strakke moderne badkamer en 2e ‘’badkamer’’ op de tweede verdieping;
- Verwarming en warm water door middel van CV combiketel (2022);
- Oplevering in overleg.
Kenmerken
Overdracht
- Laatste vraagprijs
- € 850.000 kosten koper
- Vraagprijs per m²
- € 5.484
- Status
- Verkocht
Bouw
- Soort woonhuis
- Eengezinswoning, hoekwoning
- Soort bouw
- Bestaande bouw
- Bouwjaar
- 2008
- Soort dak
- Dwarskap bedekt met pannen
Oppervlakten en inhoud
- Gebruiksoppervlakten
- Wonen
- 155 m²
- Overige inpandige ruimte
- 8 m²
- Gebouwgebonden buitenruimte
- 19 m²
- Externe bergruimte
- 9 m²
- Perceel
- 242 m²
- Inhoud
- 570 m³
Indeling
- Aantal kamers
- 5 kamers (4 slaapkamers)
- Aantal badkamers
- 1 badkamer en 1 apart toilet
- Badkamervoorzieningen
- Inloopdouche, toilet, en wastafelmeubel
- Aantal woonlagen
- 3 woonlagen
- Voorzieningen
- Dakraam, glasvezelkabel, mechanische ventilatie, en TV kabel
Energie
- Energielabel
- A
- Isolatie
- Volledig geïsoleerd
- Verwarming
- Cv-ketel
- Warm water
- Centrale voorziening
- Cv-ketel
- Intergas (gas gestookt combiketel uit 2022, eigendom)
Kadastrale gegevens
- VLEUTEN E 5544
- Kadastrale kaart
- Oppervlakte
- 242 m²
- Eigendomssituatie
- Volle eigendom
Buitenruimte
- Ligging
- In woonwijk
- Tuin
- Achtertuin, voortuin en zijtuin
- Achtertuin
- 112 m² (10,91 meter diep en 10,28 meter breed)
- Ligging tuin
- Gelegen op het noordoosten bereikbaar via achterom
Bergruimte
- Schuur/berging
- Vrijstaande houten berging
Parkeergelegenheid
- Soort parkeergelegenheid
- Op eigen terrein
Foto's 62
© 2001-2025 funda





























































