
Verkuijl Quakkelaarstraat 254381 PJ VlissingenScheldestraat e.o.
Verkocht onder voorbehoud
€ 350.000 k.k.
Omschrijving
Welkom aan de Verkuijl Quakkelaarstraat 25: een charmante en verrassend ruime woning waar karakter en comfort perfect samenkomen. Authentieke details zoals glas-in-lood, balkenplafond en fraaie spanten worden hier moeiteloos gecombineerd met hedendaags wooncomfort. De woning is goed onderhouden, beschikt over energielabel C, 9 zonnepanelen, een CV-ketel uit 2023 en recent uitgevoerd schilderwerk (2020 en 2023). Een heerlijk familiehuis met veel licht, ruimte en sfeer.
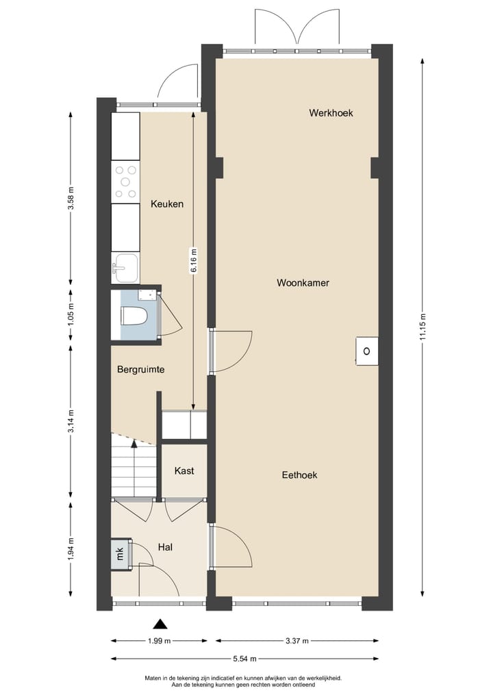
Begane grond
Via de entree kom je in de hal met de meterkast, opbergkast, de trapopgang naar de eerste verdieping. Vanuit de hal is er toegang tot de royale woon-/eetkamer. De woon- en eetkamer is maar liefst ruim 11 meter diep en vormt een prachtige, lichte leefruimte. De fraaie houtenvloer, zichtbare balken en grote raampartijen zorgen voor een warme en uitnodigende sfeer. Aan de achterzijde geven openslaande tuindeuren direct toegang tot de tuin. De keuken bevindt zich eveneens aan de achterzijde en is voorzien van diverse inbouwapparatuur. Tevens bevindt zich hier het toilet. Daarnaast is er op de begane grond veel praktische bergruimte.
Eerste verdieping
Op de eerste verdieping bevinden zich twee slaapkamers aan de voorzijde. Aan de achterzijde ligt een royale slaapkamer met openslaande deuren naar het dakterras een heerlijke plek om buiten te zitten. De badkamer (2020) is modern, licht en luxe uitgevoerd en beschikt over een wastafelmeubel, toilet, ligbad en aparte douche. Op de overloop bevindt zich tevens een aparte wasruimte, wat zorgt voor extra comfort en gemak.
Tweede verdieping
De tweede verdieping biedt een overloop met kastruimte en de CV-opstelling (2023). Zowel aan de voor- als achterzijde bevinden zich ruime slaapkamers. De zichtbare authentieke spanten geven deze verdieping een unieke en sfeervolle uitstraling.
Tuin
De achtertuin is bereikbaar via de openslaande deuren vanuit de woonkamer en biedt een fijne, beschutte buitenruimte om te ontspannen of gezellig te tafelen. Een prettige verlenging van de leefruimte binnenshuis. Daarnaast is er een (zij) achterom aanwezig, ideaal voor o.a. de fiets.
Locatie
De Verkuijl Quakkelaarstraat is een rustige en geliefde straat met alle voorzieningen binnen handbereik. Winkels, scholen, openbaar vervoer en uitvalswegen zijn eenvoudig bereikbaar. Een ideale locatie voor wie comfortabel en centraal wil wonen, met behoud van rust en sfeer.
Nieuwsgierig geworden? Neem dan contact op met Schinkel de Weerd makelaardij. Tot snel.
Bijzonderheden:
- Standaard dient koper een bankgarantie c.q. waarborgsom van 10% van de koopprijs te stellen c.q. te storten via de notaris. Dit zal opgenomen worden in de koopovereenkomst;
- In de koopovereenkomst zal tevens een artikel worden opgenomen dat verband houdt met de ouderdom;
- Bij woningen en appartementen met een oorspronkelijk bouwjaar tot 1993 zal er in de koopovereenkomst een asbestclausule worden opgenomen.
Deze informatie is door ons met de nodige zorgvuldigheid samengesteld. Onzerzijds wordt echter geen enkele aansprakelijkheid aanvaard voor enige onvolledigheid, onjuistheid of anderszins, dan wel de gevolgen daarvan. Alle opgegeven maten en oppervlakten zijn indicatief.
Kenmerken
Overdracht
- Aangeboden sinds
- Aanvaarding
- In overleg
- Vraagprijs
- € 350.000 kosten koper
- Vraagprijs per m²
- € 2.574
- Status
- Verkocht onder voorbehoud
Bouw
- Soort woonhuis
- Eengezinswoning, hoekwoning
- Soort bouw
- Bestaande bouw
- Bouwjaar
- 1936
- Soort dak
- Zadeldak bedekt met pannen
Oppervlakten en inhoud
- Gebruiksoppervlakten
- Wonen
- 136 m²
- Gebouwgebonden buitenruimte
- 9 m²
- Externe bergruimte
- 5 m²
- Perceel
- 104 m²
- Inhoud
- 507 m³
Indeling
- Aantal kamers
- 6 kamers (5 slaapkamers)
- Aantal badkamers
- 1 badkamer en 1 apart toilet
- Badkamervoorzieningen
- Douche, dubbele wastafel, ligbad, en toilet
- Aantal woonlagen
- 3 woonlagen
- Voorzieningen
- Glasvezelkabel, natuurlijke ventilatie, en zonnepanelen
Energie
- Energielabel
- Isolatie
- Muurisolatie
- Verwarming
- Cv-ketel
- Warm water
- Cv-ketel
- Cv-ketel
- Remeha Tzerra (gas gestookt combiketel uit 2023, eigendom)
Kadastrale gegevens
- VLISSINGEN A 5493
- Kadastrale kaart
- Oppervlakte
- 104 m²
- Eigendomssituatie
- Volle eigendom
Buitenruimte
- Ligging
- In centrum
- Tuin
- Achtertuin
- Achtertuin
- 33 m² (5,50 meter diep en 6,00 meter breed)
- Ligging tuin
- Gelegen op het noordwesten bereikbaar via achterom
- Balkon/dakterras
- Dakterras aanwezig
Bergruimte
- Schuur/berging
- Vrijstaande stenen berging
- Voorzieningen
- Elektra
Parkeergelegenheid
- Soort parkeergelegenheid
- Parkeervergunningen
Foto's 53
Plattegronden 4
© 2001-2026 funda
























































