
Omschrijving
Wonen in hartje Voorburg? Ideaal, energiezuinig (Label A +++) recent opgeleverd appartement met een woonopp. van ca. 77 m2 met balkon en parkeerplek in de ondergelegen garage én (fietsen)berging.
Het Bernardus project is een nieuw en trendy transformatieproject midden in Voorburg. Het appartement heeft de uitstraling van een loft appartement en is van alle moderne gemakken voorzien met o.a. een eigen WTW-installatie en zonnepanelen. De woning heeft een open indeling met een moderne open keuken. De woning is volledig voorzien van een PVC-vloer met vloerverwarming en dubbele HR++ beglazing. Tevens zijn er 2 liften in de centrale hal en beschikt het appartement over een privé parkeerplaats voor 1 auto en een (fietsen)berging.
Gunstige ligging:
Voor je dagelijkse boodschappen kun je lopend naar het winkelcentrum Julianabaan of op zaterdag naar de markt in het Huygenskwartier. De bus stopt voor de deur en brengt je in enkele minuten naar het NS- en metrostation Voorburg of station Laan van NOI. Natuurlijk kun je ook op de fiets of wandelend naar de stations. Met bus of tram ben je binnen 15 minuten in het centrum van Den Haag. Binnen 10 minuten rijd je op de N44, A12 of A4. Ook rijd je vanuit Voorburg zo Den Haag in. Parkeren kan op de eigen parkeerplaats in de parkeergarage onder het gebouw. Bezoek kan parkeren bij het winkelcentrum en in de buurt.
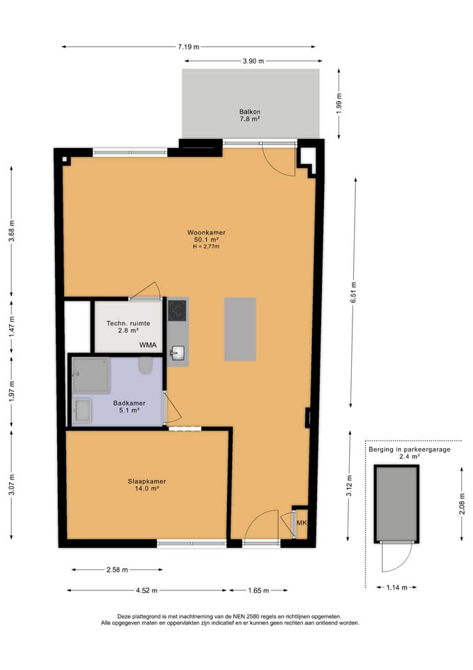
Indeling:
Entree appartementencomplex op straatniveau met bellentableau en brievenbussen. Lift en/of trap naar de 2e verdieping. Entree appartement. Gelegen op de 2e woonlaag. Open indeling met gang en doorloop naar de woonkamer met moderne open keuken. De woonkamer geeft toegang tot het balkon dat een fraai uitzicht bieden op de gezellige binnentuin waar de bewoners exclusief gebruik van kunnen maken.
1 Slaapkamer. Luxe badkamer voorzien een ruime inloopdouche, design radiator, wastafel met meubel en een zwevend toilet. Er is tevens een aparte (was)ruimte voorzien van een aansluiting voor een wasmachine en droger. In deze ruimte staat eveneens de waterpomp instelling opgesteld.
Het weten waard:
- Energielabel A+++;
- Warm water middels warmtepomp; energieneutraal;
- Bouwjaar appartement 1993, volledig gerenoveerd in 2023;
- Lift aanwezig;
- Glasvezel beschikbaar;
- Eigen parkeerplek in de ondergelegen parkeerplaats;
- Zonnepanelen op het dak (eigendom);
- VvE bijdrage €201,- per maand (woon) en €33,- per maand (parkeren);
- Per direct beschikbaar.
Deze informatie is door ons met de nodige zorgvuldigheid samengesteld. Onzerzijds wordt echter geen enkele aansprakelijkheid aanvaard voor enige onvolledigheid, onjuistheid of anderszins, dan wel de gevolgen daarvan. Alle opgegeven maten en oppervlakten zijn indicatief. Alle verstrekte informatie moet beschouwd worden als een uitnodiging tot het doen van een aanbod of om in onderhandeling te treden.
*** English text ***
Living in the heart of Voorburg? An ideal, energy-efficient (Energy Label A+++) recently completed apartment with a living area of approximately 77 m², featuring a balcony, a parking space in the underground garage, and a (bicycle) storage room.
The Bernardus project is a new and trendy transformation project located in the center of Voorburg. The apartment has the look and feel of a loft apartment and is equipped with all modern conveniences, including its own heat recovery ventilation system (WTW) and solar panels. The apartment has an open layout with a modern open kitchen. It is fully fitted with a PVC floor with underfloor heating and double HR++ glazing. Additionally, there are two elevators in the central hall, and the apartment includes a private parking space for one car and a (bicycle) storage room.
Convenient Location:
For daily groceries, you can walk to the Julianabaan shopping center or visit the Huygenskwartier market on Saturdays. The bus stops right in front of the building and takes you within minutes to Voorburg NS and metro station or Laan van NOI station. You can also cycle or walk to these stations. By bus or tram, you can reach The Hague city center within 15 minutes. The N44, A12, and A4 highways are just 10 minutes away, and The Hague is easily accessible by car from Voorburg. Parking is available in the underground garage, and visitors can park near the shopping center or in the surrounding area.
Layout:
Entrance to the apartment complex at street level with doorbell panel and mailboxes. Elevator and/or stairs to the 2nd floor. Entrance to the apartment, located on the second residential level. The apartment has an open layout with a hallway leading to the living room with a modern open kitchen. The living room provides access to the balcony, which offers a beautiful view of the charming communal courtyard exclusively for residents.
There is one bedroom and a luxurious bathroom equipped with a spacious walk-in shower, designer radiator, washbasin with cabinet, and a floating toilet. Additionally, there is a separate laundry room with connections for a washing machine and dryer. This space also houses the heat pump system.
Worth knowing:
- Energy Label A+++;
- Hot water via heat pump; energy-neutral;
- Apartment built in 1993, fully renovated in 2023;
- Elevator available;
- Fiber optic internet available;
- Private parking space in the underground garage;
- Solar panels on the roof (property);
- VvE contribution €157,- per month (residential) and €41,- per month (parking);
- Immediately available.
The information provided has been compiled with care, however, no rights can be derived from its accuracy. All information provided should be considered an invitation to make an offer or to enter into negotiations.
Kenmerken
Overdracht
- Laatste vraagprijs
- € 425.000 kosten koper
- Vraagprijs per m²
- € 5.519
- Status
- Verkocht
- Bijdrage VvE
- € 234,00 per maand
Bouw
- Soort appartement
- Galerijflat (appartement)
- Soort bouw
- Bestaande bouw
- Bouwjaar
- 1993
- Soort dak
- Plat dak
Oppervlakten en inhoud
- Gebruiksoppervlakten
- Wonen
- 77 m²
- Gebouwgebonden buitenruimte
- 8 m²
- Externe bergruimte
- 2 m²
- Inhoud
- 257 m³
Indeling
- Aantal kamers
- 2 kamers (1 slaapkamer)
- Aantal badkamers
- 1 badkamer
- Badkamervoorzieningen
- Inloopdouche, toilet, wastafel, en wastafelmeubel
- Aantal woonlagen
- 1 woonlaag
- Voorzieningen
- Lift, mechanische ventilatie, en zonnepanelen
Energie
- Energielabel
- A+++
- Isolatie
- HR-glas en volledig geïsoleerd
- Verwarming
- Warmte terugwininstallatie en warmtepomp
- Warm water
- Centrale voorziening
Kadastrale gegevens
- VOORBURG E 9744
- Kadastrale kaart
- Eigendomssituatie
- Volle eigendom
Buitenruimte
- Ligging
- Aan rustige weg, in centrum en vrij uitzicht
- Balkon/dakterras
- Balkon aanwezig
Bergruimte
- Schuur/berging
- Box
Garage
- Soort garage
- Parkeerkelder
Parkeergelegenheid
- Soort parkeergelegenheid
- Op eigen terrein, openbaar parkeren en parkeergarage
VvE checklist
- Inschrijving KvK
- Ja
- Jaarlijkse vergadering
- Ja
- Periodieke bijdrage
- Ja (€ 234,00 per maand)
- Reservefonds aanwezig
- Ja
- Onderhoudsplan
- Nee
- Opstalverzekering
- Ja
Foto's 21
© 2001-2025 funda




















