Dit huis op Funda: https://www.funda.nl/detail/koop/voorburg/huis-soomerluststraat-1/43970165/

Omschrijving
Uniek aanbod op toplocatie!
Dit vrijstaande urban herenhuis biedt een zeldzame combinatie van ruimte, stijl en comfort op een centrale plek: klassiek gebouwd, uitstekend onderhouden en volledig instapklaar. Gelegen aan een rustige straat, met een zonnige tuin rondom: een groene oase van rust en privacy. De woning ademt sfeer en kwaliteit: De keuken en badkamer verkeren in topstaat, de muren en vloeren zijn goed geïsoleerd en de ligging biedt veel privacy. Kortom een huis om verliefd op te worden.
Ligging:
De locatie is ideaal. Rustig gelegen maar op steenworp afstand van NS-station Voorburg en station Laan van NOI en de sfeervolle Herenstraat van Voorburg, vol gezellige restaurants en speciaalzaken. Voor kinderen is er speelplezier te vinden bij Opa’s Veldje dat praktisch om de hoek ligt. Ook scholen zijn dichtbij: in dezelfde straat vindt u de Groen van Prinsterer basisschool. Kortom, dit huis is de perfecte keuze voor gezinnen die op zoek zijn naar ruimte en comfort! Bovendien gelegen dichtbij de uitvalswegen en openbaar vervoer.
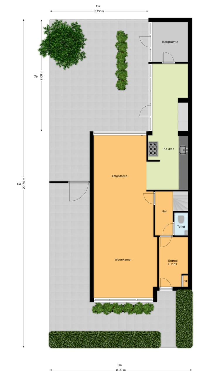
Indeling:
Via de entree betreed je een ruime hal met meterkast, gevolgd door een gang met trapopgang. Het moderne toilet is voorzien van een hoekfonteintje. De royale en lichte woon-eetkamer is voorzien van een zijraam en afgewerkt met een fraaie parketvloer. De keuken is ruim en licht, en uitgerust met een moderne keukeninrichting. Aangrenzend bevindt zich de praktische bijkeuken/berging met aansluiting voor de wasmachine en afvoer voor een droger.
Toegang tot de zonnige en ruime achtertuin middels de schuifpui, gelegen op het zuidwesten. De tuin biedt veel privacy en is bereikbaar via de zijkant van het huis. De achtertuin is tevens te bereiken vanuit de keuken en de bergruimte.
1e verdieping;
De ruime overloop met twee zijramen biedt toegang tot drie royale slaapkamers, stuk voor stuk voorzien van grote ramen die zorgen voor een fijne lichtinval en een gevoel van ruimte. De luxe, geheel betegelde badkamer beschikt over een regendouche, wandcloset en een dubbel wastafelmeubel. De slaapkamer aan de achterzijde is voorzien van een grote, ingebouwde kastenwand.
2e verdieping;
De ruime zolderkamer is omgetoverd tot een volwaardige vierde slaapkamer met een stijlvolle badkamer ensuite. Deze is voorzien van een wastafel, toilet en een luxe, vrijstaand ligbad – een heerlijke plek om tot rust te komen.
Het weten waard:
- Vrijstaande woning met voor,- zij- en achtertuin;
- Woonoppervlak van circa 150 m2;
- Perceeloppervlak van 203 m2;
- 4 slaapkamers;
- Bouwjaar 1934;
- Goed onderhouden en zo te betrekken;
- Wanden en plafonds gestuukt;
- Plafonds met halogeen inbouwspots;
- Gunstig gelegen nabij het oude Centrum;
- Scholen, winkels en openbaar vervoer in de directe omgeving.
Deze informatie is door ons met de nodige zorgvuldigheid samengesteld. Onzerzijds wordt echter geen enkele aansprakelijkheid aanvaard voor enige onvolledigheid, onjuistheid of anderszins, dan wel de gevolgen daarvan. Alle opgegeven maten en oppervlakten zijn indicatief. Alle verstrekte informatie moet beschouwd worden als een uitnodiging tot het doen van een aanbod of om in onderhandeling te treden.
Unique Opportunity in a Prime Location!
This detached urban townhouse offers a rare combination of space, style, and comfort in a central location: classically built, excellently maintained, and fully move-in ready. Situated on a quiet street with a sunny garden all around, it is a green oasis of peace and privacy.
The home exudes charm and quality: the kitchen and bathroom are in excellent condition, the walls and floors are well insulated, and the location offers a high degree of privacy. In short, a house to fall in love with.
Location:
The location is ideal—peaceful yet just a stone’s throw from Voorburg train station and Laan van NOI station, as well as the charming Herenstraat in Voorburg, full of cozy restaurants and specialty shops. For children, there’s fun to be had at Opa’s Veldje, which is practically around the corner. Schools are also nearby: the Groen van Prinsterer primary school is located on the same street. All in all, this home is the perfect choice for families seeking space and comfort! Additionally, it is conveniently located near major roads and public transport.
Layout:
Through the entrance, you step into a spacious hallway with a utility meter cupboard, followed by a corridor with stairs to the upper floor. The modern toilet includes a corner washbasin. The generous and bright living-dining room features a side window and is finished with a beautiful parquet floor. The kitchen is spacious and bright, equipped with a modern kitchen setup. Adjacent is a practical utility room/storage space with connections for a washing machine and a drain for a dryer.
Access to the sunny and spacious backyard is via sliding doors, facing southwest. The garden offers a great deal of privacy and can be reached via the side of the house. The backyard can also be accessed from the kitchen and the storage room.
First Floor:
The spacious landing with two side windows provides access to three generous bedrooms, each with large windows that allow in plenty of natural light and enhance the sense of space. The luxurious, fully tiled bathroom features a rain shower, wall-hung toilet, and a double vanity unit. The rear bedroom includes a large built-in wardrobe.
Second Floor:
The spacious attic room has been transformed into a fully-fledged fourth bedroom with a stylish en-suite bathroom. This includes a washbasin, toilet, and a luxurious freestanding bathtub – a wonderful place to relax.
Worth Noting:
- Detached home with front, side, and back garden;
- Living area of approximately 150 m²;
- Plot size of 203 m²;
- 4 bedrooms;
- Built in 1934;
- Well-maintained and ready to move into;
- Walls and ceilings plastered;
- Ceilings with recessed halogen lighting;
- Ideally located near the historic center;
- Schools, shops, and public transport in the immediate vicinity.
This information has been compiled with due care. However, we accept no liability for any incompleteness, inaccuracies, or other issues, nor for the consequences thereof. All stated measurements and areas are indicative. All provided information should be regarded as an invitation to make an offer or to enter into negotiations.
Kenmerken
Overdracht
- Laatste vraagprijs
- € 975.000 kosten koper
- Vraagprijs per m²
- € 6.457
- Status
- Verkocht
Bouw
- Soort woonhuis
- Herenhuis, vrijstaande woning
- Soort bouw
- Bestaande bouw
- Bouwjaar
- 1934
- Soort dak
- Zadeldak bedekt met pannen
Oppervlakten en inhoud
- Gebruiksoppervlakten
- Wonen
- 151 m²
- Perceel
- 203 m²
- Inhoud
- 450 m³
Indeling
- Aantal kamers
- 5 kamers (4 slaapkamers)
- Aantal badkamers
- 2 badkamers en 1 apart toilet
- Badkamervoorzieningen
- Dubbele wastafel, inloopdouche, 2 toiletten, ligbad, en wastafel
- Aantal woonlagen
- 3 woonlagen
- Voorzieningen
- Mechanische ventilatie en TV kabel
Energie
- Energielabel
- C
- Isolatie
- Dakisolatie, grotendeels dubbelglas en muurisolatie
- Verwarming
- Cv-ketel en mogelijkheid voor open haard
- Warm water
- Cv-ketel
- Cv-ketel
- REMEHA (gas gestookt combiketel uit 2019, eigendom)
Kadastrale gegevens
- VOORBURG F 6913
- Kadastrale kaart
- Oppervlakte
- 203 m²
- Eigendomssituatie
- Volle eigendom
Buitenruimte
- Ligging
- Aan rustige weg en in woonwijk
- Tuin
- Achtertuin, voortuin en zijtuin
- Achtertuin
- 44 m² (7,06 meter diep en 6,22 meter breed)
- Ligging tuin
- Gelegen op het zuidwesten bereikbaar via achterom
Bergruimte
- Schuur/berging
- Aangebouwde stenen berging
- Voorzieningen
- Stromend water
Parkeergelegenheid
- Soort parkeergelegenheid
- Openbaar parkeren en parkeervergunningen
Foto's 38
© 2001-2025 funda





































