
Omschrijving
Ben je op zoek naar een goed onderhouden en instapklare benedenwoning in Voorhout? Dan is Margrietstraat 38 precies wat je zoekt. Deze charmante woning beschikt over een moderne badkamer, een ruime woonkamer, en een zonnige voortuin.
Gelegen in het sfeervolle oude dorp van Voorhout, bevindt deze woning zich op loopafstand van supermarkten, winkels, restaurants en het NS-station van Voorhout. Daarnaast zijn de uitvalswegen richting Leiden, Amsterdam en Den Haag uitstekend bereikbaar.
Nieuwsgierig geworden? Neem snel contact met ons op om een afspraak in te plannen!
De indeling is als volgt:
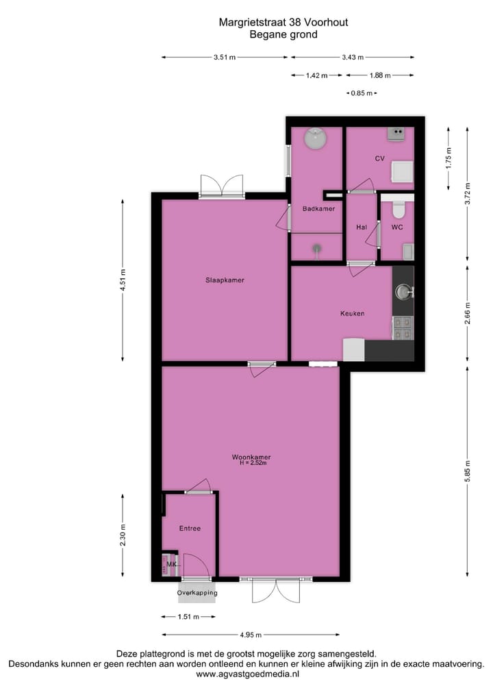
Via de royale, betegelde voortuin (gelegen op het zuidoosten) bereik je de entree van de woning. Direct bij binnenkomst tref je aan de linkerzijde de meterkast. De ruime woonkamer is modern afgewerkt en beschikt over grote raampartijen, inclusief openslaande deuren naar de voortuin, wat zorgt voor veel natuurlijk lichtinval.
Aansluitend bevindt zich de recent vernieuwde keuken, voorzien van diverse inbouwapparatuur zoals een gasfornuis, afzuigkap, oven en een vaatwasmachine. De keuken geeft toegang tot een hal die leidt naar een separaat toilet met fonteintje en een praktische berging met de cv-opstelling en extra aansluiting voor de wasmachine.
Aan de achterzijde van de woning bevindt zich de slaapkamer. Deze is toegankelijk via de woonkamer en beschikt over een inbouwkast met schuifdeuren en directe toegang tot de achterplaats. Vanuit de slaapkamer bereik je de moderne, recent vernieuwde badkamer, voorzien van een ruime douche met rainshower en handdouche, en een luxe wastafelmeubel.
Bijzonderheden:
-Moderne keuken en badkamer (recent vernieuwd)
·Ruime, zonnige voortuin op het zuidoosten
·Gelegen in het oude dorp van Voorhout
·Op loopafstand van openbaar vervoer en winkels
·VvE kosten: €80 per maand
·Ideaal voor starters of gelijkvloerse bewoning
Ten aanzien van de juistheid van de vermelde informatie kan door ons kantoor geen aansprakelijkheid worden aanvaard, noch kan aan de vermelde informatie enig recht worden ontleend.
Gebruiksoppervlakte wonen: De Meetinstructie is gebaseerd op de NEN2580. De Meetinstructie is bedoeld om een meer eenduidige manier van meten toe te passen voor het geven van een indicatie van de gebruiksoppervlakte. De Meetinstructie sluit verschillen in meetuitkomsten niet volledig uit, door bijvoorbeeld interpretatieverschillen, afrondingen of beperkingen bij het uitvoeren van de meting.
Kenmerken
Overdracht
- Laatste vraagprijs
- € 350.000 kosten koper
- Vraagprijs per m²
- € 5.147
- Status
- Verkocht
- Bijdrage VvE
- € 80,00 per maand
Bouw
- Soort appartement
- Benedenwoning (appartement)
- Soort bouw
- Bestaande bouw
- Bouwjaar
- 1977
- Soort dak
- Zadeldak bedekt met pannen
Oppervlakten en inhoud
- Gebruiksoppervlakten
- Wonen
- 68 m²
- Gebouwgebonden buitenruimte
- 1 m²
- Inhoud
- 245 m³
Indeling
- Aantal kamers
- 2 kamers (1 slaapkamer)
- Aantal badkamers
- 1 badkamer en 1 apart toilet
- Badkamervoorzieningen
- Douche en wastafelmeubel
- Aantal woonlagen
- 1 woonlaag
- Voorzieningen
- Buitenzonwering en TV kabel
- Gelegen op
- Begane grond
Energie
- Energielabel
- C
- Isolatie
- Dubbel glas en muurisolatie
- Verwarming
- Cv-ketel
- Warm water
- Cv-ketel
- Cv-ketel
- Nefit (gas gestookt combiketel uit 2013, eigendom)
Kadastrale gegevens
- VOORHOUT A 4343
- Kadastrale kaart
- Eigendomssituatie
- Volle eigendom
Buitenruimte
- Ligging
- In centrum en in woonwijk
- Tuin
- Achtertuin en voortuin
- Voortuin
- 22 m² (3,96 meter diep en 5,55 meter breed)
- Ligging tuin
- Gelegen op het zuidoosten
Parkeergelegenheid
- Soort parkeergelegenheid
- Openbaar parkeren
VvE checklist
- Inschrijving KvK
- Ja
- Jaarlijkse vergadering
- Ja
- Periodieke bijdrage
- Ja (€ 80,00 per maand)
- Reservefonds aanwezig
- Ja
- Onderhoudsplan
- Ja
- Opstalverzekering
- Ja
Foto's 32
© 2001-2025 funda































