Dit huis op Funda: https://www.funda.nl/detail/koop/waalre/huis-ekenrooisestraat-27/43286481/

Ekenrooisestraat 275583 TA WaalreEkenrooi
€ 525.000 k.k.
Omschrijving
Fraai gelegen in Ekenrooi Zuid een perfect onderhouden ruime eengezinswoning met overdekt terras, 4 slaapkamers, garage en veel privacy biedende tuin.
INDELING:
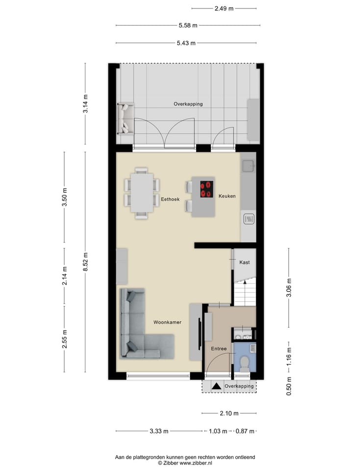
BEGANE GROND:
Ruime entree met meterkast en trapopgang naar eerste verdieping.
Luxe betegeld gastentoilet voorzien van een wandcloset en fonteintje.
Ruime woonkamer verdeelt in een zitgedeelte aan de straatzijde en een eetgedeelte aan de achterzijde en dichtbij de fraaie keuken.
Vanuit de woonkamer heeft men toegang tot een ruime provisiekast.
Het eetgedeelte heeft middels openslaande tuindeuren optimaal contact met het overdekt terras en de achtertuin.
De open keuken is in 2022 volledig gemoderniseerd en is zonder meer eigentijds te noemen.
De luxe keukeninrichting bestaat uit voldoende kastruimte en een kookeiland alsmede ingebouwde inductie kookplaat met ingebouwde afzuiging, koelkast, diepvries, combi magnetron en vaatwasser.
N.B. Gehele parterre voorzien van tegelvloer (houtlook) en vloerverwarming.
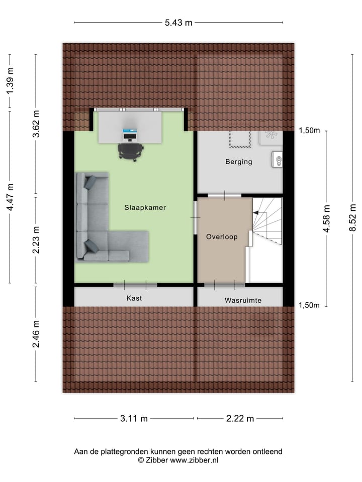
EERSTE VERDIEPING:
Ruime overloop afgewerkt met een laminaatvloer..
Drie ruime zeer bruikbare slaapkamers, allen voorzien van praktische laminaatvloer.
De badkamer is groot en gemoderniseerd en is voorzien van een ligbad, separate douchegelegenheid, vaste wastafel met bijpassend meubel, decorradiator en een 2e wandcloset.
TWEEDE VERDIEPING:
Via vaste trap te bereiken voorzolder.
Vanuit de voorzolder heeft men toegang tot een aparte wasruimte en een aparte cv. bergruimte afgewerkt met een later aangebracht dakvenster voor de nodige daglicht toetreding. De cv. installatie is dit jaar vernieuwd en bestaat uit HR. combiketel. Tevens is er een praktisch uitstortbak aangebracht.
De vierde slaapkamer is een typische ruime zolder/tienerkamer met een dakkapel en de nodige ingebouwde bergruimte. Ook deze kamer is voorzien van een laminaatvloer.
DERDE VERDIEPING:
Praktische bergruimte door middel van vlizotrappen te bereiken.
BUITEN:
In 2022 heeft de eigenaar een veranda aangebracht met een licht doorlatend dak.
Ruim bestraat zonneterras en veel privacy biedende achtertuin met achterom.
De ruime garage is voorzien van elektra en een roldeur alsmede een loopdeur.
ALGEMEEN:
* Bouwjaar 1978.
* Woonhuis geheel voorzien van kunststof kozijnen met isolatieglas.
* Energielabel A.
* Woonhuis heeft 12 zonnepanelen.
* Het geheel verkeert in perfecte staat van onderhoud en is met recht instap klaar te noemen.
* Gelegen op korte afstand van basisscholen, winkelcentra, centrum Eindhoven, ASML, MMC, openbaar vervoer
en het landelijk wegennet.
* Tot zekerheid voor de nakoming van de verplichtingen dient de kopende partij, binnen de afgesproken termijn na het tot stand komen van de koopovereenkomst, een waarborgsom (10 % van de koopsom) te storten bij de notaris. Het is de kopende partij ook toegestaan een bankgarantie te stellen bij een Nederlandse bankinstelling ter grootte van dit bedrag;
* De woning is zorgvuldig professioneel ingemeten. De Meetinstructie is gebaseerd op de NEN2580. De Meetinstructie is bedoeld om een meer eenduidige manier van meten toe te passen voor het geven van een indicatie van de gebruiksoppervlakte. De Meetinstructie sluit verschillen in meetuitkomsten niet volledig uit, door bijvoorbeeld interpretatieverschillen, afrondingen of beperkingen bij het uitvoeren van de meting.
* Verkoopprocedure: Voor informatie over deze woning kunt u contact opnemen met van Engelen de Wilde Makelaars. Na mondelinge overeenstemming wordt er door partijen een koopovereenkomst getekend. In tegenstelling tot de situatie vóór 1 september 2003 is de koop van een woning (door een consument) pas gesloten als de koopovereenkomst door koper en verkoper is ondertekend. Tot die tijd is er geen rechtsgeldige koop. Dit is door meerdere gerechtshoven bevestigd; indien een koopovereenkomst ten aanzien van een woning niet schriftelijk wordt vastgelegd conform artikel 7:2 BW, is de sanctie nietigheid.
* Deze informatie is door ons met de nodige zorgvuldigheid samengesteld. Onzerzijds wordt echter geen enkele aansprakelijkheid aanvaard voor enige onvolledigheid, onjuistheid of anderszins, dan wel de gevolgen daarvan. Alle opgegeven maten en oppervlakten zijn indicatief. Van toepassing zijn de NVM voorwaarden.
Wij nodigen u graag uit om te komen kijken!
Kenmerken
Overdracht
- Aangeboden sinds
- Aanvaarding
- In overleg
- Vraagprijs
- € 525.000 kosten koper
- Vraagprijs per m²
- € 4.412
- Status
- Beschikbaar
Bouw
- Soort woonhuis
- Eengezinswoning, tussenwoning
- Soort bouw
- Bestaande bouw
- Bouwjaar
- 1978
- Soort dak
- Zadeldak bedekt met pannen
Oppervlakten en inhoud
- Gebruiksoppervlakten
- Wonen
- 119 m²
- Gebouwgebonden buitenruimte
- 18 m²
- Externe bergruimte
- 20 m²
- Perceel
- 162 m²
- Inhoud
- 420 m³
Indeling
- Aantal kamers
- 5 kamers (4 slaapkamers)
- Aantal badkamers
- 1 badkamer en 1 apart toilet
- Badkamervoorzieningen
- Douche, ligbad, toilet, wastafel, en wastafelmeubel
- Aantal woonlagen
- 3 woonlagen en een zolder
- Voorzieningen
- Glasvezelkabel en zonnepanelen
Energie
- Energielabel
- A
- Isolatie
- Dakisolatie, dubbel glas, muurisolatie en vloerisolatie
- Verwarming
- Cv-ketel en gedeeltelijke vloerverwarming
- Warm water
- Cv-ketel
- Cv-ketel
- Remeha Avanta Ace (gas gestookt combiketel uit 2025, eigendom)
Kadastrale gegevens
- AALST (N.B.) C 1219
- Kadastrale kaart
- Oppervlakte
- 162 m²
- Eigendomssituatie
- Volle eigendom
Buitenruimte
- Ligging
- Aan rustige weg, in bosrijke omgeving en in woonwijk
- Tuin
- Achtertuin, voortuin en zonneterras
- Achtertuin
- 102 m² (17,00 meter diep en 6,00 meter breed)
- Ligging tuin
- Gelegen op het noorden bereikbaar via achterom
Garage
- Soort garage
- Vrijstaande stenen garage
- Capaciteit
- 1 auto
- Voorzieningen
- Elektra
Parkeergelegenheid
- Soort parkeergelegenheid
- Openbaar parkeren
Foto's 34
© 2001-2025 funda

































