
Omschrijving
LOEFF l WAALWIJK
LOEFF ligt aan de Loeffstraat (vandaar de naam) aan de noordoostkant van Waalwijk, in Baardwijk. Lokaal ook wel Bork genoemd (of Borrek op z’n Brabants). Het is een stukje Waalwijk met geschiedenis. Dat zie je meteen aan de monumentale huizen in de omgeving.
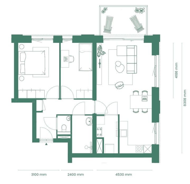
Een fraai blokje grenzend aan de kerktuin, met een tuin of zonnig balkon. De appartementen hebben een woonoppervlak van circa 74 of 90 m2 en een berging op de begane grond. Met twee slaapkamers en voorzieningen binnen handbereik een heerlijk appartement.
• Woonoppervlakte circa 74 of 90 m2
• De bnrs 33 en 34 hebben een tuin van 33 m2
• Balkon op het noorden, zuiden of westen
• Toegang tot balkon met schuifpui
• Parkeren in openbaar gebied
• Gasloos en met comfortabele vloerverwarming
• Energielabel A+++
• Separaat toilet
• Badkamer met douche en wastafel
• Complete keuken, voorzien van vijf Etna apparaten
Kenmerken
Overdracht
- Aangeboden sinds
- Aanvaarding
- In overleg
- Vraagprijs
- € 399.000 vrij op naam
- Vraagprijs per m²
- € 5.392
- Status
- Verkocht onder voorbehoud
Bouw
- Soort appartement
- Portiekflat
- Soort bouw
- Nieuwbouw
- Bouwjaar
- 2026
- Soort dak
- Plat dak
- Keurmerken
- SWK Garantiecertificaat
Oppervlakten en inhoud
- Gebruiksoppervlakten
- Wonen
- 74 m²
- Gebouwgebonden buitenruimte
- 8 m²
- Externe bergruimte
- 6 m²
- Inhoud
- 192 m³
Indeling
- Aantal kamers
- 3 kamers (2 slaapkamers)
- Aantal badkamers
- 1 badkamer en 1 apart toilet
- Badkamervoorzieningen
- Douche en wastafelmeubel
- Aantal woonlagen
- 1 woonlaag
- Voorzieningen
- Glasvezelkabel, lift, mechanische ventilatie, schuifpui, en TV kabel
- Gelegen op
- 1e woonlaag
Energie
- Energielabel
- Isolatie
- Dubbel glas en volledig geïsoleerd
- Verwarming
- Gehele vloerverwarming en warmtepomp
- Warm water
- Elektrische boiler
Kadastrale gegevens
- WAALWIJK G 1754
- Kadastrale kaart
- Eigendomssituatie
- Volle eigendom
Buitenruimte
- Ligging
- In woonwijk
- Tuin
- Zonneterras
Bergruimte
- Schuur/berging
- Inpandig
- Voorzieningen
- Elektra
- Isolatie
- Geen isolatie
Parkeergelegenheid
- Soort parkeergelegenheid
- Openbaar parkeren
Foto's 7
© 2001-2026 funda






