
Mgr. Bekkersstraat 625146 DV WaalwijkLandgoed Driessen
€ 409.500 k.k.
BlikvangerFrisse, energiezuinige woning op een toplocatie!
Omschrijving
Ben jij op zoek naar een frisse, energiezuinige woning op een toplocatie?
In het jonge en populaire Landgoed Driessen staat deze instapklare tussenwoning uit 2010 te wachten op een nieuwe bewoner. Modern, praktisch én gelegen in een rustige, groene omgeving waar alle dagelijkse voorzieningen verrassend dichtbij zijn. Dankzij de 9 zonnepanelen woon je hier bovendien extra energiezuinig.
Indeling
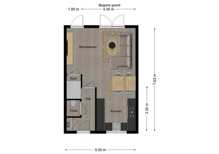
Begane grond
Je komt binnen in de hal met toilet en meterkast. Vanuit hier stap je de lichte woonkamer binnen, een fijne leefruimte met plek voor een grote eettafel en een gezellige zithoek. Aan de voorzijde bevindt zich de open keuken, voorzien van alle benodigde inbouwapparatuur en een logische, moderne opstelling. Vanuit de woonkamer heb je direct toegang tot de achtertuin.
Eerste verdieping
Op de eerste verdieping vind je twee ruime, prettig lichte slaapkamers en een complete badkamer. De badkamer is stijlvol ingericht met een royale inloopdouche, een modern wastafelmeubel en een tweede toilet helemaal klaar voor dagelijks comfort.
Tweede verdieping
De tweede verdieping biedt een ruime voorzolder met aansluitingen voor wasapparatuur en de opstelplaats van de HR-combiketel. Daarnaast vind je hier een volwaardige derde slaapkamer. Extra bergruimte is aanwezig op de praktische bergvliering boven deze verdieping.
Tuin, berging & overkapping
De achtertuin is verzorgd aangelegd en biedt volop privacy. Achter op het perceel staat een gezellige overkapping de ideale plek om het hele jaar door buiten te zitten of vrienden te ontvangen. De vrijstaande houten berging is perfect voor fietsen en extra opslag. De tuin is bereikbaar via een handige achterom.
Locatie
Landgoed Driessen is een geliefde en kindvriendelijke woonwijk met veel groen, speelplekken en een fijne leefomgeving. Scholen, winkels en sportvoorzieningen liggen op korte afstand. Dankzij de ligging nabij de A59 ben je zo in Tilburg of ’s-Hertogenbosch, en voor ontspanning zijn er mooie fiets- en wandelroutes zoals het Halve Zolenpad.
Koopgarant – extra aantrekkelijk voor starters
Deze woning wordt aangeboden via de Koopgarant-regeling, een unieke kans voor starters die betaalbaar en verantwoord willen kopen. Dankzij de lagere instapprijs wordt het financiële plaatje een stuk toegankelijker, terwijl je toch volledig het woongenot van een eigen woning ervaart. De regeling biedt daarnaast zekerheid en duidelijkheid over terugkoop en waardeverdeling. Kortom: een ideale manier om de woningmarkt binnen te stappen met minder risico en meer kansen.
Belangrijkste kenmerken:
• Verzorgde tussenwoning met tuin, berging en overkapping achter op het perceel
• Bouwjaar 2010
• Energielabel A+ - volledig geïsoleerd, uitgerust met HR++ beglazing en 9 zonnepanelen
• Koopgarant-regeling van toepassing (informatie via ons kantoor)
• Oplevering: 2 februari 2026
Kenmerken
Overdracht
- Aangeboden sinds
- Aanvaarding
- In overleg
- Vraagprijs
- € 409.500 kosten koper
- Vraagprijs per m²
- € 4.015
- Status
- Beschikbaar
Bouw
- Soort woonhuis
- Eengezinswoning, tussenwoning
- Soort bouw
- Bestaande bouw
- Bouwjaar
- 2010
- Soort dak
- Zadeldak bedekt met pannen
- Keurmerken
- Energie Prestatie Advies
Oppervlakten en inhoud
- Gebruiksoppervlakten
- Wonen
- 102 m²
- Externe bergruimte
- 7 m²
- Perceel
- 108 m²
- Inhoud
- 355 m³
Indeling
- Aantal kamers
- 4 kamers (3 slaapkamers)
- Aantal badkamers
- 1 badkamer en 1 apart toilet
- Badkamervoorzieningen
- Inloopdouche, toilet, en wastafelmeubel
- Aantal woonlagen
- 3 woonlagen
- Voorzieningen
- Dakraam, glasvezelkabel, mechanische ventilatie, natuurlijke ventilatie, en zonnepanelen
Energie
- Energielabel
- A+
- Isolatie
- Volledig geïsoleerd
- Verwarming
- Cv-ketel
- Warm water
- Cv-ketel
- Cv-ketel
- Remeha (gas gestookt combiketel uit 2010, eigendom)
Kadastrale gegevens
- WAALWIJK C 2097
- Kadastrale kaart
- Oppervlakte
- 108 m²
Buitenruimte
- Ligging
- In woonwijk en vrij uitzicht
- Tuin
- Achtertuin
- Achtertuin
- 60 m² (12,00 meter diep en 5,00 meter breed)
- Ligging tuin
- Gelegen op het westen bereikbaar via achterom
Bergruimte
- Schuur/berging
- Vrijstaande houten berging
- Voorzieningen
- Elektra
Parkeergelegenheid
- Soort parkeergelegenheid
- Openbaar parkeren
Foto's 30
© 2001-2025 funda





























