Dit huis op Funda: https://www.funda.nl/detail/koop/waalwijk/huis-type-a-bouwnr-14/43066902/

Type A (Bouwnr. 14)5142 EP WaalwijkBaardwijk
€ 525.000 v.o.n.
Omschrijving
LOEFF l WAALWIJK
LOEFF ligt aan de Loeffstraat (vandaar de naam) aan de noordoostkant van Waalwijk, in Baardwijk. Lokaal ook wel Bork genoemd (of Borrek op z’n Brabants). Het is een stukje Waalwijk met geschiedenis. Dat zie je meteen aan de monumentale huizen in de omgeving.
Deze bijzonder riante gezinswoning vind je aan de Winterdijk in LOEFF.
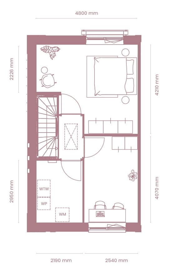
Een woning met vier lagen en vier slaapkamers, waar vind je dat nog. Op de begane grond een fijne woonkeuken van 30 m2 die aansluit op de tuin. Op de eerste verdieping tref je een ruime woonkamer aan van ongeveer 36 m2. Op de derde verdieping bevinden zich twee slaapkamers en de badkamer. Op de vierde verdieping tref je de ouderslaapkamer met ruimte voor een mooie inloopkast, de vierde slaap- of werkkamer en de technische ruimte.
De woning heeft een tuin op het zuiden en ligt aan een rustig straatje. Vind je het
leuk om je voortuin bij je woning te betrekken? Dat zet je gewoon de loopdeur open.
• Woonoppervlakte woning: 158 m2
• Kaveloppervlakte tussen 109 en 171m2 (bnr 32)
• Tuin op het zuiden
• Riante woonkeuken van circa 30 m2
• Aparte, zonnige woonkamer
• Een eigen parkeerplaats voor de woning
• Vier slaapkamers
• Badkamer met douche, wastafel en tweede toilet
• Gasloos en met comfortabele vloerverwarming
• Energielabel A+++
• Luxe afgewerkt met mooi sanitair
• Complete keuken, voorzien van vier Siemens apparaten waaronder een inductiekookplaat met afzuigsysteem en een granieten aanrechtblad
*Gemeten conform NEN 2580
Kenmerken
Overdracht
- Aangeboden sinds
- Aanvaarding
- In overleg
- Vraagprijs
- € 525.000 vrij op naam
- Vraagprijs per m²
- € 3.323
- Status
- Beschikbaar
Bouw
- Soort woonhuis
- Eengezinswoning, eindwoning
- Soort bouw
- Nieuwbouw
- Bouwjaar
- 2026
- Keurmerken
- SWK Garantiecertificaat
Oppervlakten en inhoud
- Gebruiksoppervlakten
- Wonen
- 158 m²
- Externe bergruimte
- 6 m²
- Perceel
- 117 m²
- Inhoud
- 411 m³
Indeling
- Aantal kamers
- 5 kamers (4 slaapkamers)
- Aantal badkamers
- 1 badkamer en 1 apart toilet
- Badkamervoorzieningen
- Douche, toilet, vloerverwarming, wastafel, en wastafelmeubel
- Aantal woonlagen
- 3 woonlagen
- Voorzieningen
- Glasvezelkabel, mechanische ventilatie, schuifpui, en TV kabel
Energie
- Energielabel
- Isolatie
- Dubbel glas en volledig geïsoleerd
- Verwarming
- Gedeeltelijke vloerverwarming en gehele vloerverwarming
- Warm water
- Elektrische boiler
Kadastrale gegevens
- WAALWIJK
- Kadastrale kaart
- Oppervlakte
- 117 m²
Buitenruimte
- Ligging
- In woonwijk
- Tuin
- Achtertuin
- Achtertuin
- 68 m² (13,00 meter diep en 5,20 meter breed)
Bergruimte
- Schuur/berging
- Vrijstaande houten berging
- Voorzieningen
- Elektra
- Isolatie
- Geen isolatie
Parkeergelegenheid
- Soort parkeergelegenheid
- Op eigen terrein en openbaar parkeren
Foto's 10
© 2001-2026 funda









