
Omschrijving
Klinkt neerstrijken in een (kind)vriendelijke wijk tussen het groen en vlak bij allerlei fijne voorzieningen jou als muziek in de oren? Dan zingen we graag nog een toontje hoger. Deze leuke (geschakelde) woning is met zijn praktische woonkamer, vier slaapkamers, een ruime tuin en een heus dakterras een echte aanrader. Ideaal voor (jonge) samenwoners, (prille) gezinnen of fitte senioren.
Wonen in Landgoed Driessen is het beste van twee werelden beleven. Thuis vind je rust en ruimte in de vorm van groene straten en bijvoorbeeld het slagenlandschap. Een kleine tien autominuten verderop ligt het centrum van Waalwijk. Hier eet je een hapje, drink je een drankje of shop je een nieuwe aanwinst voor in je kast.
Maken de foto’s je nieuwsgierig? Begrijpelijk! Maak vandaag nog een afspraak voor een vrijblijvende bezichtiging. Wij leiden je graag rond en beantwoorden daarbij met plezier al je vragen.
De bijzonderheden:
• Ruime en praktische geschakelde woning met vrij uitzicht aan de voorzijde gelegen in een rustige straat
• Dicht bij scholen, kinderdagverblijf, sportvelden en uitvalswegen
• Eigen parkeerplaats in parkeerkoffer
• Goed functionerende keuken
• 3 slaapkamers eerste verdieping
• Ouderslaapkamer met Frans balkon
• Separaat toilet eerste verdieping
• Nette badkamer
• 1 slaapkamer tweede verdieping (waarvan deel bergruimte/inloopkast)
• Ruime separate technische ruimte voor wasapparatuur, cv-ketel en mechanische ventilatie
• Mooie tuin met houten schuur
• Volledig voorzien van dubbel glas
• Volledig voorzien van houten kozijnen
• CV-ketel: Intergas, bj: 2022
• Energielabel A
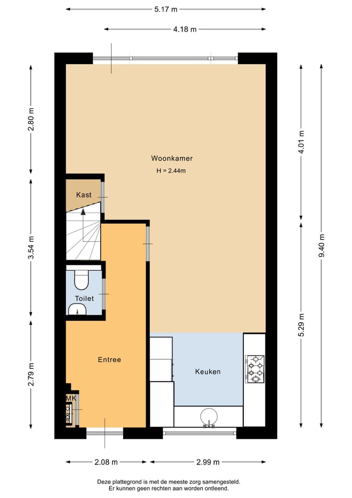
Dit familiehuis is zowel ruim als praktisch. En dat begint al bij de hal. Hier vind je de trapopgang naar de eerste verdieping, de meterkast, de toiletruimte en de deur naar de woonkamer. En hoe handig is het, dat je in deze hal met gemak ook de kinderwagen parkeert. Of die racefiets. Fijn!
De woonkamer, voorzien van een massieve eikenhoutenvloer, is een lichte ruimte met een fijne sfeer. De keuken ligt aan de voorzijde en bestaat uit een 5-pits gaskookplaat, afzuigkap, vaatwasser, koelkast met vriesladen, combi-magnetron, spoelbak en veel opbergruimte.
Met het eetgedeelte zo naast de keuken gelegen, is samen koken, tafelen, kletsen en eten extra gezellig. Het zitgedeelte ligt aan de achterzijde. De bank zet je daar waar je het fijn zitten vindt. Het uitzicht is sowieso je eigen tuin.
Aan de overloop van de eerste verdieping grenzen drie slaapkamers, de badkamer en een separaat toilet (fijn!). De ouderslaapkamer, gelegen aan de voorzijde, is een riante slaapkamer. Deze kamer ligt op het zuiden en is voorzien van een charmant Frans balkon. De andere twee slaapkamers liggen aan de achterzijde. De badkamer is opgedeeld in een wastafel, een douchecabine én een ligbad.
De tweede verdieping, bereikbaar via een vaste trap, bestaat uit een overloop, een ruime slaapkamer, en een aparte technische ruimte. Op de overloop vind je een loopdeur naar het dakterras. Hier geniet je in de zomer heerlijk van de avondzon. De slaapkamer is zo ruim dat je hier zelfs twee (slaap)kamers van zou kunnen maken. Hoeft natuurlijk niet, maar wel fijn om te weten dat de mogelijkheid er is. In de aparte technische ruimte vind je de aansluiting van de wasapparatuur, de mechanische ventilatie en de jonge cv-ketel.
De tuin is er eentje met vele mogelijkheden. Wat je ziet is een terras aan de voor- en achterzijde van de tuin, speelse plantenborders, gazon, een fris geschilderde houten berging en een achterom. Je kunt nog alle kanten op met deze vierkante meters. Wat te denken van een uitbouw van de woonkamer? Een veranda? Een trampoline ingraven? Een speeltoestel voor de kinderen? Opties genoeg! Hoewel de tuin op het noorden ligt, geniet je in het voorjaar aan de achterzijde van de tuin al van de zon en in de zomer bereikt de zon in de namiddag het terras gelegen aan de woning.
De ligging van de woning:
Villa Fonteinkruid 41 ligt in de kindvriendelijke wijk Landgoed Driessen waar werkelijk alles op loop- en fietsafstand ligt, zoals: basisscholen (twee), gezondheidscentrum, sportvelden en een middelbare school (scholengemeenschap voor zowel vmbo, als havo en vwo). De wijk wordt gekenmerkt door de ruime opzet, het vele groen en de mooie natuurspeeltuinen. Het gezellige centrum van Waalwijk met diverse winkels is op slechts tien minuten fietsen bereikbaar. De uitvalswegen naar Den Bosch, Tilburg en Breda bereik je dankzij de N261 binnen enkele minuten.
Kenmerken
Overdracht
- Laatste vraagprijs
- € 450.000 kosten koper
- Vraagprijs per m²
- € 3.435
- Status
- Verkocht
Bouw
- Soort woonhuis
- Eengezinswoning, geschakelde woning
- Soort bouw
- Bestaande bouw
- Bouwjaar
- 2003
- Soort dak
- Plat dak bedekt met bitumineuze dakbedekking
Oppervlakten en inhoud
- Gebruiksoppervlakten
- Wonen
- 131 m²
- Gebouwgebonden buitenruimte
- 12 m²
- Externe bergruimte
- 9 m²
- Perceel
- 159 m²
- Inhoud
- 431 m³
Indeling
- Aantal kamers
- 5 kamers (4 slaapkamers)
- Aantal badkamers
- 1 badkamer en 2 aparte toiletten
- Badkamervoorzieningen
- Douche, ligbad, en wastafel
- Aantal woonlagen
- 3 woonlagen
- Voorzieningen
- Glasvezelkabel, mechanische ventilatie, natuurlijke ventilatie, en TV kabel
Energie
- Energielabel
- A
- Isolatie
- HR-glas en volledig geïsoleerd
- Verwarming
- Cv-ketel
- Warm water
- Cv-ketel
- Cv-ketel
- Intergas (gas gestookt combiketel uit 2022, eigendom)
Kadastrale gegevens
- SPRANG C 1272
- Kadastrale kaart
- Oppervlakte
- 130 m²
- Eigendomssituatie
- Volle eigendom
- SPRANG C 1279
- Kadastrale kaart
- Oppervlakte
- 17 m²
- Eigendomssituatie
- Volle eigendom
- SPRANG C 1285
- Kadastrale kaart
- Oppervlakte
- 9 m² (deelperceel)
- Eigendomssituatie
- Volle eigendom
- SPRANG C 1291
- Kadastrale kaart
- Oppervlakte
- 3 m² (deelperceel)
- Eigendomssituatie
- Volle eigendom
Buitenruimte
- Ligging
- Aan rustige weg en in woonwijk
- Tuin
- Achtertuin en voortuin
- Balkon/dakterras
- Dakterras aanwezig
Bergruimte
- Schuur/berging
- Vrijstaande houten berging
Garage
- Soort garage
- Parkeerplaats
Parkeergelegenheid
- Soort parkeergelegenheid
- Op afgesloten terrein en openbaar parkeren
Foto's 38
© 2001-2025 funda





































