
BlikvangerUitgebouwde woning, energielabel A, luxe moderne keuken!
Omschrijving
Aan de rand van de woonwijk Noord-West, vlakbij het Binnenveld gelegen, staat deze goed onderhouden uitgebouwde ruime middenwoning. Een fijne plek voor gezinnen die graag groen en kindvriendelijk wonen. Met in totaal vijf (slaap)kamers, verdeeld over twee verdiepingen, is er genoeg plek voor het hele gezin. Op de 2e verdieping is een dakkapel gerealiseerd waardoor ook daar veel ruimte aanwezig is. Verder heeft het woonhuis een vrijstaande stenen berging en een verzorgde achtertuin.
De wijk Noord-West is een mooie, ruim opgezette, kindvriendelijke woonwijk die nagenoeg alle voorzieningen binnen handbereik heeft. Er zijn speeltuinen, basisscholen, kinderopvang, sportclubs en een kleinschalig winkelcentrum in de wijk aanwezig.
Op de fiets ben je binnen 10 minuten in het gezellige centrum van Wageningen en ook de Campus van Wageningen Universiteit is binnen 10 fietsminuten bereikbaar.
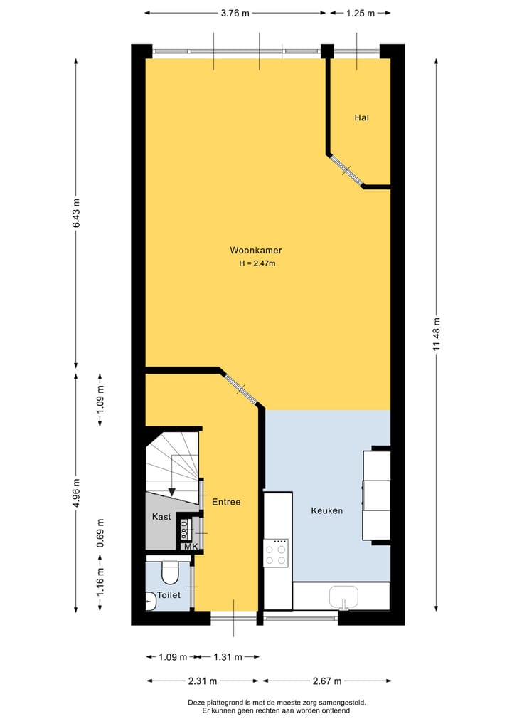
Indeling:
Begane grond: Overdekte entree; gang; toiletruimte (verbouwd in 2018) met wandcloset, fonteintje en raam; meterkast (7 groepen en aardlekschakelaar en warmtewisselaar); trapkast; garderobenis; uitgebouwde woonkamer met houten vloer gedeeltelijk voorzien van vloerverwarming (uitbouw), dubbele openslaande deuren naar de tuin en tussenhal; half open keuken (vernieuwd in 2023) uitgevoerd in een lichte kleurstelling in L-vormige opstelling met rechte opstelling en voorzien van inductiekookplaat met geïntegreerd afzuigsysteem, vaatwasser, combi oven, koelkast en granieten aanrechtblad.
1e verdieping: Overloop; slaapkamer I; slaapkamer II; slaapkamer III; badkamer met raam en betegeld tot aan het plafond en voorzien van wastafelmeubel met dubbele wastafel (2018), design-radiator, wandcloset en inloopdouche met drain.
2e verdieping: Voorzolder/slaapkamer met aansluiting voor de was-apparatuur, wastafel en veel ramen; slaapkamer IV met dakkapel; via luik te bereiken vliering.
Bijzonderheden:
- de woning is op de begane grond aan de achterzijde uitgebouwd;
- in de uitbouw van de woonkamer is vloerverwarming aanwezig;
- de uitbouw is voorzien van een sedum dak;
- een gerenommeerd keukenbedrijf heeft in 2023 de keuken vernieuwd met hoogwaardige merkapparatuur;
- de 2e verdieping is voorzien van een dakkapel;
- achtertuin gelegen op het noordwesten met stenen berging;
- verwarming en warmwater voorziening via stadsverwarming;
- inhoud circa 421 m³;
- perceeloppervlakte 154 m²;
- energielabel A, geldig tot 2030.
*** Deze sfeervolle woning is uitgebouwd en afgewerkt in lichte kleurstelling. De tuin is dermate gesitueerd dat u vrijwel de hele dag kunt genieten van de zon ***
Aanvaarding in overleg.
Kenmerken
Overdracht
- Aangeboden sinds
- Aanvaarding
- In overleg
- Vraagprijs
- € 519.000 kosten koper
- Vraagprijs per m²
- € 4.289
- Status
- Verkocht onder voorbehoud
Bouw
- Soort woonhuis
- Eengezinswoning, tussenwoning
- Soort bouw
- Bestaande bouw
- Bouwjaar
- 1996
- Soort dak
- Lessenaardak bedekt met pannen
- Keurmerken
- Energie Prestatie Advies
Oppervlakten en inhoud
- Gebruiksoppervlakten
- Wonen
- 121 m²
- Externe bergruimte
- 17 m²
- Perceel
- 154 m²
- Inhoud
- 421 m³
Indeling
- Aantal kamers
- 5 kamers (4 slaapkamers)
- Aantal badkamers
- 1 badkamer en 1 apart toilet
- Badkamervoorzieningen
- Dubbele wastafel, inloopdouche, toilet, en wastafelmeubel
- Aantal woonlagen
- 3 woonlagen
- Voorzieningen
- Glasvezelkabel en mechanische ventilatie
Energie
- Energielabel
- A
- Isolatie
- Volledig geïsoleerd
- Verwarming
- Stadsverwarming en gedeeltelijke vloerverwarming
- Warm water
- Centrale voorziening
Kadastrale gegevens
- WAGENINGEN A 1653
- Kadastrale kaart
- Oppervlakte
- 154 m²
- Eigendomssituatie
- Volle eigendom
Buitenruimte
- Ligging
- Aan rustige weg en in woonwijk
- Tuin
- Achtertuin en voortuin
- Achtertuin
- 105 m² (15,00 meter diep en 7,00 meter breed)
- Ligging tuin
- Gelegen op het noordwesten bereikbaar via achterom
Bergruimte
- Schuur/berging
- Vrijstaande stenen berging
- Voorzieningen
- Elektra
Parkeergelegenheid
- Soort parkeergelegenheid
- Openbaar parkeren
Foto's 50
Plattegronden 6
© 2001-2025 funda























































