Dit huis op Funda: https://www.funda.nl/detail/koop/warnsveld/huis-lammerhof-24/43872670/

Omschrijving
Uitstekend ten opzichte van basisscholen, wijkwinkelcentrum "Dreiumme", sportvoorzieningen en het prachtige groene buitengebied, gelegen TUSSENWONING (1981) met 3 slaapkamers en een prachtige veranda en als klap op de vuurpijl parkeren op eigen terrein!
Indeling
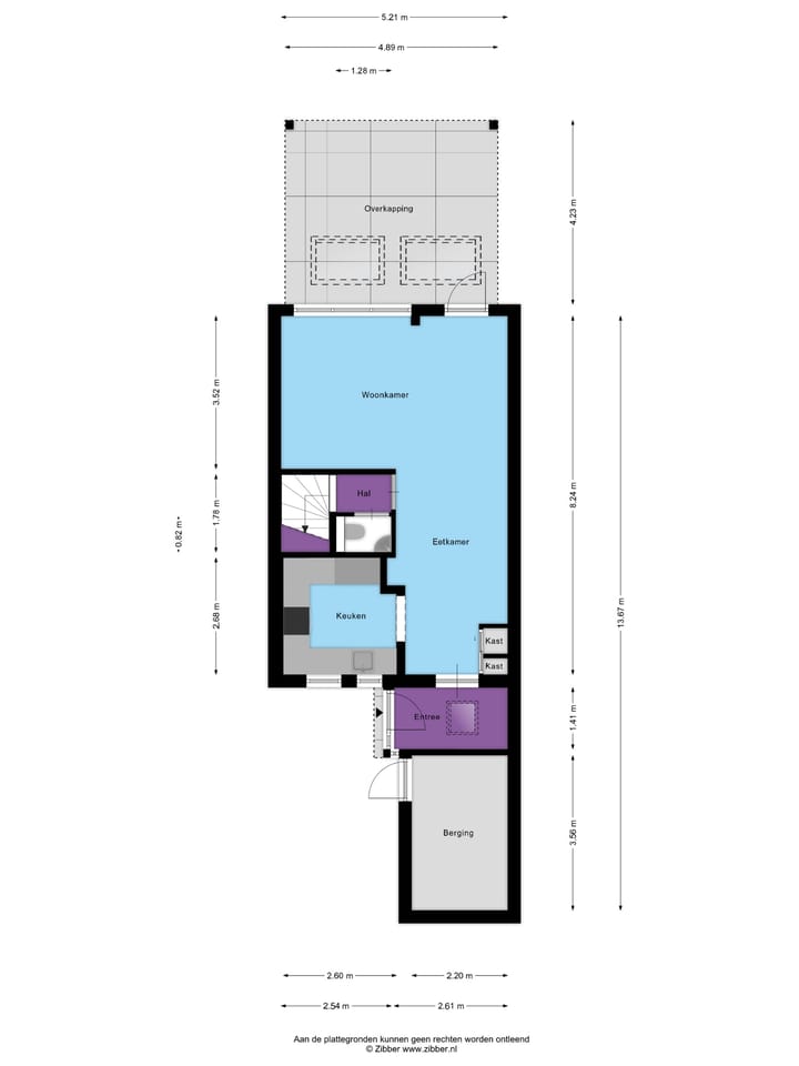
Begane grond: entree, uitgebouwde hal/tochtportaal, L-vormige woonkamer voorzien van airco en deur naar de op het westen gelegen achtertuin met grote degelijk gebouwde veranda. Half open keuken voorzien van een luxe, recent geplaatste (2023) strakke inrichting in U-opstelling met een inductiekookplaat, afzuigkap, combi-oven, vaatwasser, koel-vriescombinatie en heetwaterkraan. Hal met toiletruimte voorzien van hangend toilet en fonteintje, trap naar de 1e verdieping.
1e Verdieping: overloop, royale ouderslaapkamer (ca. 15 m²) bestaande uit slaapgedeelte en door koper in te vullen ruimte (ca. 5 m²) voor bijvoorbeeld thuiswerken of een grote walk-in closet, 2e slaapkamer van circa 10 m² , "hotel chique" badkamer uitgevoerd in modern en warm kleurenpallet met inloopdouche, wastafelmeubel, verwarmde spiegel, (hangend)toilet, urinoir en vloerverwarming.
2e Verdieping: overloop met opstelplaats van de wasmachine en de in 2023 geplaatste centrale verwarmingsketel, 3e slaapkamer.
- Het stadscentrum van Zutphen, alsmede het station zijn op circa 15 fietsminuten te bereiken
- Stenen berging aan de voorzijde
- Onder voorwaarden starterslening van de Gemeente Zutphen mogelijk
- Woonoppervlak: 103 m²
- Inhoud: 392 m³
- Kaveloppervlak: 151 m²
- Energielabel: C
Een zorgvuldig onderhouden huis op een leuke centrale plek in Warnsveld!
Kenmerken
Overdracht
- Laatste vraagprijs
- € 335.000 kosten koper
- Vraagprijs per m²
- € 3.252
- Status
- Verkocht
Bouw
- Soort woonhuis
- Eengezinswoning, tussenwoning
- Soort bouw
- Bestaande bouw
- Bouwjaar
- 1981
- Soort dak
- Zadeldak bedekt met pannen
Oppervlakten en inhoud
- Gebruiksoppervlakten
- Wonen
- 103 m²
- Overige inpandige ruimte
- 8 m²
- Gebouwgebonden buitenruimte
- 21 m²
- Externe bergruimte
- 3 m²
- Perceel
- 151 m²
- Inhoud
- 392 m³
Indeling
- Aantal kamers
- 4 kamers (3 slaapkamers)
- Aantal badkamers
- 1 badkamer en 1 apart toilet
- Badkamervoorzieningen
- Douche, dubbele wastafel, toilet, urinoir, en wastafelmeubel
- Aantal woonlagen
- 3 woonlagen
- Voorzieningen
- Airconditioning, dakraam, glasvezelkabel, mechanische ventilatie, en TV kabel
Energie
- Energielabel
- Isolatie
- Dakisolatie, dubbel glas, muurisolatie en vloerisolatie
- Verwarming
- Cv-ketel en gedeeltelijke vloerverwarming
- Warm water
- Cv-ketel
- Cv-ketel
- Remeha (gas gestookt combiketel uit 2023, eigendom)
Kadastrale gegevens
- WARNSVELD L 2050
- Kadastrale kaart
- Oppervlakte
- 151 m²
- Eigendomssituatie
- Volle eigendom
Buitenruimte
- Ligging
- Aan rustige weg en in woonwijk
- Tuin
- Achtertuin en voortuin
- Achtertuin
- 50 m² (10,00 meter diep en 5,00 meter breed)
- Ligging tuin
- Gelegen op het westen
Bergruimte
- Schuur/berging
- Aangebouwde stenen berging
- Voorzieningen
- Elektra
Parkeergelegenheid
- Soort parkeergelegenheid
- Op eigen terrein en openbaar parkeren
Foto's 38
© 2001-2026 funda





































