Dit huis op Funda: https://www.funda.nl/detail/koop/wassenaar/huis-van-bommellaan-9/43749398/

Omschrijving
Zeer charmante, rietgedekte halfvrijstaande villa gelegen op een royaal perceel van circa 765m². Hier geniet u van een rustige woonomgeving met een prachtig uitzicht op het omliggende groen. De woning beschikt over een goede indeling met vier ruime slaapkamers, een ruime badkamer, een lichte en royale living met open haard en een eetkeuken. De inpandige garage biedt voldoende ruimte voor het parkeren van twee auto's.
De villa is gelegen op een licht glooiend terrein, wat bijdraagt aan het idyllische karakter van de omgeving. Ideale locatie ten opzichte van het centrum van Wassenaar en Den Haag, nabij uitvalswegen en diverse scholen in de nabije omgeving, wat deze locatie extra aantrekkelijk maakt voor gezinnen.
INDELING
Via de zij-entree op verhoogd begane grond niveau betreedt men de centrale hal, welke is voorzien van een garderobekast en een separaat toilet met fonteintje. Vanuit de hal is er toegang tot het souterrain, waar de inpandige garage en twee ruimtes voor berging zijn gesitueerd. De ruime, zonnige L-vormige living is afgewerkt met een originele parketvloer en beschikt over een open haard, met openslaande deuren die toegang bieden tot de zijtuin. De royale eetkeuken met een eethoek, grenst aan het terras en biedt directe toegang tot de diepe achtertuin. Deze tuin, gelegen op het oosten, biedt optimale privacy en heeft een gunstige ligging, waardoor men de hele dag van de zon kan genieten.
1e Verdieping:
Overloop met toegang tot de voorslaapkamer, die aansluit op het ruime balkon over de volledige lengte van de woning. De tweede slaapkamer ligt aan de achterzijde en heeft eveneens een zonnig balkon met prachtig uitzicht over het groen en de royale achtertuin. De eenvoudige, maar ruime badkamer is uitgerust met een douche, ligbad, toilet en wastafel.
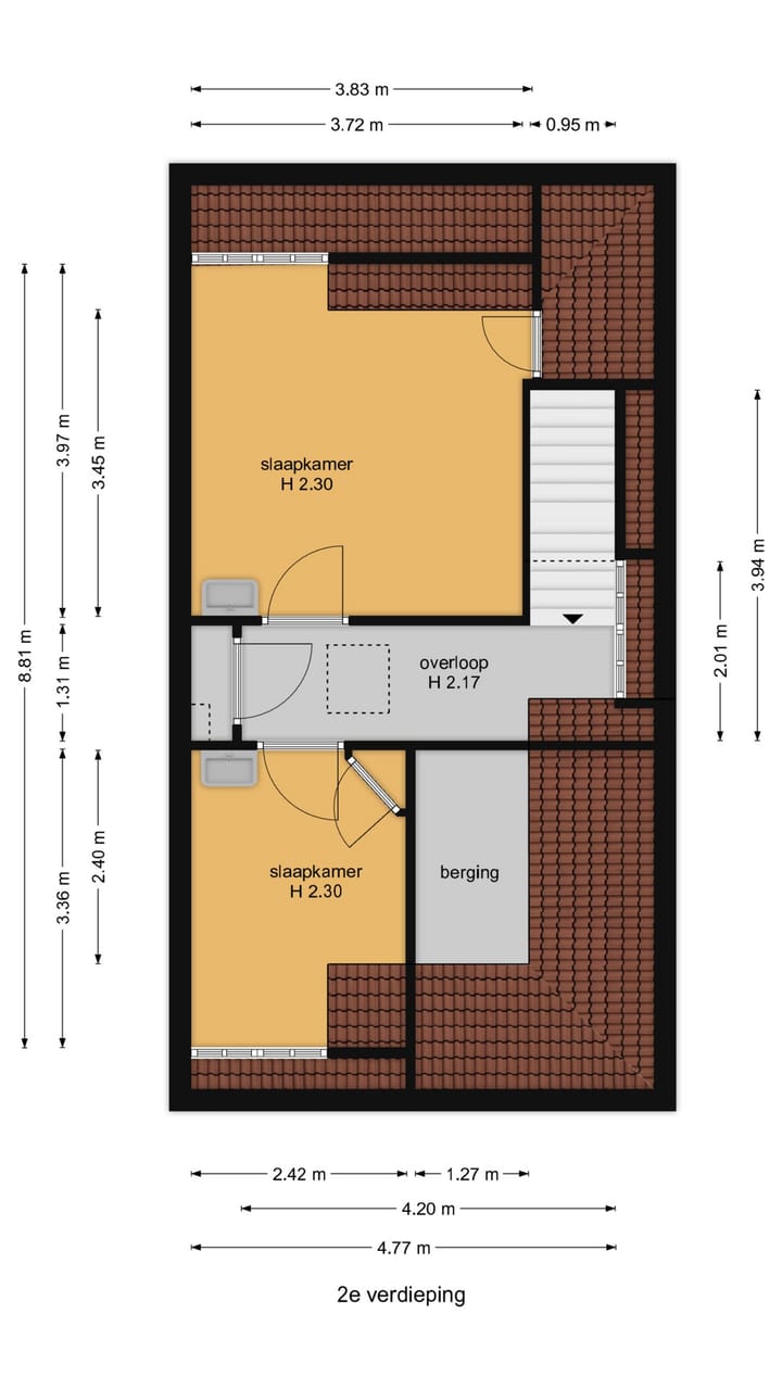
2e verdieping:
Overloop met toegang tot twee slaapkamers, waarvan de voorkamer geschikt is als thuis kantoor. Beide kamers bieden voldoende bergruimte en zijn voorzien van een dakkapel, waardoor er veel daglicht binnenkomt. Daarnaast is er een extra berging bereikbaar via de overloop, die voldoende opbergruimte biedt.
Souterrain
Via een vaste trap bereikt u twee aparte ruimtes, waaronder een aparte berging met de CV-ketel. De ruime inpandige garage biedt plaats aan twee auto's én voldoende ruimte voor het stallen van fietsen. De garage is toegankelijk via een eigen oprit, die ruimte biedt voor meerdere auto's.
BIJZONDERHEDEN
- Bouwjaar 1926;
- Gebruiksoppervlakte wonen 175 m², overige inpandige ruimte, 74 m²;
- Grotendeels voorzien van dubbele beglazing;
- Achtertuin gelegen op het oosten, omgeven door groen;
- Eigen oprit inclusief garage;
- Charmante architectuur;
- Rustig gelegen in de groene omgeving aan de rand van Wassenaar. Nabij winkels, scholen, openbaar vervoer en uitvalswegen;
- Ouderdomsclausule en materialenclausule van toepassing op de koopovereenkomst;
- Oplevering in overleg.
Deze informatie is door ons met de nodige zorgvuldigheid samengesteld. Onzerzijds wordt echter geen enkele aansprakelijkheid aanvaard voor enige onvolledigheid, onjuistheid of anderszins, dan wel de gevolgen daarvan. Alle opgegeven maten en oppervlakten zijn indicatief. Van toepassing zijn de NVM voorwaarden.
Bent u enthousiast geworden en wilt je binnenkijken, de sfeer proeven en de ruimte beleven?
We laten deze unieke woning aan de Van Bommellaan 9 graag zien.
Kenmerken
Overdracht
- Laatste vraagprijs
- € 1.050.000 kosten koper
- Vraagprijs per m²
- € 6.000
- Status
- Verkocht
Bouw
- Soort woonhuis
- Villa, 2-onder-1-kapwoning
- Soort bouw
- Bestaande bouw
- Bouwjaar
- 1926
- Specifiek
- Beschermd stads- of dorpsgezicht
- Soort dak
- Zadeldak bedekt met riet
Oppervlakten en inhoud
- Gebruiksoppervlakten
- Wonen
- 175 m²
- Overige inpandige ruimte
- 74 m²
- Gebouwgebonden buitenruimte
- 12 m²
- Perceel
- 765 m²
- Inhoud
- 812 m³
Indeling
- Aantal kamers
- 5 kamers (4 slaapkamers)
- Aantal badkamers
- 1 badkamer en 1 apart toilet
- Badkamervoorzieningen
- Douche, ligbad, toilet, en wastafel
- Aantal woonlagen
- 3 woonlagen en een kelder
- Voorzieningen
- Natuurlijke ventilatie, rookkanaal, en TV kabel
Energie
- Energielabel
- F
- Isolatie
- Dubbel glas
- Verwarming
- Cv-ketel
- Warm water
- Cv-ketel
- Cv-ketel
- Gas gestookt combiketel
Kadastrale gegevens
- WASSENAAR D 2885
- Kadastrale kaart
- Oppervlakte
- 765 m²
- Eigendomssituatie
- Volle eigendom
Buitenruimte
- Ligging
- Aan bosrand, aan rustige weg, beschutte ligging en vrij uitzicht
- Tuin
- Achtertuin
- Achtertuin
- 0,60 meter diep en 0,13 meter breed
- Ligging tuin
- Gelegen op het oosten
- Balkon/dakterras
- Balkon aanwezig
Garage
- Soort garage
- Inpandig
- Capaciteit
- 2 auto's
- Voorzieningen
- Elektra, verwarming en stromend water
Parkeergelegenheid
- Soort parkeergelegenheid
- Op eigen terrein en openbaar parkeren
Foto's 39
© 2001-2025 funda






































