
Simon de Vliegerlaan1381 EE WeespWeesp-Zuid II
€ 373.000 k.k.
Omschrijving
Woondroom bouwen nabij het oude centrum van Weesp!
Slechts zelden zijn er bouwkavels te koop en nog minder vindt je bouwkavels zo dichtbij het historische centrum.
Dit maakt de Simon de Vliegerlaan tot een unieke kans. Een kans om een vrijstaand huis te bouwen, net achter de Utrechtseweg en de haven. Je loopt zo via de Fijnvandraatlaan en de Nieuwstad het centrum in of naar de haven.
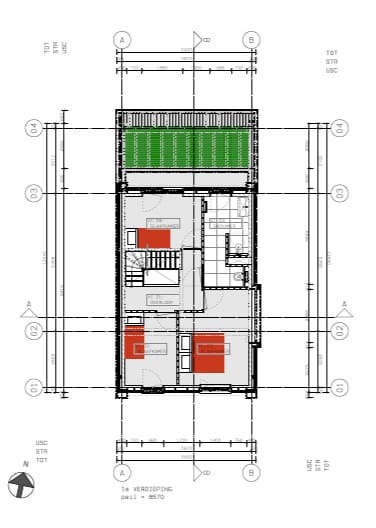
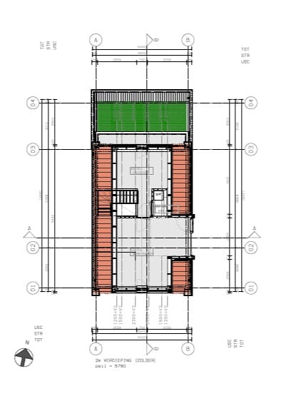
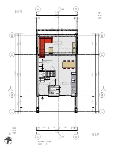
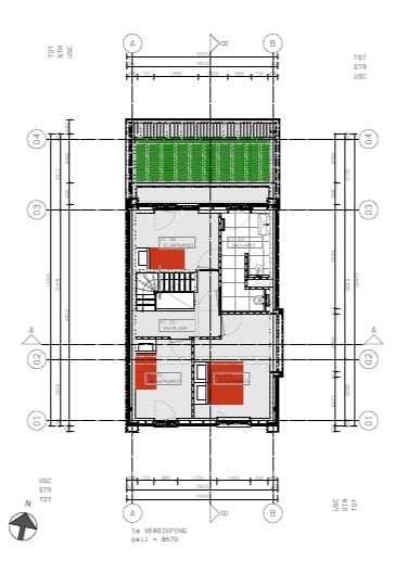
Deze kavel betreft niet alleen bouwgrond, er is een onherroepelijke omgevingsvergunning voor een vrijstaande woning met 2 parkeerplaatsen op eigen terrein. Het betreft een aangenaam gezinshuis met ruime woonkamer met open keuken op de begane grond, 3 slaapkamers op de 1e etage en een 2e verdieping, die naar eigen wens ook als slaapetage kan worden ingevuld. Uiteraard is het ontwerp tot stand gekomen, rekening houdende met de huidige eisen, dus een energiezuinige woning.
Doordat je zelf opdrachtgever bent, heb je vrije keuze in afwerking, je kiest ook zelf je aannemer en andere specialisten en ook de verdere invulling is aan jou/jullie. Het proces van zelf bouwen is normaal een langdurig proces, mede door het traject van ontwerpen en vergunningen. In dit geval is het proces beduidend korter, want de vergunning is er al.
Hoe fijn is het om met je gezin te wonen in Weesp, een charmant oud stadje dicht tegen de metropool Amsterdam aan. Weesp heeft alles qua voorzieningen (winkels, scholen, NS-station), maar bovenal ook het karakter van zo’n kleinere gemeente.
Heb je interesse in dit kavel? Neem contact op met de verkopend makelaar voor meer informatie. Of kom langs op de kijkdag! Op vrijdag 8 augustus tussen 15:00 uur en 16:00 uur is onze makelaar aanwezig op het kavel om je meer informatie te geven en eventuele vragen te beantwoorden. Ben je verhinderd of niet in de gelegenheid? Geen zorgen, we staan je ook graag persoonlijk te woord.
Kenmerken
Overdracht
- Aangeboden sinds
- Aanvaarding
- In overleg
- Vraagprijs
- € 373.000 kosten koper
- Status
- Beschikbaar
Bouw
- Soort object
- Bouwgrond
- Bouwrijp
- Nee
Indeling
- Perceel
- 169 m²
Kadastrale gegevens
- WEESP B 6896
- Kadastrale kaart
- Oppervlakte
- 169 m²
- Eigendomssituatie
- Volle eigendom
Buitenruimte
- Ligging
- Aan rustige weg en in woonwijk
Foto's 27
© 2001-2025 funda


























