Dit huis op Funda: https://www.funda.nl/detail/koop/weesp/huis-aetsveldseweg-3-b/43249480/

Aetsveldseweg 3-B1383 HS WeespAetsveldsepolder
€ 2.195.000 k.k.
BlikvangerO P E N H U I S | Zaterdag 28 februari van 11.00 tot 13.00 uur!
Omschrijving
* * * OPEN HUIS! Zaterdag 28 februari a.s. tussen 11.00 en 13.00 uur. * * *
Prachtig huis op unieke locatie met rondom uitzicht! | In prijs verlaagd!
Op een schitterende locatie in het buitengebied van Amsterdam, stadsdeel Weesp, met vrij uitzicht over de weilanden en een park, en toch op maar 5 minuten van het centrum vindt u dit prachtige vrijstaande landhuis uit 2001. Het is van alle gemakken voorzien en volledig van deze tijd. Zo beschikt het over energielabel A++++, heeft het een sauna en een verwarmd buiten zwembad, een grote vrijstaande garage, bergruimte en een carport. Het is gelegen op een royaal perceel eigen grond van 4.005 m² met rondom uitzicht over het idyllisch polderlandschap. Hier kunt u in alle privacy heerlijk genieten van de parkachtige tuin met alle rust en ruimte. Het is echt bijzonder dat u, dicht bij het centrum met alle haar voorzieningen, zo ruimtelijk en vrij kunt wonen!
Stadsdeel Weesp is een combinatie van stadse allure en gemoedelijke gezelligheid en is uitstekend bereikbaar. De vestingstad heeft een gezellig historisch centrum met diverse restaurants en cafés, jachthavens, authentieke winkels, een theater/bioscoop en allerlei mogelijkheden om binnen en buiten te sporten. U woont er perfect en omgeven door prachtige en ruime natuur. Het is centraal gelegen tussen ’t Gooi, Almere, Utrecht en Amsterdam. Op tien minuten fietsafstand van het treinstation van Weesp en vanaf daar staat u binnen 16 minuten op het Centraal station van Amsterdam. Deze woning bevindt zich tevens in de directe nabijheid van scholen, supermarkten, kinder (dag)opvang en uitvalswegen richting onder andere het Amsterdam UMC, ziekenhuis Tergooi in Hilversum en luchthaven Schiphol (20 minuten).
INDELING:
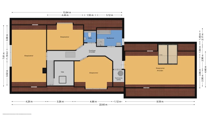
Begane grond: entree, ruime hoge hal met garderoberuimte, toilet met fontein, trap naar verdieping, trapkast en meterkast, via fraaie openslaande deuren bereikt men de royale en zeer lichte L-vormige living voorzien van houten vloer met vloerverwarming, schouw met open haard, erker, diverse openslaande deuren naar de tuin en een ruime open woonkeuken. Vanuit de hal bereikt men de eerste ruime slaapkamer met vaste kastenwand en doorloop naar luxe eerste badkamer voorzien van douche, dubbel ligbad, designradiator en vast wastafelmeubel. Naast de badkamer is een grote multifunctionele ruimte, o.a. uitgerust met een sauna.
Eerste verdieping: overloop voorzien van tweede toilet met fontein, zeer grote tweede slaapkamer (thans kantoor), derde slaapkamer, vierde slaapkamer, luxe tweede badkamer voorzien van vloerverwarming met ligbad, douche en designradiator en een grote vijfde slaapkamer (thans kantoor), met bergruimte, computergestuurde c.v. apparatuur met een extra grote boiler.
Bergvliering: over de gehele breedte met sta hoogte in het midden, welke bereikbaar is via een luik met vlizotrap vanaf de overloop.
AFWERKINGSNIVEAU EN INSTALLATIES:
Dit landhuis bevindt zich in een uitmuntende staat van onderhoud en is uitgevoerd met de meest luxe materialen in lichte tinten. Wanden in de hal en op de overloop zijn voorzien van spuitwerk in een lichte kleurstelling. De begane grond is geheel voorzien van een houten vloer met vloerverwarming. Het huis heeft een warmtepomp en 74 zonnepanelen (meeste van 2022) en is daarmee gasvrij en energieneutraal. In 2018 is de benedenverdieping nagenoeg geheel vernieuwd met een nieuwe keuken, badkamer en houten vloer. Eind 2025 is de toegangsbrug tot het terrein geheel vernieuwd.
BUITENRUIMTE:
Dit landhuis is gelegen op een perceel eigen grond van ca. 4.005 m² en is rondom voorzien van een fraaie parkachtige tuin met veel privacy, fraai sierstraatwerk, beplanting en twee overkappingen. De tuin is speciaal ingericht als vogel- en insect vriendelijk en heeft bloeiende planten van het vroege voorjaar tot in de herfst. De tuin nodigt uit om te spelen met de kinderen of om fijne feesten en BBQ’s te organiseren (geen buren!) Er is van ’s ochtends vroeg tot ’s avonds laat altijd wel een plekje te vinden om van de zon of juist de schaduw te genieten. Om het plaatje compleet te maken is er tussen het woonhuis en garage een ingebouwde en verwarmde zwemspa met jetstream en jacuzzi gedeelte.
GEBRUIKSOPPERVLAKTEN:
- Wonen: 281,00 m²;
- Overige inpandige ruimte: 13,00 m² (vliering);
- Gebouw gebonden buitenruimte: niet van toepassing;
- Externe bergruimte: 62,40 m² (schuur).
Dit object is met de grootste zorgvuldigheid ingemeten, volgens de Meetinstructie Gebruiksoppervlakte Woningen (NEN 2580). Alle verstrekte gegevens zijn met zorg samengesteld en ons inziens uit betrouwbare bron afkomstig. Ten aanzien van de juistheid ervan kunnen wij echter geen aansprakelijkheid aanvaarden. Alle door ons verstrekte informatie is geheel vrijblijvend en er kunnen geen rechten aan worden ontleend.
KORTOM:
Een prachtig vrijstaand landhuis met royale tuin, midden tussen de weilanden, met vrij uitzicht, en toch dicht bij het centrum, met energielabel A++++ en een zwembad. Zo’n uniek woonconcept komt niet vaak voor!
Nieuwsgierig geworden? Neem contact met ons op voor een bezichtiging en wij laten deze prachtige woning aan de Aetsveldseweg 3 B graag aan u zien!
Kenmerken
Overdracht
- Aangeboden sinds
- Aanvaarding
- In overleg
- Vraagprijs
- € 2.195.000 kosten koper
- Vraagprijs per m²
- € 7.811
- Status
- Beschikbaar
Bouw
- Soort woonhuis
- Landhuis, vrijstaande woning
- Soort bouw
- Bestaande bouw
- Bouwjaar
- 2001
- Soort dak
- Samengesteld dak bedekt met pannen
Oppervlakten en inhoud
- Gebruiksoppervlakten
- Wonen
- 281 m²
- Overige inpandige ruimte
- 13 m²
- Externe bergruimte
- 63 m²
- Perceel
- 4.005 m²
- Inhoud
- 1.033 m³
Indeling
- Aantal kamers
- 7 kamers (5 slaapkamers)
- Aantal badkamers
- 2 badkamers en 2 aparte toiletten
- Badkamervoorzieningen
- Dubbele wastafel, inloopdouche, 2 ligbaden, toilet, vloerverwarming, wastafelmeubel, douche, en wastafel
- Aantal woonlagen
- 2 woonlagen en een vliering
- Voorzieningen
- Dakraam, domotica, mechanische ventilatie, rookkanaal, zonnepanelen, en zwembad
Energie
- Energielabel
- Isolatie
- HR-glas en volledig geïsoleerd
- Verwarming
- Open haard, gedeeltelijke vloerverwarming en warmtepomp
Kadastrale gegevens
- WEESP D 1439
- Kadastrale kaart
- Oppervlakte
- 4.005 m²
- Eigendomssituatie
- Volle eigendom
Buitenruimte
- Ligging
- Landelijk gelegen en vrij uitzicht
- Tuin
- Tuin rondom
Bergruimte
- Schuur/berging
- Vrijstaande stenen berging
Garage
- Soort garage
- Carport
Parkeergelegenheid
- Soort parkeergelegenheid
- Op eigen terrein
Foto's 71
© 2001-2026 funda






































































